Vancouver City Council |
POLICY REPORT
DEVELOPMENT AND BUILDING
Date: August 29, 2003
Author/Local: Lynda Challis/7135
RTS No. 03580
CC File No. 5303
Meeting Date: September 16, 2003
TO:
Vancouver City Council
FROM:
Director of Current Planning
SUBJECT:
CD-1 Text Amendment - 2001 Cassiar Street (Beulah Gardens)
RECOMMENDATION
THAT the application by LPA Development and Marketing Consultants Ltd., to amend CD-1 By-law No. 3893 for 2001 Cassiar Street (Block 92, Sec. 29 T.H.S.L. Plan 3104), to permit redevelopment of the site to increase the number of residential units for seniors, including congregate housing, be referred to a Public Hearing, together with:
(i) plans received May 5, 2003;
(ii) draft CD-1 By-law provisions, generally as contained in Appendix A; and
(iii) the recommendation of the Director of Current Planning to approve, subject to conditions contained in Appendix B.FURTHER THAT the Director of Legal Services be instructed to prepare the necessary CD-1 amending by-law generally in accordance with Appendix A for consideration at the Public Hearing.
GENERAL MANAGER'S COMMENTS
The General Manager of Community Services RECOMMENDS approval of the foregoing.
COUNCIL POLICY
Relevant Council Policies for this site include:
· CityPlan Rezoning Policy - Before and During Neighbourhood Visioning, adopted by Council January 18, 1996, which provides for applications to be considered where Council-approved area plans or policies support consideration of rezonings.
· Hastings-Sunrise Plan, adopted by Council in May 1985, which includes the following housing goals:
- encourage additional, affordable housing to suit a diversified and enlarged populations; and
- recognize unique opportunities to allow development of alternative forms of housing.· Interim City-wide Community Amenity Contribution (CAC) Policy, approved by Council on January 28, 1999, which applies to all private rezoning applications received as of December 8, 1998, and provides funds for additional community amenities needed for new residents.
PURPOSE AND SUMMARY
This report assesses an application to amend the CD-1 Comprehensive Development District zoning for the site shown on the map on page 3. The application proposes redevelopment which would replace the existing 136 units of non-market, low-cost rental seniors housing with a total of 299 units in three phases:
· 90 units of below-market rental housing for seniors (phase 1);
· 91 units of non-market rental congregate housing for seniors (phase 2); and
· 118 units of seniors housing with the specific type depending on the funds and programs available in the future (phase 3).The existing seniors housing which was built about 40 years ago, no longer serves all the needs of an aging population, particularly in regard to accessibility, fire and life safety conditions. Redevelopment of the site would provide the opportunity to improve the quality of housing, create additional housing options, increase the overall number of seniors units and retain some affordability.
Staff consider this rezoning proposal a good response to the housing goals for Hastings-Sunrise as it would increase the range of affordable housing opportunities for seniors on a site that can accommodate the proposed form of development.
Staff recommend that the application be referred to a Public Hearing, with a recommendation that it be approved subject to conditions.
MAP
DISCUSSION
Background: In 1961, the site owned by the Beulah Garden Homes Society was rezoned to CD-1 for development of low-cost rental housing for seniors. The site was developed with 136 dwelling units in ten buildings:
· four duplexes with eight 1-bedroom units of about 46.5-51.1 m² (500-550 sq. ft.) were placed on the site in the early 1950s;
· five 2-storey walk-up apartment buildings (no elevators) with 80 bachelor units of about 31.6 m² (340 sq. ft.) were constructed in the early 1960s; and
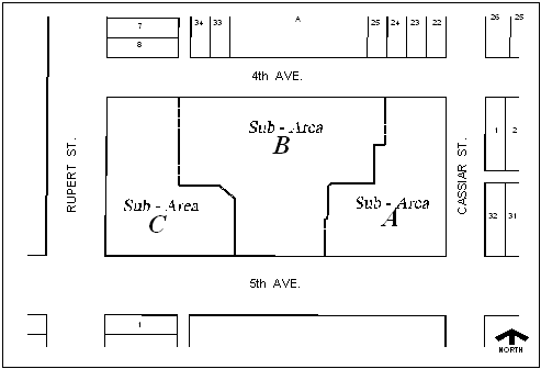
· a 3-storey apartment building (with an elevator) with 48 bachelor units of about 31.6 m² (340 sq. ft.) were constructed in 1965.Use: The proposed rezoning would allow redevelopment of the entire site to replace the existing 136 units with 299 units of seniors housing with some support services. Redevelopment would occur in three phases (see map in Appendix A illustrating sub-areas):
· Phase 1 would replace 24 existing bachelor and one-bedroom units with 90 studio, bachelor and one-bedroom units of rental housing, with rents set at below-market rates (Building A in sub-area A);
· Phase 2 would replace 64 bachelor units with 91 units of non-market, rental congregate housing (Building B in sub-area B). This building would also include areas for dining, social activities and adult day care;
· Phase 3 would replace 48 bachelor units with 118 units of housing (Building C in sub-area C). The specific type of seniors housing would be determined in the future depending on need, programs and funds, but it could include independent or assisted living.The addition of congregate housing to the site is consistent with the goal of the Hastings Sunrise Plan "to recognize unique opportunities to allow development of alternative forms of housing". Staff also support the proposed mix of seniors housing and services which is considered to be a good approach for accommodating aging in place. When necessary, residents who live in the rental units will be able to move more smoothly into congregate housing without the disruption of relocating to a new site or new neighbourhood.
Relocation Plan and Affordability: One purpose of phasing the project is to ensure that the existing residents are accommodated with minimum disruption and dislocation. As soon as the rezoning application was submitted (May 2003), the Society stopped re-leasing units on the site so tenants who would require relocating for either Building A or B to proceed could preferably be rehoused on-site. The Society also owns units in other buildings across the street on 4th and 5th Avenues which would be available to relocating tenants. In addition, the Society has affiliations with the Baptist Housing Society and would seek assistance from BC Housing Management Corporation (BC Housing) to find accommodation for tenants requiring rent-geared-to-income housing. A Housing Agreement would be required as a condition of rezoning to ensure that the Society provide for these commitments.
None of the 136 units on this site are subsidized by any level of government, but the Society has kept the rent levels at or below the Shelter Subsidy Allowance set by the Ministry of Human Resources. Currently, the rents are $300 per month for the bachelor units and $350-400 per month for the 1-bedroom units in the duplexes. The 90 new units in Building A would not be subsidized by either BC Housing or Canada Mortgage and Housing Corporation; however, the Society estimates that with their "free land" and other community contributions, the rents should range from $410-480 (studio and bachelor units) to $650-705 (1-bedroom units). With "Shelter Allowance for Elderly Renters" (SAFER) subsidies, low-income tenants could be paying similar rents for the studio and bachelor units as they do now.
The Society is seeking funding for the 91 units in Building B under BC Housing and Vancouver Coastal Health Authority's Independent Living BC program (ILBC), in which case the rents would be geared-to-income. Staff consider the inclusion of this affordable component as important to the support of the project and recommend that staff work with the Society to achieve comparable affordability if the ILBC funding is not forthcoming. It is anticipated that allocation of the ILBC funding will be announced at the end of October 2003.
The Society does not expect to construct Building C for a number of years and at that time will decide the type of units and level of affordability depending on the programs and funds that are available.
Where rezonings involve the redevelopment of a large number of affordable housing units, City staff have generally endeavoured to re-create the affordability within the context of the new development. In this case, 136 units of very affordable units are being replaced by 299 new units. The applicant has set out objectives for affordability, however, Phases 2 and 3 are uncertain at this time, noting that Phase 2 is dependent on ILBC funding. The Director of the Housing Centre recommends that a simple target be established for the whole site, wherein 50% of all the units will be occupied by individuals and couples who are income tested at the point of entry, and whose incomes are at or below the core need income threshold. This approach simplifies the housing agreement, reduces the need for City involvement in the internal administration of the Society, and allows the Society a free hand with the remaining units. Staff wish to note that flexibility will be maintained in reviewing this objective over time, such that if ILBC funding is received in Phase 2 and 3, the specifics of the agreement with the City can be amended. On Phase 1, the Housing Centre is prepared to accept the applicant's proposal that the 42 studio and bachelor units will be set up to meet the income criteria.
Inasmuch as the applicant has indicated that all units will be rental under the control of a non-profit society, the Housing Centre is also asking for a no-stratification agreement and a re-sale to only another non-profit housing society agreement.
Density: The existing CD-1 By-law does not specify a maximum density for the site which has been developed to a density of 0.44 floor space ratio (FSR). This is less density than could be built on the adjacent RS-1S or RT-2 properties which could be developed at a maximum density of 0.60 to 0.75 FSR respectively. Although the proposed density of 1.45 FSR is greater than the surrounding area, the additional density is supported by staff for the following reasons:
· the proposal would rehouse seniors currently living on the site;
· the proposal would provide an increased range of housing options for seniors;
· the proposal would include a significant amount (>60%) of units at below market rents; and
· the proposed form of development can be accommodated on this large site and the siting of the buildings has taken into account neighbourhood interest in preserving trees and open space.Staff propose that the floor area be apportioned to three sub-areas to facilitate phased redevelopment. Sub-area A (Phase 1) could be developed to a maximum floor area of 5 300 m² (equivalent to a density of 1.41 FSR), sub-area B (Phase 2) could be developed to 6 750 m² (equal to 1.06 FSR), and sub-area C (Phase 3) could be developed to 8 540 m² (equal to 2.10 FSR).
Form of Development: Staff have determined that although the proposed bulk and height of the development is greater than the surrounding buildings, it can fit without impacting adjacent properties in terms of views, shadowing and privacy. The site's size, topography and vegetation have provided challenges and opportunities. The applicant notes that the open space plan and its objective to save a significant majority of the trees guided the overall design of the site. Increased building height allows preservation of open space. Building heights have been stepped to fit the site which slopes down 16.8 m (55 ft.) from Rupert Street. The highest building is located on the west edge of the site where only the upper four floors would be above the Rupert Street level. (Note Plans: Appendix D)
Parking, Access and Circulation: The proposed development includes a total of 130 underground parking spaces with each phase of development providing a share. Staff's experience has shown that non-profit seniors housing does not require a large number of parking spaces and that congregate housing's parking requirements increase with larger units. Consequently, parking standards are recommended that are based on the type of seniors housing and size of units. The proposed parking requirements are consistent with the Parking By-law and the parking relaxation provisions of the "Congregate Housing for Seniors Guidelines".
Access to underground parking would occur from two locations, from 4th Avenue at the northeast end of the site and from 5th Avenue at the southwest end of the site. The buildings on sub-areas A and B would share access from 4th Avenue. The development also includes a meandering driveway through the westerly side of the site which allows passenger pick up and drop off for the buildings on sub-areas B and C as well as Fire Department access.
Community Amenity Contribution [CAC]: On January 28, 1999, Council approved an Interim City-wide CAC Policy which applies to private rezoning applications (with some exceptions), to provide funds for the additional community facilities needed for new residents. CACs are based on the increase in permitted density on a site. The CD-1 By-law for this site does not specify a permitted density. However, the existing buildings were developed to an FSR of 0.44 as approved by Council resolution, so the increase in density would be 1.01 FSR. This would result in a CAC of $461,995.
The applicant has offered to enter into a housing agreement to secure the rent levels for more than 30 percent of the units on site. Under the DCL By-law and the City's CAC policy, social housing is exempt from both, "where at least 30 % of the units are to be occupied by persons receiving government paid assistance (i.e., SAFER or other funds), where a covenant restricts the use to such housing, and where the owner, if a non-profit organization, is eligible for a government shelter subsidy". The Director of the Housing Centre supports DCL and CAC exemptions for this project, if these occupancy requirements are met.
CONCLUSION
Staff support the use, density and form of development proposed in this application. The proposal offers a range of low to moderately-priced, rental seniors housing that will benefit this area of the city, will preserve significant amount of vegetation and open space on site, and will not unduly impact the livability of the adjacent neighbourhood.
The Director of Current Planning recommends that the application be referred to Public Hearing and approved, subject to proposed conditions of approval presented in Appendix B.
- - - - -
APPENDIX A
DRAFT AMENDMENTS TO CD-1 BY-LAW NO. 3893
Note: A by-law will be prepared generally in accordance with the provisions listed below, subject to change and refinement prior to posting.
Use
· Multiple Dwellings.
· Special Needs Residential Facility - Congregate Housing.
· Social Service Centre, limited to Adult Day Care.
· Accessory Uses customarily ancillary to the above uses.Sub-Areas
· Diagram of 3 sub-areas:
Density
· Maximum floor area of 5 300 m² in sub-area A, 6 750 m² in sub-area B and 8 540 m² in sub-area C, based on calculation provisions of the RM-4/RM-4N Districts Schedule.
Height
· A maximum of 10.7 m (35 ft.) or 4 storeys for sub-areas A and B with height relaxation up to 13.7 m (45 ft.) for a sloping roof.
· A maximum of 8 storeys for sub-area C, except a maximum of 4 storeys with a maximum height of 14.6 m (48 ft.) above Rupert Street building grade elevation 51.98 m.Horizontal Angle of Daylight
· Per RM-4/RM-4N Districts Schedule.
· Relaxation provisions.Parking
Parking, loading, passenger and bicycle spaces are to be provided and maintained in accordance with the Parking By-Law, except as follows:
· For non-profit multiple dwellings for seniors, a minimum of 1 parking space per 6 dwelling units shall be provided.
· For congregate multiple dwellings for seniors or similar use, parking shall be provided as follows:
- For units less than 70 m² gross floor area, the parking shall be provided at a rate of 1 space per 4 dwelling units; and
- For units greater than 70 m² gross floor area, parking shall be provided at a rate of 1 space per 100 m² gross floor area, except that no more than 1.1 space for every dwelling unit need be provided.
· For market multiple-dwellings for seniors, parking shall be provided at a rate of 1 space per 70 m² gross floor area, except that no more than 1.1 space for every dwelling unit need be provided.
· Provision of on-site Class B loading spaces to serve all buildings on-site as determined by the Director of Planning in consultation with the General Manager of Engineering Services.
· The requirements of the Parking and Loading Design Supplement dated Feb 12, 2002 shall apply.
· Class A bicycle parking shall be provided as determined by the Director of Planning in consultation with the General Manager of Engineering Services.
· Adult day care or other community and social service activities shall provide parking, loading and bicycle parking as determined by the Director of Planning in consultation with the General Manager of Engineering Services.
The relaxation, exemption and mixed-use reduction provisions of the Parking By-Law shall be available.
Acoustics· Per RM-4N District Schedule.
APPENDIX B
PROPOSED CONDITIONS OF APPROVAL
Note: Recommended approval conditions will be prepared generally in accordance with the draft conditions listed below, subject to change and refinement prior to finalization of the agenda for the Public Hearing.
(a) That the proposed form of development be approved by Council in principle, generally as prepared by LPA Development and Marketing Consultants Ltd., and stamped "Received City Planning Department", May 3, 2003, provided that the Director of Planning may allow minor alterations to this form of development when approving the detailed scheme of development as outlined in (b) below.
(b) That, prior to approval by Council of the form of development, the applicant shall obtain approval of a development application by the Director of Planning, who shall have particular regard to the following:
(i) design development to buildings in sub-areas A and B to
(1) ensure livability and access to daylight to the ground level units;
Note to applicant: No dwelling unit should be located more than 0.6 m (2 ft.) below grade.
(2) provide variation in the overall roof form to achieve a more residential building character, in scale and proportion, with further variation in the massing, materials, dormers, windows and colour;
Note to applicant: design development should utilize materials that will enhance and complement the natural environ on the site.
(3) ensure that the proposed bridge structure between building in sub-area A and building in sub-area B is articulated to be light and transparent;
(ii) design development to building in sub-area C to
(1) ensure that ground facing units are not oriented to the 5th Avenue parkade driveway;
(2) ensure livability by maximizing the access to daylight for the lower level units oriented to Rupert Street;
(3) enhance its streetscape character by providing variation within the overall building form through transitional massing along the Rupert Street streetscape, with further variation is massing, materials, windows and colour;
Note to applicant: design development should utilize materials that will enhance and complement the natural environ of the site.
(4) alternate roof forms other than a sloped roof may be considered;
(5) ensure that the proposed covered walkway between building in sub-area B and building in sub-area C is articulated to be light and transparent;
(iii) design development to parking garage areas to ensure they are adequately screened, including garbage, with landscaping treatments;
(iv) design development to take into consideration the principles of CPTED (crime prevention through environmental design) having particular regard for:
- break and enter into ground level suites through reducing areas of concealment outside of windows and doors;
- theft in the underground parking through security gating, careful locations of exit stairs to be visible and watched by residents only;
- improved definition of public and private spaces to reduce opportunities for cutting through the property.(v) written confirmation from a Certified Arborist, that they have been retained to supervise and undertake any work necessary to ensure the existing trees retained on site are not compromised during either excavation or construction. The Certified Arborist will undertake any necessary work to retained trees which have been negatively impacted by construction on site. (i.e., altering of grades, concrete waste dumped near trees, etc.). In addition, the Certified Arborist will submit (to the Development Services Department) a letter of undertaking to the satisfaction of the Director of Development Services.
(vi) design development to further enhance the public realm (between the property line and the sidewalk) along the 5th Avenue frontage of the site;
(vii) design development to the "Forest Garden" pedestrian pathway to provide a walking circuit which provides more than one terminus (than the mid block city sidewalk location proposed);
(viii) provision of street trees adjacent the site where space permits;
(ix) provision of satisfactory vertical clearance to the underside of the bridge between buildings in sub-area B and C;
Note to applicant: Engineering Services requires 4.3 m clearance for large trucks and Fire Department requires 5.0 m clearance for fire truck access.
(x) design development to ensure that Fire Department access to building entries and to below and above grade levels comply with the Vancouver Building By-law.
(c) That, prior to enactment of the CD-1 By-law, the registered owner shall:
(i) make arrangements to the satisfaction of the General Manager of Engineering Services and the Director of Legal Services for the following:
(1) upgrading of the City sewer system to provide adequate sanitary and storm services for the proposed development;
(2) upgrading of the City water main system to meet the firefighting demands for the proposed development;
(3) provision of a 1.52 m (5-foot) wide concrete sidewalk on Cassiar Street adjacent to the site and on that portion of 4th Avenue where no sidewalk exists adjacent to the site;
(ii) make arrangements to the satisfaction of the General Manager of Engineering Services and the Director of Legal Services for clarification of all charges registered in the Land Title Office against title to the lands (a charge summary, including copies of all charges, must be provided) and modification, extension or release of any charges deemed necessary by the Director of Legal Services;
(iii) make suitable arrangements to the satisfaction of the General Manager of Engineering Services, for all new BC Hydro and Telus services for this site to be undergrounded from the closest existing suitable service point including a review of any required overhead lines that may be needed, to determine its effect, if any, on the neighbourhood;
(iv) make arrangements to the satisfaction of the Director of the Housing Centre and the Director of Legal Services to enter into a Housing Agreement, to:
(1) secure the residential units as affordable (50% of the occupants will be income tested at their point of entry, and incomes are at or below the core need income threshold), for the life of the buildings; and
(2) further that the project be operated for low-to-moderate income seniors by a non-profit reporting society registered in the Province of British Columbia, and, if sold, only to another non-profit reporting society also registered in British Columbia;
(v) make arrangements to the satisfaction of the Director of the Housing Centre for a tenant relocation plan, as outlined by the applicant, wherein residents are satisfactorily relocated to units on site, units owned and operated by the Society, or affiliated non-profit housing societies.
Where the Director of Legal Services deems appropriate, the preceding agreements are to be drawn, not only as personal covenants of the property owner, but also as Covenants pursuant to Section 219 of the Land Title Act.
Such agreements are to be registered in the appropriate Land Title Office, with priority over such other liens, charges and encumbrances effecting the subject site, as is considered advisable by the Director of Legal Services, and otherwise to the satisfaction of the Director of Legal Services prior to enactment of the by-law; provided, however, the Director of Legal Services may, in her sole discretion and on terms she considers advisable, accept tendering of the preceding agreements for registration in the appropriate Land Title Office, to the satisfaction of the Director of Legal Services, prior to enactment of the by-law.
The preceding agreements shall provide security to the City including indemnities, warranties, equitable charges, letters of credit and withholding of permits, as deemed necessary by and in a form satisfactory to the Director of Legal Services.
The timing of all required payments shall be determined by the appropriate City official having responsibility for each particular agreement, who may consult other City officials and City Council.
APPENDIX C
ADDITIONAL INFORMATION
Site, Surrounding Zoning and Development This 14 166 m² (152,490 sq. ft.) site is comprised of one parcel (an entire block) with frontages of 81.7 m (268 ft.) on Cassiar Street and Rupert Street, 173.4 m (569 ft.) on 4th Avenue and 173.5 m (569 ft.) on 5th Avenue. The site slopes down about 16.8 m (55 ft.) from the southwest to the northeast corner. The CD-1 zoned site is occupied by 10 residential buildings (two-family and multiple dwellings) which contain 136 units of low cost, rental housing for seniors.
Properties to the south and north are zoned RT-2 and developed with a multiple dwelling containing 51 units of low-cost, rental seniors housing along the south side of 5th Avenue and 4 two-family dwellings containing 8 units of low-cost, rental seniors housing along the north side of 4th Avenue. These buildings are all owned and occupied by Beulah Garden Homes Society. Southeast of the site is Skeena Terrace, a large CD-1 site developed with social housing in the early 1960s. The remainder of the area is zoned RS-1S and is developed with one-family dwellings, some with secondary suites. Sunrise Park occupies the hillside to the west of the site across Rupert Street.
Proposed Development: The application proposes phased redevelopment of the site to ultimately replace the ten existing buildings with three buildings containing 299 units of rental seniors housing. Phase 1 would be built along Cassiar Street at the east end of the site, and would include a 3-4 storey building with 90 units of affordable, rental seniors housing and 39 underground parking spaces. There would be 27 studio units of about 30.2 m² (325 sq. ft.), 15 bachelor units of about 35.3 m² (380 sq. ft.), and 48 one-bedroom units of 50.0 m² (538 sq. ft.). Phase 2 would be built in the central portion of the site and would include a 4-storey building with 91 units of congregate housing with support services, space for an adult day care and 35 underground parking spaces. There would be 19 bachelor units of about 35.3 m² (380 sq. ft.), 59 one-bedroom of about 55.0 m² (593 sq. ft.) and 13 two-bedroom units of about 68.2 m² (734 sq. ft.). Phase 3 would be built along Rupert Street at the west end of the site and would include an 8 storey building with 118 units of seniors housing (specific type to be determined) and 58 underground parking spaces. There would be 28 bachelor units of about 35.3 m² (380 sq. ft.), 84 one-bedroom units of about 50.0 m² and 6 two-bedroom units of about 68.2 m².
Public Input: Beulah Garden Homes Society and their consultant team began developing their plan in workshops with representatives from local community groups, residents and the Society's tenants during December 2002 and January and February of 2003. These workshops identified the community's wishes that trees be retained and meaningful open space be provided. Open houses and community meetings were also held in January and February of 2003 with over 165 people attending these meetings. The majority supported the proposed redevelopment, although two adjacent owners were concerned about increased traffic, shadowing and the location of the driveway entry off 4th Avenue.
Following submission of the rezoning application, City staff sent a notification letter to 592 nearby property owners on May 21, 2003 and rezoning information signs were posted on the site on May 22, 2003. Three phone calls were received from local residents and tenants currently living on the site and one email was received which requested additional information.
Comments of the General Manager of Engineering Services: The General Manager of Engineering Services has no objection to the proposed rezoning, provided that the applicant complies with conditions as shown in Appendix B.
Seniors' Advisory Committee Comments: The Seniors' Advisory Committee supported this project in principle, subject to further review by the Committee at the Development Application stage.
Comments of the Manager of the Housing Centre: "The Beulah Gardens rezoning and seniors housing proposal is significant in that it is likely to serve as a model for redevelopment expected on a number of other sites across the city operated as affordable housing. In this case, the Beulah Gardens Homes Society (BGHS) is proposing a well-reasoned and well-structured re-development plan, which will create a three-tiered program of housing and services for seniors. The existing 136 units will be replaced with a total of 299 units. The Vancouver Coastal Health Authority is putting forward the concept of a campus of housing and service needs for seniors, and this site is large enough to accommodate the idea. The Housing Centre, along with Social Planning, believes that the campus approach brings reality to the notion of aging in place.
The particulars of the housing development and respective tenant needs are understood as follows:
Phase 1: Building A (most easterly portion of the site) -- 24 existing units will be replaced with 90 "low-cost rental housing" units. Rents will not be geared to income, but will be offered at below market rates. Tenants will be able to apply for SAFER subsidy on all units, if they are eligible. The small studio and bachelor units should be affordable to most tenants, with or without SAFER.
BGHS has stopped re-leasing of units in this phase, and any remaining tenants at the time of actual redevelopment (following necessary notification in keeping with both Provincial and City requirements) will be relocated on-site or within the projects in the Baptist Housing Society with which Beulah Gardens is affiliated, or registered with BC Housing and other rent-geared-to-income housing providers. The Housing Centre will require that the Society provide for these commitments in writing and/or through appropriate legal obligation, such as a Housing Agreement.
Phase 2: Building B (middle of the site) -- 64 existing units will be replaced with 91 rentalunits. The Society intends on seeking funding for these units under the new Provincial "Independent Living BC" (ILBC) program, which is to provide for both capital and operating subsidy support. An indication of whether Building B will receive ILBC funding should be known in advance of the Public Hearing.
Tenants in the existing units will have a first right of refusal to relocate into Building A, or relocation as set-up above for Phase 1.
Phase 3: Building C (most westerly portion of the site) - 48 existing units will be replaced with 118 independent seniors rental or congregate rental units. It is intended that this phase would provide a market seniors option on the site; however, the Society would review this approach if further funding is offered in the future under the Province's ILBC.
As Phase 3 is intended to be the last redevelopment, tenants would be offered relocation on-site in the earlier phases, or as outlined in Phase 1 above.
The Housing Centre will work with the Society on a tenant relocation plan associated with each phase, to ensure that every tenant is satisfactorily relocated, with the objective of meeting the reasonable needs of each tenant. The appropriate condition is set out in Appendix B. Staff also believe that the project will be fully exempt from both DCLs and CACs given that over 30% of the housing will be able to meet Charter and City policies regarding affordable housing. ILBC funding for Phase 2 will be important, as noted above.
The Director of the Housing Centre strongly supports this rezoning."
Public Benefit The proposal increases the range of rental housing options for seniors with more than 30 percent of the units being affordable non-market, rental and congregate housing.
Urban Design Panel Comment On May 28, 2003, the Urban Design Panel reviewed this proposal and offered the following comments:
"The Panel strongly supported this application for rezoning. The Panel agreed with the importance of also meeting the neighbours' aspirations for this site and commended the applicant for the community consultation that has taken place to date.
There was strong support for the proposed use.
The proposed density was also fully supported. Several Panel members thought there could be more density, suggesting additional height could be added in places to the interior building without impacting on the neighbours. Greater density might also be achieved with non-frame construction, perhaps with less site coverage, increasing density in the centre building and reducing it at the edges of some of the other buildings.
The Panel generally supported the massing and building locations, with some reservations expressed about the central V shaped building. It is somewhat mundane in its interior format. Several Panel members recommended opening up the building at the V. There were concerns about the tight spaces between the ends of the V and the end legs of the L shaped buildings A and C, and a suggestion to consider enclosing the open breezeways connecting the buildings, noting the age population of the development. These edges could also be celebrated in the design and form edges to landscaped spaces.
The Panel strongly supported the proposed tree retention and generally liked the landscape plan. Some Panel members had concerns about deep shadowing in the courtyard areas. Lack of sun penetration into some of the units was also a concern.
There was a suggestion to consider a future visual connection between the forested garden and the site across the street which is also owned and managed by Beulah Garden Homes Society.
With respect to Building C, it was suggested its character could be more modern than the other buildings which are more residential in scale. If Building C is to be non-combustible construction, as indicated, it would lend itself better to something other than a pitched roof form, which may also benefit uphill views.
There were some concerns expressed about the vehicular access adjacent to Building C and a suggestion to consider allowing only pedestrians to pass through, making it a dead-end for vehicles in order to avoid it being used as a vehicular short-cut through the site.
The Panel agreed that the drop at the Rupert Street edge is rather brutal. It was recommended to explore ways of filling it in to improve livability for some of the units at this edge.
There was a strong recommendation from a Panel member to consider an overlay to clarify pedestrian and vehicular circulation on the site. There was serious concern about potentialconflicts among elderly pedestrians, truck deliveries and vehicular access. It was also recommended that careful consideration be given to the amenity spaces in terms of programming and identifying the amenity rooms and the views in and out.
One Panel member found the massing, materials and treatment of the elevations unresolved and too suburban at this time. It was suggested that each building could have a completely different expression.
The Panel did not believe the development needed an identifying element. As long as the entry points are clearly readable, the development should just blend in as much as possible with the neighbourhood.
Commenting on the proposed phasing of the development, one Panel member questioned if there was a contingency plan in the event one of the phases is unable to proceed."
Environmental Implications Nearby access to transit and the provision of a shuttle bus for transporting residents to a variety of locations and events may reduce dependence on the use of automobiles.
Social Implications There are no major positive or negative social implications to this proposal. There are no implications with respect to the Vancouver Children's Policy or Statement of Children's Entitlements.
Comments of the Applicant The applicant has been provided with a copy of this report and has provided the following comments:
"The Society agrees with and welcomes the staff recommendation for approval. We are also in general agreement with the terms and conditions set out in the report with the following provisos:
1. Subject to satisfactory resolution of specified terms and conditions for the proposed Housing Agreements for Building A and B and subject to exemption from a housing agreement being required for Building C provided the Society achieves 30% of the total units on the site serving core needy seniors per City Policy as set out on Page 7 of the staff report;
2. Exemption of DCLs and CACs as recommended by staff on Page 3 of Appendix C; and
3. Relaxation of parking and bicycle requirements as recommended by the General Manager of Engineering Services in Appendix A."
APPENDIX D (8 pages of architectural drawings)
APPENDIX E
APPLICANT, PROPERTY, AND DEVELOPMENT PROPOSAL INFORMATION
APPLICANT AND PROPERTY INFORMATION
Street Address
2001 Cassiar Street (Beulah Gardens)
Legal Description
Block 92, Sec. 29, THSL Plan 3104
Applicant
LPA Development and Marketing Consultants Ltd.
Architect
The Hulbert Group
Property Owner/Developer
Beulah Garden Homes Society
SITE STATISTICS
GROSS
DEDICATIONS
NET
SITE AREA
14 166 m²
(152,487 sq. ft.)N/A
14 166 m²
(152,487 sq. ft.)DEVELOPMENT STATISTICS
DEVELOPMENT PERMITTED UNDER EXISTING ZONING
PROPOSED DEVELOPMENT
RECOMMENDED
DEVELOPMENT (if different than proposed)ZONING
CD-1
CD-1 (Amended)
USES
Multiple Dwellings (for Seniors)
Multiple Dwellings (for seniors); Special Needs Residential Facility -Congregate Housing
MAX. FLOOR SPACE RATIO
0.44 FSR
1.45 FSR
FLOOR AREA
6 235 m²
(67,115 sq. ft.)Sub-area A 5 300 m² (57,050 sq. ft.)
Sub-area B 6 750 m² (72,660 sq. ft.)
Sub-area C 8 540 m² (91,930 sq. ft.)MAXIMUM HEIGHT
3 storeys
Sub-areas A and B:10.7 m (35 ft.)
relaxable to 13.7 m (45 ft.)
Sub-area C:8 storeys with 4 storeys above Rupert StreetPARKING SPACES
16
130
* * * * *