Vancouver City Council |
CITY OF VANCOUVER
POLICY REPORT
DEVELOPMENT AND BUILDINGDate:
February 1, 2005
Author:
Naundorf, Daniel
Phone No.:
7005
RTS No.:
04728
CC File No.:
5303
Meeting Date:
February 15, 2005
TO:
Vancouver City Council
FROM:
Director of Current Planning
SUBJECT:
CD-1 Text Amendment
Vancouver Community College (King Edward Campus)
1155 East Broadway
RECOMMENDATION
THAT the application by Rainer Fassler, Stantec Architecture, to amend CD-1 By-law No. 5407 for Vancouver Community College, to permit an additional 63,639 m² (685,027 sq. ft.) of floorspace for School and related uses, as well as limited Cultural and Recreational, Institutional, Retail and Service uses, be referred to a Public Hearing together with,
(i) plans received January 14, 2005;
(ii) draft CD-1 By-law amendments, generally as contained in Appendix A, and;
(iii) the recommendation of the Director of Current Planning to approve the application, subject to conditions contained in Appendix B;
FURTHER THAT the Director of Legal Services be instructed to prepare the necessary CD-1 By-law generally in accordance with Appendix A for consideration at Public Hearing, including a consequential amendment to the Sign By-law to establish regulations for this CD-1 in accordance with Schedule B (C-2) as set out in Appendix A.
GENERAL MANAGER'S COMMENTS
The General Manager of Community Services RECOMMENDS approval of the forgoing.
COUNCIL POLICY
On July 22, 2004, Council adopted the "Vancouver Community College King Edward Campus Policy Statement" which provides guidance for considering this rezoning application on issues related to density, built form, urban design, traffic demand management, sustainability, community amenity strategy, and phasing.
An Interim City-wide Community Amenity Contribution (CAC) Policy was approved by Council on January 28, 1999. This policy applies to all non-City initiated rezoning applications received as of December 9, 1998, and stipulates that Community Amenity Contributions be negotiated for non-standard rezonings of sites greater than 0.81ha (2 acres) to achieve a value of at least $3.00 per square foot of increased floor area.
PURPOSE AND SUMMARY
This report assesses and recommends Council approve an application to amend the Comprehensive Development District (CD-1 141) By-law for Vancouver Community College (VCC) at 1155 East Broadway. The amendments would permit a 63,639m² (685,027 sq.ft.) phased expansion for school and related uses, including teaching and study facilities, ancillary facilities, as well as limited Cultural and Recreational, Institutional, Retail and Service uses.
Staff consider this rezoning proposal to be a good response to the objectives and principles of the Vancouver Community College Policy Statement, accommodating an important city and region-serving use at a highly transit accessible location, with a form of development appropriate to its context.
BACKGROUND
The Council-approved Vancouver Community College Policy Statement acknowledges the development needs of VCC on the King Edward Campus site. The Policy Statement describes goals and principles related to urban design, traffic demand management, community amenity, sustainability, phasing and implementation. These goals and principles have been the basis for Staff's assessment of this rezoning application. Staff believe these have been generally achieved by the application and recommend a number of prior-to conditions to address remaining issues. (see Appendix B.)
After an expanded process of community contact work, the rezoning application was reviewed and was largely supported by the local community at two well-attended public open houses. The application has also been reviewed by the Urban Design Panel, which gave it unanimous support. (see detailed Public and Urban Design Panel commentary in Appendix C) The form of development has since been further refined to address issues identified by the community and Staff.
DISCUSSION
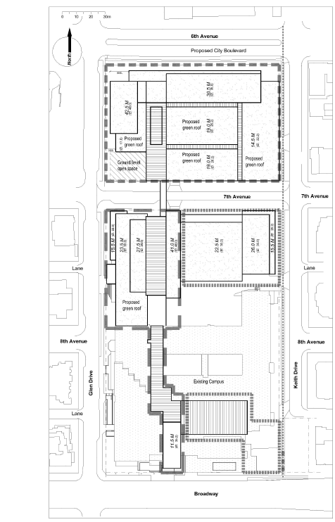
Proposed Development: This rezoning application proposes to accommodate phased expansion of the college over the next 15 to 20 years.
It accommodates the future needs of VCC, by providing a long range "master-plan" including building envelopes of future development. Staff support this approach as it addresses relationships among buildings and provides a measure of certainty for both the college and the surrounding community, with respect to the location, scale, and form of future development on this site.
VCC proposes to first develop a building of approximately 15,500m² (166,846 sq. ft.) to address current space shortages on campus and meet immediate expansion needs. This "Phase 1" development is proposed to house health sciences, music, food services, the student association, an expanded children's daycare facility and study areas.
The programming and timing of development for subsequent phases (in Sub Areas A and B) is less clear, with several possibilities dependant on future provincial funding priorities as well as VCC's own academic focus. Among the potential programs for subsequent phases are expanded auto technology, library, dental, and academic uses as well as expansion of ancillary uses such as food services, administrative offices, student services, and informal student study areas.
Use: The predominant use of the proposed expansion is School and related uses. These include teaching and study facilities, such as classrooms, a library, and workshops as well as ancillary facilities such as offices, cafeterias, and informal student study areas. Other complementary uses are also proposed including Child Day Care use, limited retail and service uses.
The VCC King Edward Campus Policy Statement calls for the creation of a pedestrian-oriented focus of activity on 7th Avenue serving and linking both the campus and neighbourhood. To achieve this objective, staff are recommending that additional select uses, such as Fitness Centre, Retail, Neighbourhood Grocery Store, Print Shop and Restaurant be permitted in the zoning (see Appendix A.) Staff believe these additional uses would serve the VCC campus and community and would help achieve the objective of creating an activity node on 7th Avenue linking the residential areas east and west of the site. To achieve this public interface, staff recommend that grade-level uses fronting onto certain portions of 7th Avenue, be limited to the more public, non-instructional uses such as cafeterias, retail and other active uses to animate the street on what would otherwise become a long institutional frontage. Staff also recommend that these non-instructional uses be required to have direct access from 7th Avenue, and other key locations where animation of the public realm is sought.
Density: The current permitted density in this CD-1 District is 0.9 Floor Space Ratio (FSR), of which 0.82 FSR is built. This rezoning application is proposing an increase in the permitted density to 2.82 FSR. Staff support the proposed density for the following reasons:
· The VCC site is a large one suitable for a major city and region-serving institution. Such large sites are few and far between within the City of Vancouver, and typically accommodate higher densities for public institutions than they would for commercial or residential uses because they function in the broadest public interest.
· Proposed density is comparable to C-2 and C-3A commercial districts adjacent to RM-4 districts along Broadway and is compatible with the permitted density of the industrial area to the north (3.0 FSR)
· the distribution of density has taken advantage of the site's slope with a massing strategy that maintains public views of the city skyline and North Shore mountains while taking into consideration private views of the residential areas.
· the distribution of density has achieved a respectful and compatible massing relationship with the residential context through setbacks and lower scale massing along its street edges and by locating larger, higher massing elements to less sensitive areas within the site to minimize their impact.
· the distribution of density creates a good fit in scale with the industrial zone to the north and east while achieving an enhanced public realm.
Nevertheless, further design development is required to ensure that the scale and massing of the buildings will be compatible with the residential neighbourhood, and to minimize the institutional scale of building masses through the use of high quality materials, articulation and transparency. Details of proposed design conditions of approval are contained in Appendix B.
Form of Development: The Form of Development pursued with this rezoning application has been shaped in part by the views across this site. Specifically, a priority view cone across the site from Broadway to the Downtown established by the existing Council approved CD-1 form of development, has been preserved, as have key secondary views to the North Shore Mountains.
The main organizing principle for the campus plan
has been the creation of an internal glazed circulation "spine" running north-south, parallel to Glen Drive. Key publicly accessible spaces including cafeterias, coffee shops, student study areas and a bookstore are situated along this spine. These uses are also proposed to engage the Glen Drive and 7th Avenue frontages with grade-level entries, terraces and public open spaces.
An improved Broadway presence for the campus is proposed by bringing the pedestrian circulation spine through the existing campus buildings and creating a more prominent entry on Broadway. Other improvements to the Broadway frontage include landscape improvements to the public plaza and the slope adjacent to the Community Gardens located within the Keith Drive right-of-way. These improvements are proposed to begin with the development of Phase 1.
Sustainability: This rezoning application favourably addresses sustainability principles established in the VCC King Edward Campus Policy Statement. To ensure that the most current green building standards are pursued at each stage, staff recommend a condition of rezoning to incorporate green building principles to City standards for institutional buildings, in place at the time of each Development Permit Application.
Open Space: In addition to the open space improvements to the existing Broadway plaza, a significant public open space is proposed at the northeast corner of 7th Avenue and Glen Drive. This location receives good sun-light access, and engages both the central campus circulation spine, and the proposed campus and neighbourhood serving uses on 7th Avenue as well as adjoining Glen Drive pedestrian movements. This open space is proposed to be delivered in conjunction with development of the northerly lot (Sub Area B.)
7th Avenue: The applicant, staff and the community, have noted that presently the VCC Campus, particularly the parking lots straddling 7th Avenue, create a physical divide in the local neighbourhood. The applicant proposes to redress this with a special treatment to 7th Avenue, including significant tree planting, wide sidewalks and traffic calming measures. Noting that 7th Avenue is a Council-approved bicycle route, Staff support this proposal as a means of improving the linkages between the east and west sides of the neighbourhood as well as the north and south parts of the campus. Staff recommend that this east-west street link be further reinforced with a wide variety of campus and community-serving uses. While minor improvements to 7th Avenue, such as a standard sidewalk, are proposed with phase 1 the significant improvements noted above are proposed to be developed in conjunction with development of the northerly lot (Sub Area B.) A separate application to the General Manager of Engineering Services will be required for any special treatment or modification of City Street.
Pedestrian overpass: The applicant has proposed a pedestrian bridge over 7th Avenue linking Phase 1 with development of later phases on the northerly lot (Sub Area B.) which requires a separate application to the General Manager of Engineering Services as it would occur over City street.
The applicant believes that this pedestrian overpass is required for student and faculty circulation and materials distribution, because stairs and elevators will provide all vertical circulation. There is no funding available for escalators. The overpass would facilitate access to 2nd and 3rd level classroom space proposed for Sub Area B. Staff note that pedestrian overpasses are generally not supported in the City of Vancouver, but accept the applicant's rationale for the need to facilitate high volume circulation to proposed upper level classroom space. Staff are therefore prepared to consider a separate application to the General Manager of Engineering Services for the pedestrian bridge over 7th Avenue.
However, the creation of an internal pedestrian route at the 2nd floor level would take students off of 7th Avenue and therefore work against the public objective of creating an animated and safe campus and neighbourhood serving node. The 7th Avenue right of way is also a major utility corridor which will need periodic servicing. Staff therefore recommend that if the proposed pedestrian bridge is pursued, that it be relocated to the 3rd floor level to achieve a minimum vertical clearance of 7.56m (25ft). Staff further recommend specific design development conditions to ensure that a pedestrian bridge at this location is as light and transparent as possible. (see Appendix B.)
Transportation and Parking: VCC campus is well served by transit with local trolley bus service on Clark/Knight(#22) and Broadway(#9) as well as B-line (#99) service on Broadway. Approximately 40% of students and staff currently use transit for their trips to and from the campus. The VCC SkyTrain station (currently under construction) is located north of the campus and will further enhance its transit accessibility. The campus is also at the crossroads of two bicycle routes (7th Avenue and Glen Drive.)
Consistent with the VCC King Edward Campus Policy Statement, and with a view to minimizing automobile trips to the campus, Staff propose a Transportation Demand Management Plan (TDMP) for all phases of development as a prior to enactment condition of this rezoning. This plan will include consideration of the following measures:
(a) Appointment of an Environmental Transportation Administrator by the College to
monitor travel patterns, provide information to students and faculty on TDM measures and liaise with the local community on parking issues.
(b) Implementation of a `U-Pass' programme to encourage transit use.
(c) Measures to improve local pedestrian connections to bus and Skytrain stops.
(d) Provision of an appropriate level of secure and accessible cycle parking.
(e) Appropriate vehicle parking provision and fees.
(f) A strategy to encourage carpooling.
Staff believe that these measures will discourage car travel to the site, help ensure that appropriate levels of parking are provided with each phase of development, and minimize issues related to overspill parking in the surrounding community. Because the final provisions within the TDMP have not yet been determined, staff have not concluded on the precise minimum number of parking spaces to be provided. Thus, staff recommend that the Parking By-law's discretionary parking standard for post-secondary educational institutions be applied to this application, noting that the parking requirement would be determined as part of the development application review associated with each phase of development, considering the effect of TDMP measures. (See Appendix C for a complete discussion of Transportation and Parking.)
To moderate neighbourhood traffic impacts, and facilitate safe and convenient traffic circulation, staff recommend design conditions which limit parking access for Sub Area A to a location along 7th Avenue and for Sub-Area B to a feasible location along Glen Drive.
Public Art: The City's Public Art Program applies to all rezonings of 15 000m² (161,463 sq. ft.) or greater. The VCC development provides a significant opportunity to improve the College and community's public life through artist contributions to the public realm. Staff recommend that a Preliminary Public Art Plan be submitted as a condition of this rezoning.
Community Amenity Contribution: Vancouver Community College currently provides a daycare facility with 37 spaces (MacGregor Day Care) which is used by College employees, students and the local community. This facility will be displaced by the Phase 1 development proposed by this rezoning application. A Community Needs Assessment conducted by staff found that all spaces at the existing MacGregor Day Care are taken and there is an extensive wait list. Using the City's standard basis for calculation, the assessment concluded that the proposed VCC expansion will generate demand for 29 additional infant/toddler childcare spaces.
To mitigate impacts related to the proposed development, staff recommend that VCC be required to provide a short-term temporary relocation of the existing service in a manner which will not disrupt the existing programs, and will meet Community Care Facility Licensing and City standards. Given the space limitations associated with this site, staff have concluded that the temporary facilities may be provided either on or off-site.
Further, staff recommend that, to achieve a financially viable facility, VCC add 12 additional infant/toddler spaces to the existing 37 to create a 49-space program in a new permanent facility to be developed as an integral part of Phase 1. In lieu of the remaining 17 spaces, staff recommend securing an endowment to provide an ongoing operating subsidy for the infant/toddler spaces (costed at $35,000 per space payment-in-lieu) as a condition of the rezoning. This will ensure that Daycare spaces within the augmented replacement Child Daycare Facility will be affordable to VCC employees, students and residents of the surrounding community.
The College has agreed to deliver the Child Day Care facility and the recommended $595,000 with phase 1. In an assessment of the value of delivering the 12 new Child Day Care spaces in an enlarged facility, the applicant's cost estimates are $100,000 greater than City Staff's cost estimate of $600,000. The applicant also asserts that there is a $218,000 cost premium associated with constructing the 49 space DayCare with Phase 1, as it involves concrete construction instead of wood frame construction possible if an alternate interim location were supported. VCC has requested that the City, in assessing the value of the Daycare component of the Community Amenity Contribution, accept the higher construction cost estimates for delivering the additional 12 childcare space and credit a premium for building the enlarged replacement facility in concrete. A detailed review of the cost of the facility is difficult at this early stage of the development. Staff have not conducted a detailed review of estimates provided by the applicant's independent quantity surveyor. Based on a cursory review of the square footage costs of similar developments in concrete construction, staff believe that there is no definitive premium for concrete construction of the daycare when developed as an integral part of Phase 1. Staff also believe that there are greater costs associated with constructing an augmented wooden interim facility and then ultimately demolishing such a facility and replacating it in concrete construction at a later phase as the site is built-out. Staff therefore do not recommend crediting the $100,000 higher cost estimates for delivering the 12 new child care space nor the $218,000 for concrete construction when assessing the overall value of the Community Amenity Contribution.
In the Community Needs Assessment conducted for this rezoning application, Park Board staff noted that providing for additional open space opportunities within Mount Pleasant is a priority as the neighbourhood is park-deficient. The open space proposed with this rezoning application only partly addresses additional park space needs generated by the increase in student population. The doubling of the college's population, combined with the proximity of the two existing parks, means additional pressure on an under-supplied resource. To mitigate these impacts on park space, staff recommend a minimum contribution of $200,000 to the City which would be earmarked for additional facilities and improvements at either China Creek North Park or China Creek South Park or additional park acquisition in Mount Pleasant. VCC has offered to contribute $350,000 for Parks and Recreation for this purpose to be payed at the Building Permit Stage of Phase 3. Staff support this proposal.
As the total value of the proposed CAC contribution falls short of a policy benchmark of $3 dollars/sq. ft., Staff recommend the balance be paid to the City as an unallocated CAC, but that this payment be deferred to coincide with development in Sub-area B.
Employment and Skills Training: On September 28, 2004 Council passed a motion encouraging job creation as a key objective of City policy and instructing staff to take additional steps to set out the economic and job-related aspects of major decisions coming to Council. Consistent with this motion of Council, and consistent with the Vancouver Agreement employment & economic strategies, discussions related to Employment and Skills training were held with the applicant. These discussions resulted in a commitment by VCC to undertake an employment and augmented skills training program tied to the expansion of the College. (See Appendix C for details and a letter from VCC outlining their commitments)
CONCLUSION
Staff support the uses, density and form of development proposed for this site in this application, subject to conditions outlined in Appendix B. Staff consider this rezoning proposal to be a good response to the objectives of the Vancouver Community College Policy Statement with respect to urban design, traffic demand management, community amenity, sustainability and phasing. The proposed By-law amendments would allow VCC to meet future City and region-serving educational needs, in a highly transit accessible location with a form of development appropriate to its context.
The Director of Current Planning recommends that the application be referred to Public Hearing and approved, subject to proposed conditions of approval presented in Appendix B.
- - - - -
APPENDIX A
PART 1 - Draft By-law to amend CD-1 By-law No. 5407
Vancouver Community College Draft for public hearing
(China Creek)
BY-LAW NO. _____
A By-law to amend CD-1 By-law No. 5407
THE COUNCIL OF THE CITY OF VANCOUVER, in public meeting, enacts as follows:
1. From By-law No. 5407, Council repeals sections 1 to 7, and substitutes:
"Zoning District Plan amendment
1. This By-law amends the Zoning District Plan attached as Schedule D to By-law No. 3575, and amends or substitutes the boundaries and districts shown on it, according to the amendments, substitutions, explanatory legends, notations, and references shown on the plan marginally numbered Z-565 attached as Schedule A to this By-law, and incorporates Schedule A into Schedule D to By-law No. 3575.
Uses
2.1 The description of the area shown within the heavy black outline on Schedule A is CD-1 (141).
2.2 Subject to approval by Council of the form of development, to all conditions, guidelines and policies adopted by Council, and to the conditions set out in this By-law or in a development permit, the only uses permitted within CD-1 (141) and the only uses for which the Director of Planning or Development Permit Board will issue development permits are:
(a) Cultural and Recreational Uses limited to Fitness Centre and Community Centre or Neighbourhood House;
(b) Institutional Uses limited to:
(i) Child Day Care Facility,
(ii) Public Authority Use limited to community policing office,
(iii) School - University or College, and
(iv) Social Service Centre;
(c) Office Uses limited to Health Care Office and Health Enhancement Centre;
(d) Retail Uses limited to Grocery or Drug Store, Neighbourhood Grocery Store, and Retail Store;
(e) Service Uses limited to Barber Shop or Beauty Salon, Catering Establishment, Photofinishing or Photography Studio, Print Shop, and Restaurant; and
(f) Accessory Use customarily ancillary to any of the uses permitted by this section 2.2.
Conditions of Use
3.1 Each use located along 7th Avenue must have direct principal pedestrian access at grade from 7th Avenue, except for any child day care facility, heath care office, health enhancement centre, or social service centre.
3.2 No social service centre, health care office, health enhancement centre, or school - university or college may exist within the first storey of any building that fronts the north side of 7th Avenue between Glen Drive and Keith Drive for a depth of 10.7 metres from the front wall of the building, except for entrances to such uses and for accessory uses to a school - university or college.
3.3 No social service centre, health care office, health enhancement centre, or school - university or college may exist within the first storey of any building that fronts the south side of 7th Avenue in Phase 1, shown in Figure 1, for a depth of 10.7 metres from the front wall of the building, except for entrances to such uses and for accessory uses to a school - university or college.
3.4 For the purposes of sections 3.2 and 3.3, principal school - university or college uses include instructional classrooms, lecture theatre, regional offices, continuing education officers, and vocational trade shops, and accessory school - university or college uses include cafeterias and bookshops.
3.5 The width at the front of any grocery or drug store on 7th Avenue must not exceed 15 m.
3.6 If the Director of Planning or Development Permit Board first considers:
(a) the approved form of development;
(b) all applicable policies and guidelines adopted by Council;
(c) the relationship of the development with nearby residential areas;
(d) pedestrian needs; and
(e) submissions from any advisory groups, property owners, or tenants;
the Director of Planning or Development Permit Board may relax the restrictions set out in sections 3.2 and 3.3.
Density
4.1 For the purpose of computing floor space ratio, the site size is 31 531 m2 ,being the size at the time of the rezoning application and before dedication of any part of the site.
4.2 The floor space ratio for all uses must not exceed 2.82 or 88 815 m.
4.3 Computation of floor space ratio must include all floors of all buildings, both above and below ground level, to be measured to the extreme outer limits of the building.
4.4 Computation of floor space ratio must exclude:
(a) balconies, canopies, open concourses, sundecks, and other features which, in the opinion of the Director of Planning, are similar to the foregoing;
(b) patios or roof gardens only if the Director of Planning first approves the design of sunroofs and walls;
(c) where floors are used for off-street parking and loading, the taking on or discharging of passengers, bicycle storage, heating and mechanical equipment, or uses which, in the opinion of the Director of Planning, are similar to the foregoing, those floors or portions thereof so used which are at or below the base surface, except that the maximum exclusion for a parking space must not exceed 7.3 m in length;
(d) no more than 10% of the maximum permitted floor area of child day care facilities only if, in the opinion of the Director of Planning on the advice of the Director of Social Planning, is satisfied that there is a need for a day care facility in the immediate neighbourhood; and
(e) where a Building Envelope Professional as defined in the Building By-law has recommended exterior walls greater than 152 mm in thickness, the area of the walls exceeding 152 mm, but to a maximum exclusion of 152 mm thickness.
Building Height
Figure 1: Sub Areas
5.1 Figure 1 shows the site including Phase 1, Sub-area A, Sub-area B, and the balance of the site.
Figure 2: Maximum Building Heights
5.2 Figure 2 shows the maximum building heights set out in this section 5.
5.3 In Phase 1, the building height must not exceed 15.5 m.
5.4 In Sub-area A, the building height must not exceed 15.5 m.
5.5 In Sub-area B, the building height must not exceed 18.2 m.
5.6 Despite sections 5.3, 5.4, and 5.5, if the Director of Planning or Development Permit Board first considers:
(a) the approved form of development;
(b) all applicable policies and guidelines adopted by Council;
(c) the relationship of the development with nearby residential areas;
(d) the height, bulk, location, and overall design of the buildings, and their effect on the site, surrounding streets, and existing views;
(e) pedestrian needs; and
(f) submissions from any advisory groups, property owners, or tenants;
the Director of Planning or Development Permit Board may allow an increase in maximum building height to 41.0 m in Phase 1, 26 m in Sub-area A, and 42.5 m in Sub-area B.
Setbacks
6.1 Figure 3 shows the building setbacks set out in this section 6.
6.2 In Phase 1, the setback must be at least:
(a) three m from the property boundary adjoining the east side of Glen Drive for any portion of a building that is 15.5 m or less in height; and
(b) six m from the property boundary adjoining the east side of Glen Drive for any portion of a building that is more than 15.5 m in height.
6.3 In Sub-area A, the setback must be at least:
(a) three m from the property boundary adjoining the west side of Keith Drive for any portion of a building that is 15 m or less in height; and
(b) six m from the property boundary adjoining the west side of Keith Drive for any portion of a building that is more than 15m in height.
6.4 In Sub-area B, the setback of any portion of a building must be:
(a) no more than three m from the property boundary adjoining the west side of Glen Drive; and
(b) at least four m from the property boundary adjoining the south side of Great Northern Way.
Figure 3: Building Setbacks
Parking and loading, and bicycle storage
7. Any development or use of the site requires the provision, development, and maintenance of off-street parking, loading, and bicycle storage in accordance with the requirements of, and relaxations, exemptions and mixed use reductions in, the Parking By-law.
Severability
8. A decision by a court that any part of this By-law is illegal, void, or unenforceable is not to affect the balance of the By-law."
2. This By-law is to come into force and take effect on the date of its enactment.
ENACTED by Council this day of , 2005
_______________________________
Mayor
_______________________________
City Clerk
PART 2 - Draft amendments to Sign By-law No. 6510
Amend Schedule E (Comprehensive Development Areas) by adding the following:
"Vancouver Community College [CD-1(141)] [By-law No. 5407] B (C-2)"
PART 1 - Draft By-law to amend CD-1 By-law No. 5407
APPENDIX B
PROPOSED CONDITIONS OF APPROVAL
DESIGN DEVELOPMENT
(a) That prior to approval by Council of the form of development, the applicant shall obtain approval of a development application by the Director of Planning who shall have particular regard to the following:
GENERAL
(i) design development to incorporate green building principles to City standards for institutional buildings in place at the time of any Development Permit Application;
Note to applicant: Measures to be considered are described in the Vancouver Community College Kind Edward Campus Policy Statement - Green Building Principles.
(ii) design development to minimize the overall institutional scale and massing of the building components through the use of high quality materials, articulation and transparency;
Phase 1
(iii) design development to the Glen Drive elevations to articulate and reduce its apparent scale as it relates to the residential neighbourhood to the west;
Note to applicant: Building elements higher than 15.5m should be setback at least 6m from the property line. Along the Glen Drive frontage, new development should respect the scale of the residential neighbourhood with an objective of building height to be generally no more than 3m (9.8ft) higher than the maximum height permitted under the adjacent (RM-4) zoning.
(iv) design development to maximize the public orientation and visual distinction of campus uses, such as bookstore, fitness centre, cafes or similar animating uses to enhance the pedestrian interface and provide animation and visual interest along Glen Drive and 7th Avenue;
Note to applicant: A high degree of transparency and accessibility should be provided along these frontages.
(v) design development to the 7th Avenue grade level entry to further demonstrate and emphasize its importance as one of the principle entries for the campus;
Note to applicant: In addition to preserving this principle grade level entry to the campus at the completion of the master plan, provision of interim pedestrian circulation routes (such as from VCC Skytrain Station, from Great Northern Way at Glen Street, and through parking areas) should be provided that will support the importance of this entry.
(vi) design development to enhance the principle pedestrian entry along 7th Avenue by providing greater separation with the proposed parking entry in Sub-Area A;
Note to applicant: Parking access along the south frontage of 7th Avenue should be relocated within Sub area A of the development.
(vii) design development to improve the campus presence along the Broadway frontage with an enhanced entrance element and public functions that extends and gives emphasis to the principle pedestrian circulation (spine) within the campus our to Broadway, combined with landscaping improvements to the existing plaza;
Note to applicant: Further reinforcement of this entrance should include the introduction of animating uses.
SUB-AREA A - Subsequent Phases
(viii) design development to ensure a compatible massing relationship with the residential uses across Keith Drive and to further strengthen the new development massing with the existing campus;
Note to applicant: Along the Keith Drive frontage, new development should respect the scale of the residential neighbourhood with an objective of building height to be generally no more than 3m (9.8ft) higher than the maximum height permitted under the adjacent (RM-4) zoning.
(ix) design development to the Keith Drive frontage to achieve a compatible relationship with the residential uses across the street by maximizing its transparency and visual interest;
(x) design development for the 7th Avenue parking access/egress to minimize its aperture on the streetwall and to maximize pedestrian safety.
Note to applicant: to ensure good sitelines between motorists, cyclists and pedestrians, at the sidewalk crossing, the ramp should be set back within the building as far as possible
(xi) design development to enhance the public realm interface along the south side of 7th Avenue by:
a. further enhancing the public realm interface with the inclusion of interactive or retail uses at grade level.
b. minimizing the elevation differences between the floor level of the proposed auto trade shops with the adjacent sidewalk;
c. maximizing the transparency, entry and display functions of the street level frontage to achieve a high degree of animation and visual interest of the proposed auto trade shops and library uses along the 7th Avenue frontage; and
d. enhanced surface and landscape treatments which may also include expanded sidewalk areas.
Note to applicant: a conceptual plan for treatment of both sides of 7th Avenue should be
provided with plans for development with sub-area A.
(xii) design development to enhance the public realm environment along 7th Avenue by maximizing sun access to the north sidewalk;
Note to applicant: Reducing the height of proposed massing within Sub-Area A and/or sculpting of the upper floors to reduce shadowing along the north sidewalk measured at the Equinox between 10:00 and 4:00 p.m. should be pursued.
(xiii) design development to enhance the Broadway Street frontage by resolving the gap in the frontage caused by the existing below street grade service area;
Note to applicant: While preserving the city skyline view; uses and/or built forms proposed in this area should be considered in context with the existing southerly open courtyard area to allow for a connection to the main circulation spine.
(xiv) design development to convert the existing southerly open courtyard located within the campus into a covered daylit courtyard;
Note to applicant: Consideration should be given to the removal of the existing elevated concrete overpass that bisects this space.
SUB-AREA B
(xv) design development to reduce project scale and mitigate view impacts from nearby properties from the east and southeast of Keith Drive and 7th Avenue;
(xvi) design development to the Glen Drive frontage to enhance the building form to frame and strengthen its presence on the east edge of China Creek Park;
(xvii) design development to enhance the public realm interface along the north side of 7th Avenue by:
a. provision of a variety of campus and community-serving uses, such as cafes, fitness centre, retail, bookstore or other equally animating uses, with direct visibility and multiple pedestrian access/interface from 7th Avenue and the corner open space; and
b. minimize elevation differences between the floor level of the proposed uses with the adjacent sidewalk; and
c. maximize transparency of the street level frontage to achieve a high degree of animation and visual interest of the uses along 7th Avenue and the edges of the corner open space; and
d. high quality enhanced surface and landscape treatments which may also include expanded sidewalk areas, and a double row of trees.
(xviii) design development to ensure 7th Avenue as an important pedestrian environment by ensuring internal campus routes provide robust grade level pedestrian connections linking proposed entry points near Keith and Glen Drives along Great Northern Way through to 7th Avenue;
(xix) design development to enhance the pedestrian interface along the southeast corner frontages of Keith Drive and 7th Avenue with a publicly oriented campus use and to maximize the transparency of its street level frontage to achieve a high degree of animation and visual interest;
(xx) design development to the proposed pedestrian bridge to be light and transparent as possible allowing for a strong visual connection and natural light to the street below;
(xxi) design development to locate the loading access and egress for this sub area along the Keith Drive frontage; and
(xxii) design development to the 7th Avenue street right of way to provide a street configuration, traffic calming, and surface treatments that will facilitate and enhance the pedestrian environment, particularly the usability of public space along the north edge of 7th Avenue
Note to applicant: A variety of measures could be pursued such as:
a) maximize sidewalk widths to accommodate two rows of trees along the north sidewalk and one row of trees along the south sidewalk; and
b) a maximum of two (vehicle) lanes and provision of bike lanes to both sides; and
c) provision of a lay-by along the south west frontage between Glen Drive and principle entry (Phase 1); and high quality enhanced surface treatments;
LANDSCAPE
(xxiii) design development should ensure that the proposed landscaping areas at grade and on the roofs, as illustrated on the plan and section schematics included in the Rezoning Report dated July 2004, be provided and will be accessible;
Note to applicant: The new landscape areas should provide an attractive natural green setting for both active and passive uses by the students who will use the facility. The landscape treatment of the pedestrian-oriented areas of the public realm bordering all the five streets of this site will form a large part of the success of this application.
(xxiv) design development to improve the quality and presence of the public realm with benches, street trees, landscape planting, special paving and generous sidewalks. Bikeways should be clearly identified with provision made for bike parking especially on East 7th Avenue;
(xxv) design development with each phase of development, to improve the quality of the public realm by providing durable, weather-proof and comfortable seating, street trees, generous sidewalks, and landscaping;
(xxvi) provision, with each development permit application, of a legal survey illustrating the following information:
1. Existing trees 20cm caliper or greater on the development site
2. The public realm (property line to curb), including existing street trees, street utilities such as lamp posts, fire hydrants, etc. adjacent to the development site.
(xxvii) provision, with each development permit application, of a Certified Arborist assessment of the condition of all existing trees located outside of the proposed building envelopes and to be retained;
Note to applicant: provision of additional street trees adjacent to the development site should be done in consultation with the General Manager of Engineering Services and Park Board. Notation of New street trees on the Landscape Plan should read: "Final species, quantity and spacing to the approval of the General Manager of Engineering Services and Park Board." Contact Eileen Curran (871-6131) of Engineering Streets Division regarding street tree spacing and quantity. Contact Bill Stephen (257-8587) of Park Board regarding tree species.
(xxviii) design development to include night lighting in all the outdoor public and private areas;
(xxix) provision, with each development permit application, of a full Landscape Plan illustrating proposed plant materials;
Note to applicant: Common and botanical names, including sizes and quantities, paving, walls, fences, and other landscape elements should be noted. Landscape Plan should be at 1:100 ( 1/8"=1'-0" minimum scale. The public realm (building edge to the curb), including the Community Garden Walkway connecting Broadway to Keith Drive, should be illustrated on the Landscape plan. All existing street trees and public utilities such as lamp posts, hydro poles, fire hydrants, etc. should be noted;
(xxx) Provision, with each Development permit application, a plan illustrating interim parking, tree retention and replacement; and
(xxxi) Provision, with each development permit application, of a detailed large scale (1:50 or 1/4"=1'-0") sections showing the planting depths for the proposed roof decks, including all green roofs;
CRIME PREVENTION
(xxxii) Design development to take into consideration the principles of CPTED (Crime Prevention Through Environmental Design) having particular regard for;
· open visibility and surveillance of walkways particularly in the vicinity of the transit station,
· Reducing the number of pathways through the site for better control of the campus,
· significant design development to reduce opportunities for theft in the parking areas;and reducing opportunities for;
· mischief in alcoves and undefined areas,
· other mischief such as graffiti;EMPLOYMENT AND SKILLS TRAINING
(xxxiii) Provision, with each development permit application, of a report to
Planning Staff and the Vancouver Agreement Coordination Unit, outlining the type and number of potential employment opportunities for local, inner city residents, as well as any skills training initiatives being undertaken by VCC.
Note to applicant: In addition to current recruitment practices, VCC, its contractors and subcontractors must use the Social Purchasing Portal (SPP) and take advantage of other community recruitment initiatives to post positions and bids, etc. on all construction related contracts and subcontracts and in other operational areas where appropriate. A semi-annual construction related skills training and employment strategy plan and progress report on the number of inner city residents hired, the number of positions and bids posted on the SPP and filled should be prepared by VCC in consultation with Planning and Vancouver Agreement staff. Staff will work with VCC on the development of an appropriate tracking mechanism and progress report format related to other skills training and employment initiatives being undertaken by VCC. Contact Celine Mauboules (604.871.6198) Planning Department or Jill Porter (604.873.7262) Vancouver Agreement Office.
(b) That, prior to enactment of the CD-1 By-law, the registered owner shall at no cost to the City:
i) Clarify all charges registered in the Land Title Office against the title to the lands (a charge summary, including copies of all charges, must be provided) and include the modification, extension or release of any charges deemed necessary by the Director of Legal Services.
ENGINEERING SERVICES
ii) Execute agreements to the satisfaction of the Director of Legal Services in consultation with the General Manager of Engineering Services for the following:
a) a cash contribution of $50,000.00 for improvements to the 6th Ave and Glen Drive pump station.
Note to applicant: Engineering Services does not support the proposed
on-site pump station. All storm and sanitary services will be standard
gravity connections.)
b) Upgrading of the water system to provide adequate fire protection needs for all phases of the development.
Note to applicant: additional details and clarification is needed to determine any potential upgrading.
c) Provision of a raised left turn bay on Broadway for eastbound traffic on Broadway to northbound traffic on Glen Dr. subject to an analysis of traffic demands and patterns following each phase of development.
Note to applicant: a consultant's study will be required.
d) Provision of a raised left turn bay on Great Northern Way at Glen Dr. for west to southbound traffic, including provision of an interim (painted) left turn bay.
e) Provision and implementation of a traffic demand management plan for all phases of the development.
f) Provision of street trees adjacent all sides of the existing campus and proposed expansion on lot 95 where appropriate and where space permits.
g) Provision of sidewalk and curb ramp improvements on Broadway adjacent the site.
Note to applicant: infilling and upgrading to select areas along the Broadway frontage of the site will be required
h) Provision of sidewalk on the north side of 7th Avenue from Keith Dr to Glen Dr. prior to occupancy of the first phase of the development.
i) Provision of special sidewalk and road improvements on 7th Ave, between Glen Dr. and Keith Dr to the satisfaction of the General Manager of Engineering Services in consultation with the Director of Current Planning.
Note to applicant: A separate application to the General Manager of Engineering Services is required for any special treatments of public property.
j) Provision of traffic calming measures on 7th Avenue between Glen Drive and Keith Drive as an alternate to the proposed 7th Avenue special sidewalk and road improvements.
k) Provision of traffic calming measures between Broadway and 7th Ave, west of the campus, in consultation with the community to a maximum of $50,000.00 and on 7th Ave between Keith Dr. and Glen Dr.
l) Relocation of the GVS&DD sewer line that passes through the site, including discharge of the related agreements from title prior to any development permit for the site.
m) Provision of a public stairway from Broadway connecting to Keith Drive adjacent the east side of the site and pedestrian improvements along the west side of Keith Drive from Broadway to the new Skytrain station.
Note to applicant: A separate application to the General Manager of Engineering Services is required.
Note to applicant: Engineering does not support the proposed curb
adjustments on Keith Dr, north of the proposed stairway.
n) Dedication or other arrangements to the satisfaction of the General Manager of Engineering Services and the Director of Legal Services, of the north 4.0 meters of block 95 for road purposes.
o) Relocation of the fence currently located on public property on Broadway adjacent the site, back to the property line.
p) Provision of a construction management plan for each phase of construction prior to issuance of the related development permit.
q) Release of any redundant charges on title prior to any development permit for each phase of development.
r) Provision of a cost estimate for all of the above mentioned works on public property and sewer relocation (to determine appropriate security for the rezoning works)
(iii) Make arrangements satisfactory to the General Manager of Engineering Services for the following:
a) Proposed pedestrian bridge over 7th Ave will require a separate application to the General Manager of Engineering Services.
Note to applicant: Issues for the proposed pedestrian bridge include transparency, demountability and height clearances.
b) Undergrounding of all of the existing aerial utilities and services on Great Northern Way adjacent block 95.
c) Undergrounding of any new BC Hydro or Telus service for the site from the closest existing suitable service point.
DAYCARE
iv) Execute an agreement satisfactory to the Director of Legal Services in consultation with the Director of Social Planning to provide,at no cost to the City, for a fully furnished (i.e. ready for immediate occupancy) licensable temporary Child Day Care facility, on or in close proximity to the existing site, to accommodate children from the current program, until the permanent Child Day Care facility is completed in phase 1.
v) Execute an agreement satisfactory to the Director of Legal Services in consultation with the Director of Social Planning to provide for a fully fit, furnished and equipped 49 space licensed daycare facility, for 24 infants/toddlers and 25 three to five year olds, including the required outdoor play space and on-site parking, at no cost to the City.
vi) Pay to the City as a community amenity contribution $595,000 for the Childcare endowment Fund or make arrangements satisfactory to the Directors of Legal Services and Social Planning to secure payment of $595,000 to the Childcare endowment with interest at the City rate as determined by the Director of Finance from time to time, compounded annually from the date of enactment of this rezoning and payable prior to issuance of any building permit for Phase 1.
SOILS
vii) Make arrangements for obtaining and submitting to the City copies of all soils studies and the consequential Remediation Plan for the site including streets (civic lands), approved by the Ministry of Water, Lands, and Air Protection and acceptable to the City. Execute agreements satisfactory to the Director Legal Services and the City Manager, in consultation with appropriate Department Heads, obligating the property owner to;
a) remediate to the satisfaction of the Ministry of Water, Lands and Air Protections and with respect to the City, to the satisfaction of the City, any contaminated soils on the subject site and civic lands in accordance with a Remediation Plan approved by the Ministry of Water, Lands and Air Protection, and;
b) indemnify the City, the Approving Officer and the Park Board and their employees against any liability or costs which may be incurred as a result of the presence of contaminated soils on the site and civic lands, including costs arising as a result of any failure to carry out the aforementioned approved Remediation Plan and provide such security for the indemnity as the Director of Legal Services deems necessary.
(viii) Execute a Section 215 agreement, satisfactory to the Director of Legal
Services, that there will be no occupancy of any buildings or improvements constructed pursuant to this rezoning on the site and civic lands until the contaminated soils on the subject site have been remediated to the satisfaction of the Ministry of Water Lands and Air Protection (and all relevant Federal authorities to the extent that the same evaluate the remediation), and to the satisfaction of the City with respect to lands dedicated or transferred to the City, in accordance with a remediation plan approved by the Ministry of Water, Lands and Air Protection, and acceptable to the City.
PUBLIC ART
(ix) Execute an agreement, satisfactory to the Director of Legal Services in consultation with the Director of the Office of Cultural Affairs for the provision of public art in accordance with the City's Public Art Policy, such agreement to provide for security in a form and amount satisfactory to the aforesaid officials; and
(x) Submit a preliminary public art plan to the satisfaction of the Director, Office of Cultural Affairs setting out the proposed public art program aims, artist terms of reference, site and artist selection methods, project budget, implementation plan and a schedule.
PARKS
(xi) Execute an agreement, satisfactory to the Director of Legal Services in consultation with the General Manager of Parks and Recreation for the provision of a Community Amenity Contribution of $350,000, for Parks and Recreation purposes adjusted to account for changes in the construction price index, from the date of enactment of this rezoning and payable prior to any development permit for Sub Area B.
COMMUNITY
AMENITY CONTRIBUTION
(xii) Execute an agreement, satisfactory to the Director of Legal Services securing an unallocated Community Amenity Contribution (CAC) payable to the City in the amount of $318,000 adjusted to account for changes in the consumer price index, from the date of enactment of this rezoning payable prior to issuance of a building permit for any development in Sub-area B.
Where the Director of Legal Service deems appropriate, the preceding agreements are to be drawn, not only as personal covenants of the property owner, but also as Covenants pursuant to Section 219 of the Land Title Act.
Such agreements are to be registered in the appropriate Land Title Office, with priority over such other liens, charges, and encumbrances effecting the subject site, as is considered advisable by the Director of Legal Services, and otherwise to the satisfaction of the Director of Legal Services prior to enactment of the by-law; provided, however, the Director of Legal Services may, in her sole discretion and on terms she considers advisable, accept tendering of the preceding agreements for registration in the appropriate Land Title Office, to the satisfaction of the Director of Legal Services, prior to enactment of the by-law.
The preceding agreements shall provide security to the City including indemnities, warranties, equitable charges, letters of credit and withholding of permits, as deemed necessary by and in a from satisfactory to the Director of Legal Services.
The timing of all required payments shall be determined by the appropriate City official having responsibility for each particular agreement, who may consult other City officials and City Council.
APPENDIX C
ADDITIONAL INFORMATION
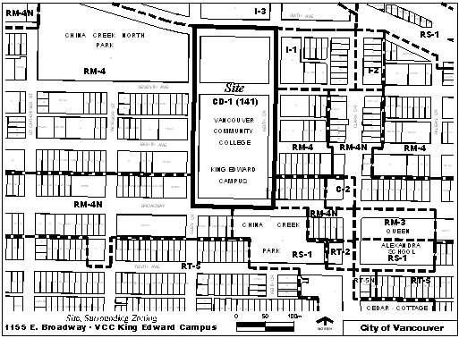
Site, Surrounding Zoning, and Development: This 31 531m² (7.8 acre) site is a rectangular piece of land bordered by the 1100 Block of East Broadway to the south, Keith Drive to the east, Glen Drive to the west and Great Northern Way to the north. East 7th Avenue separates the campus into two full block parcels. The southerly block of the site slopes significantly from south to north, dropping approximately 20m from Broadway to 7th Avenue.
Proposed Development: This rezoning application proposes to accommodate phased expansion of the college over the next 15 to 20 years. A "Phase 1" building of approximately 15,500m² (166,846 sq. ft.) is proposed to house health sciences, music, food services, the student association, an expanded children's daycare facility and student study areas.
The college projects that it will need a total of 63,639 m² (685,027 sq. ft.) of additional floor area for future programs, including expanded auto technology, library, dental, and academic uses as well as associated expansion of food services, administrative and student services, as well as informal student study areas. Other complementary uses are also proposed including Child Day Care use, limited retail and service uses.
The total floor area of 88,815m² (at build-out) will result in a density of 2.8 Floor Space Ratio on the site.
Engineering Services Comments on Transportation and Parking: The main transportation issues for the expansion proposed by this application centre on traffic generation and parking. On behalf of VCC, Bunt & Associates Engineering (Bunt) was hired to study and plan for these issues. The work by Bunt included a survey of student and faculty travel habits, and attitude towards a U-Pass program, identification of desirable elements of a Transportation Demand Management Plan (TDMP), parking demand analysis, and traffic generation and impacts mitigation analysis. While it was found that the school community out-performs Vancouver's other non-Downtown post-secondary institutions in terms of vehicle trip generation and transit ridership, there was still room for improvement. Much effort was given to development of a comprehensive TDMP to further reduce single-occupant car use while promoting other modes. The Plan is expected to include: a Site Transportation Co-ordinator to promote sustainable transport, monitor Plan effectiveness, and liaise with the nearby community on any problems that may develop; improved information methods; ridesharing/carpooling promotion; transit subsidies/U-Pass; bicycle and walking encouragement; and parking supply and pricing management.
The amount of parking needed for the site is tied to a number of factors - the supply of parking on the site, the pricing of parking, the supply of transit services [e.g. SkyTrain extension to new terminus west of Clark, a block north of the campus], availability of on-street parking, enforcement against illegal parking, and the effectiveness of the U-Pass and other elements of the TDMP. While the existing supply of parking on campus property is noted as 533 spaces, the Bunt study expects peak demand at the end of Phase I, including an extended SkyTrain, to be 560 to 630 spaces. Bunt suggests, however, that the supply of parking may be reduced to no more than 450 spaces with an effective TDMP and continuance of off-site parking practices. Because of the uncertainty at this point in regard to the final provisions within the TDMP, including timing for U-Pass, and designs for local streets, which may reduce parking availability, staff have not concluded on the number of parking spaces to be supplied at minimum. Thus, the Parking By-law's [discretionary] parking standard for post-secondary educational institutions is most appropriate for the zoning, and the parking requirement would be determined as part of the development application review.
The consultant's "VCC - King Edward Campus Phase 1 Expansion Traffic Impact Study" [August 2004] examined existing traffic conditions for the campus and environs, and projected traffic growth and impacts for 2007, with Phase 1 development operational. While the student population was not projected to grow from the current 3449 full-time equivalents to the ultimate 4007 FTE until later than 2007, for the purposes of the traffic analysis 4007 FTE was used. In addition, an analysis for "Opening Day + 10 Years" [i.e. 2017] was performed to indicate longer-term requirements. The consultant found the intersections of Broadway/Clark and Clark/Great Northern Way to have capacity/delay concerns, particularly the latter, and recommended that the City expedite its plan to introduce a left turn bay on northbound Clark approaching Great Northern Way and provide it as soon as possible. The school's contribution to the growth in intersection volumes was relatively small. The consultant also recommended that no left turn prohibitions be installed against eastbound Broadway vehicles turning north at Windsor or St. Catherine's Streets to allow drivers to take advantage of gaps in traffic and not place a burden on Broadway at Glen Drive; furthermore, Bunt recommended that a painted left turn bay be installed on Broadway at Glen, with parking removed, so eastbound through traffic would not be delayed.
Staff agree with the need to implement the left turn bay as soon as possible on Clark Drive at Great Northern Way; this is being funded separately. However, VCC is being required to provide funding for an interim left turn bay for westbound traffic on Great Northern Way at Glen Drive, in conjunction with the access loop Translink is proposing for the opening of the new SkyTrain station at Great Northern Way/Keith Drive. VCC will also be obligated to upgrade this left turn bay when Great Northern Way is rebuilt to serve overall redevelopment in the False Creek Flats. Dedication of a maximum of 4m of land from the northernmost lot is required from VCC in order to accommodate the rebuild of Great Northern Way. VCC will be obligated to provide a raised left turn bay for eastbound traffic on Broadway at Glen Drive following Phase 1 development should a post-development review of traffic prove this necessary. A new traffic/ped signal is to be installed at the Great Northern Way/Keith Dr. intersection in time for opening of the new SkyTrain station, paid for by the rapid transit project. VCC will also be required to provide for the construction of a public stairway along Keith Dr. connecting to Broadway as well as pedestrian scale improvements along Keith Drive between Broadway and Great Northern Way to improve pedestrian linkages to the new SkyTrain station. VCC has proposed extensive treatments to, and reconfiguration of 7th Avenue between Glen Dr. and Keith Dr.; a separate application to the General Manager of Engineering Services is required, noting that as a minimum VCC will be required to provide traffic calming measures along 7th Avenue in order to minimize potential conflicts between pedestrians, cyclist and motorized vehicles. Finally, VCC is required to provide $50,000 to provide traffic management devices west of the campus, to address neighbourhood traffic concerns; these will be determined as part of a consultative process between the residents, VCC, and City.
Skills Training and Employment Strategies: City and Vancouver Agreement Office Staff discussions with VCC have resulted in a commitment by the college to undertake an employment and augmented skills training program tied to the expansion of the College.
During the construction phase of the project, contractors and sub-trades will be required to work with community organizations such as BladeRunners and the Case Coordination Project to facilitate the hiring of local residents from the DTES, Mount Pleasant and the Grandview/Woodlands neighbourhoods. This commitment to collaborate with the community will continue for future phases of campus development. City and Vancouver Agreement Coordination Unit staff will assist VCC in making the appropriate linkages and will monitor hiring activities to ensure these requirements are met. As a condition of development, the City also requires that VCC report to City and Vancouver Agreement Coordination Unit staff every six months on the number of inner city residents hired. Staff will work with VCC to develop an appropriate reporting mechanism as well as provide guidelines in identifying multi-barriered individuals.
VCC has committed to some ongoing operational activities in addition to the above construction activities. VCC has a strong, successful history of delivering training programs for the unique needs of the inner-city communities. The college has committed to continuing with their community work as well as formalizing working relationships with the Case Coordination Project and members of the Vancouver Agreement employment and economic task teams in order to align their work with the economic revitalization and employment strategies.
The City expects VCC to work with other stakeholders, including the private sector, to identify gaps in skill training programs, develop programs in response to these needs and ensure accessibility to these programs for local residents. This will include outreach activities on behalf of the college wherever possible, and participation in industry roundtables and discussions with the community about training needs for long-term unemployed and underemployed residents.
Additionally, VCC will assist the City and the Vancouver Agreement Coordination Unit to link with existing and new VCC service contractors to address hiring for operational positions on campus. This will include the provision of names and contact information for service contractors. It is expected that VCC will participate, as well as encourage its contractors to use the Social Purchasing Portal (www.ftebusiness.org) to post these types of positions.
One of the goals of the Vancouver Agreement is to engage both the public and private sectors in the work the 3 levels of government are doing to coordinate employment related services, identify gaps and develop new programming that is industry and demand driven and which will help create real jobs for the residents of the inner city communities. The City believes that the above commitments will address the need to work together in facilitating the economic and employment activities under the Vancouver Agreement.
Public Input: A public consultation process was conducted as part of developing the Vancouver Community College King Edward Campus Policy Statement which included two Open Houses in which the proposal was shared with members of the community. Following submission of the rezoning application, City staff conducted an intensive public consultation process which included outreach to a broad spectrum of community stakeholder groups. Staff were available to engage with these groups in a discussion about the rezoning application. Several representatives of stakeholder groups advised staff that their respective communities did not wish to meet separately but that they would notify their constituents of the community open houses. Two stakeholder groups provided general unqualified support for the proposed rezoning to accommodate expansion VCC on the King Edward Campus.
The community outreach culminated in two public Open Houses on October 19 and 23, 2004. Approximately 42 people attended the Open House at Mount Pleasant Neighbourhood House on Tuesday, October 19 and approximately 54 people attended the open house at the VCC King Edward Campus on Saturday, October 23. A total of 37 people attending these open houses provided written comments. Staff also received 8 phone calls, 3 e-mails, and a faxed letter relating to this application.
A large majority of those who submitted comments were supportive of the proposed development. Specifically, community members expressed that the development was well planned and would benefit the community by increasing opportunities for higher education and career development, providing an active focal point for the neighbourhood, improving the local economy, and increasing the quality and quantity of open space/green space.
The most frequently cited concerns were related to increased traffic volumes and increased parking on surrounding residential streets by College students, faculty and staff. Other concerns were raised about the heights of the two tallest building elements, which were felt to be out of character with the existing residential neighbourhood. Some concerns about the associated blocking of views from private residences to the east of the site were raised. Suggestions for changes to the proposed development were primarily focused on traffic calming and mitigation measures.
Urban Design Panel Commentary: The Urban Design Panel discussed this proposal in two workshops in March and April of 2004, prior to the submission of this rezoning application. The Panel reviewed the application on October 27, 2004 and supported it unanimously. The panel offered the following comments:
"Panel's Consensus on Key Aspects Needing Improvement:
The Panel unanimously supported the rezoning application and noted there has been considerable development and refinement to bring legibility to the campus.
Areas of importance to the Panel included:
· The identification of the campus on Broadway is critical and should be established in Phase 1; this can be achieved with small gestures initially;
· Diversity within the functions and services within the campus should be encouraged (not only food and bookstores);
· If this development is respecting the view corridor the City needs to consider view impacts on the Finning lands;
· The location of the parking entries should be further explored because it seems to conflict with the quality being sought for 7th Avenue;
· Consider refining the higher building elements to the south of 7th Avenue to lessen shadowing on 7th;
· The Panel strongly supported the height of the pedestrian bridge as proposed (5 m);
· The proposed height of the massing adjacent to the park was supported but with advice not to soften this edge too much;
· Sustainability should be embedded in the rezoning.
Related Commentary:
In general, the Panel found the massing to be very well resolved and commented on the positive results of having thorough workshop discussions before presenting the rezoning application. The Panel agreed that all the major issues have been adequately addressed.
The Panel considered the creation of a presence on Broadway to be key to bringing the whole campus together. This should occur in phase one and could include fairly modest gestures such as signage and bringing a canopy out to Broadway. The Panel agreed that currently the presence is very weak and this project needs to contribute much more to Broadway. It needs not only to announce the expanded campus but to provide a clear entry to the central pedestrian spine. The spine is the most important characteristic of the whole project and it is important that it not get lost in subsequent phases of the development.
The Panel supported the direction being taken on 7th Avenue. Its use as a pedestrian link and the heart of the campus should be encouraged and everything should be done to reinforce its pedestrian nature, including different paving materials and traffic calming measures. It must be made evident that it is not a regular street. However, given the objective of making 7th Avenue a pedestrian-dominant street, the Panel seriously questioned the location of the parking entries which will draw a large amount of traffic to the street.
The Panel strongly supported locating the pedestrian bridge as close to the ground as possible and urged that the proposed height of 5 m not be increased.
The proposed uses on 7th Avenue were supported by the Panel. It was agreed they should be campus related services but these can be quite broad given the diversity of programs in the college.
Stepping back the library was supported by the Panel with some concern remaining about its potential shadow impact on 7th Avenue. Further fine-tuning was also recommended to improve shadow impact from the taller office component.
The proposed setbacks adjacent to the neighbouring residential area were supported, as was the height of the massing on the Glen Drive frontage. It was stressed, however, that there is still a need to define the edge of the park, so this edge should not be softened too much.
The Panel fully supported the accessible green roof areas as an extension of the park.
With respect to view preservation, it was recognized that future development of lands to the north will have as much impact on views as this development. Preservation of the view corridor on these sites will also need to be taken into account by the City.
With respect to sustainability, the Panel suggested this educational facility should try to be a model for sustainable design."
Letter from VCC - Employment and Skills Training Initiative:
Applicant's Comments:
![]()
APPENDIX D
Applicant's Reduced Drawings
APPENDIX D
APPENDIX D
APPENDIX D
APPENDIX E
APPLICANT, PROPERTY, AND DEVELOPMENT PROPOSAL INFORMATION
SITE STATISTICS
DEVELOPMENT STATISTICS
* * * *