Vancouver City Council |
CITY OF VANCOUVER
POLICY REPORT
URBAN STRUCTURE
Date:
June 7, 2004
Author:
P. Mondor/
J. BarrettPhone No.:
604-873-7727/
604-873-7449RTS No.:
04262
CC File No.:
2608
Meeting Date:
July 8, 2004
TO:
Standing Committee of Council on Planning and Environment
FROM:
Director of Current Planning
SUBJECT:
550 Pacific Street, Development Application DE408264
RECOMMENDATION
A. THAT Council advise the Director of Planning that it is prepared to consider approval of a revised final form of development at 550 Pacific Street (Development Application DE408264) which includes an additional storey on the residential tower, subject to the application being referred to the Development Permit Board for decision after staff review is completed, and the application receiving Development Permit Board approval.
CONSIDERATION
As an alternative to A, the following is presented for Council CONSIDERATION:
B. THAT Council advise the Director of Planning that it is not prepared to consider approval of a revised final form of development at 550 Pacific Street (Development Application DE408264) which includes an additional storey on the residential tower.
GENERAL MANAGER'S COMMENTS
The General Manager of Community Services recommends approval of A but puts forward B for consideration as an alternative to A.
CITY MANAGER'S COMMENTS
The City Manager recommends approval of A but puts forward B for consideration as an alternative to A.
COUNCIL POLICY
· False Creek North Policy Statement, approved in August 1988.
· False Creek North Official Development Plan, adopted April 10, 1990 and last amended November, 2003. The Plan anticipates a 23-storey tower on this site, in Figure 12c Maximum Tower Heights).
· CD-1 By-law 366 (Beach Neighbourhood - East) adopted November 26, 1996, and last amended December 9, 2003. This by-law provides for a maximum building height of 110 m. This by-law was amended July 29, 2003, after Public Hearing of May 28 2003, among other things to transfer 7 432 m2 (80,000 sq.ft.) of residential density to Beach Neighbourhood from Area 6A (Coopers' Park Neighbourhood immediately east of Cambie Bridge).
· CD-1 By-law 399 (Beach Neighbourhood - West) adopted October 21, 1999, and rescinded into CD-1 By-law 366 on December 9, 2003. This by-law provided for a maximum building height of 97 m.
· Form of Development, approved in principle at the Public Hearing of April 29, 1999, for CD-1 rezoning of 600 Pacific Street (Area 1A, aka Beach Neighbourhood - West). Plans and schematic drawings which illustrate the form of development for this site show a 23-storey tower at a height of 68 m. (224 ft.). (See Appendix A)
· Beach Neighbourhood CD-1 Guidelines, adopted October 21, 1999. Guidelines are used to assist the design of individual developments to ensure compatibility with the overall urban design concept and principles for the Beach Neighbourhood and development on adjacent lands. Pertinent to this application, the Guidelines reiterated the False Creek North Official Development Plan's anticipation of a 23-storey building on this site. (See Appendix B)
· At the Public Hearing of May 28 2003, when Council considered housekeeping text amendments to the various CD-1 By-laws for the False Creek North neighbourhoods west of the Cambie Bridge and also a text amendment to transfer 80,000 sq. ft. of density from Area 6A (Coopers' Park Neighbourhood) to Areas 1A and 1B (Beach Neighbourhood), City Council approved the following in response to neighbours' concerns about potentially higher buildings:
"THAT all market buildings in the Beach Neighbourhood be built at or less than the height specified either in the approved neighbourhood guidelines (for unapproved buildings) or the approved development permits (for approved buildings); and
THAT if any extra height is proposed for any building, which particularly might happen for non-market housing sites, this be brought forward initially for Council consideration before staff review."BACKGROUND
Development Application History
The original application for this site, submitted in March 2002 (DE406577), sought approval for a 23-storey tower. (See map diagram of site and adjacent development in Appendix C)
The proposed height of 66.6 m (218.5 ft.) was well within the applicable regulations:
· the maximum of 91 m (300 ft.) specified in the CD-1 By-law for any tower in this location, and
· the maximum of 68 m (224 ft.) specified for this tower in the approved illustrative form of development for Area 1A (Beach Neighbourhood - West).The total number of storeys (23) proposed was also consistent with the Neighbourhood Guidelines, and the False Creek North Official Development Plan (Figure 12C Maximum Tower Heights), both of which anticipated a 23-storey tower on this site.
However there was not enough undeveloped floor area remaining in this part of the neighbourhood, as governed by the CD-1 By-law, to approve the project as proposed. The shortfall was approximately 557.4 m2 (6,000 sq. ft.).
On June 6, 2002, the Director of Planning approved the application, subject to a condition that the floor area be reduced to be within the floor area maximum specified in the by-law, and subject to Council approving the final form of development. The floor area was reduced by deleting one typical storey, and Council approved the form of development on June 11, 2002. A development permit for a 22-storey tower, 63.7 m (210 ft.) in height, was issued on February 5, 2003.
Recent By-law Amendments
At the Public Hearing of May 28, 2003, Council approved that the CD-1 By-laws for Area 1A and 1B of Beach Neighbourhood be combined into one and that the maximum residential floor area be increased by 7 432 m2 (80,000 sq. ft.) through a transfer from Area 6A (Coopers' Park Neighbourhood immediately east of Cambie Bridge).
Council also clarified its expectations regarding building height implications of this additional floor area, namely that market buildings would be built at or less than the height specified either in the approved neighbourhood guidelines (for unapproved buildings) or the approved development permits (for approved buildings).
New Development Application
On February 10, 2004 a new development application (DE408264) for 550 Pacific Street was submitted. It proposes the addition of one typical floor to the already-approved 22-storey tower, for a total of 23 storeys and a height of 66.6 m (218.5 ft.).
PURPOSE
This report recommends that City Council endorse consideration of an additional storey which is proposed in a development application submitted by Hancock Bruckner Eng & Wright, on behalf of Pacific Place Developments Corp., for a previously-approved 22-storey building at 550 Pacific Street, on the basis that the additional height will not be higher than the maximum height specified in the CD-1 By-law and in the illustrative form of development.
DISCUSSION
Introduction
The resolution adopted by City Council at the Public Hearing of May 28, 2003, in response to neighbours' concerns about potentially higher buildings, requires that any development application which seeks extra height be brought forward for Council consideration before staff review.
The development application DE408264 proposes a height consistent with the zoning and guidelines but is one storey greater than previously approved. For Council consideration is the basic proposition that an additional storey on the approved 22-storey building at 550 Pacific Street would appropriately reflect the overall Beach Neighbourhood development scheme as it was originally approved.
Context
Encompassing about five city blocks (15.4 ha of land and water), Beach Neighbourhood is intended to be a prime residential neighbourhood providing housing consistent with livability, environmental, and household and income mix City objectives, particularly for families with children. Development of this neighbourhood is intended to achieve a high quality of urban design and architecture. It is focussed around a formal urban park (George Wainborn Park), where a major feature will provide a focal point at the foot of Richards Street. Fourteen mid- high-rise buildings are anticipated, ranging in height from 10 storeys to 38 storeys, the tallest being a landmark structure, now completed and occupied which is sited on the axis of Pacific Boulevard at its intersection with Homer Street. The lower levels of buildings are to be configured to reinforce the shapes of streets and open spaces. Pedestrian and cycling linkages to Beach Avenue are to be provided. (See approved illustrative form of development and building heights in Appendix B.)
Over the last four years, Pacific Place Developments Corp. has obtained development permits for most of the buildings anticipated in Beach Neighbourhood. In so doing, the developer was able to cumulatively realize slightly more floor area within the approved overall development scheme than was anticipated. This was possible because buildings illustrated in overall development schemes are reflected in terms of building footprints and number of storeys and height, providing building "envelopes" offering some room for flexibility in detailed design development and thereby also provide some margin for varying the amount of floor area. Essentially, the permitted building envelopes allowed consumption of more floor area potential than initially anticipated.
Several factors in Beach Neighbourhood have specifically led to slightly more residential floor area being proposed and approved than was originally anticipated:
a) Topography - Being the first neighbourhood in False Creek North having such a substantial slope (an elevation change of 10.5 m (34.4 ft.) from Pacific Street to the water), has enabled an additional floor in some buildings, while remaining within the approved building envelopes and maximum building heights.
b) Safety and Security - Amendments to the Beach Neighbourhood Guidelines required the inclusion of more townhouses to provide more ground-oriented family housing, more streetwall massing and a more substantial base to some of the proposed towers so as to increase neighbourhood livability through more "eyes and ears on the street".
c) Design Refinement and Housing Demand - In response to consumer demand, adjustments were made to the mix of dwelling types and sizes, resulting in changes to floor lay-outs and some slight enlargement in some building footprints and floorplates. Also, reduction of some floor-to-floor heights has enabled an additional storey to be provided in some buildings, particularly the taller ones, while remaining within the maximum building heights.
d) Livability - The provision of larger outdoor balconies in some buildings, exceeding the 8 percent floor space ratio exclusion for open and enclosed balconies, has increased the total floor area.As a result, about 3 percent more residential floor area was approved and developed in the earlier phases than was anticipated, and an insufficient amount remained to complete the Beach Neighbourhood development as originally intended. Subsequently, an additional 7 432 m² (80,000 sq. ft.) of floor area was determined to be sufficient to complete the overall development scheme within the originally envisaged building envelopes, with no impact on views and shadowing, which are of principal concern to neighbours and also the general public, and also with no noticeable impact on services and amenities. Rezoning application was submitted for this purpose and at Public Hearing in May, 2003, Council approved the recommended density transfer from Area 6A.
Present Circumstance
The new development application submitted in February, 2004 proposes to add floor area of approximately 560 m2 (or 6,000 sq. ft.) to the already-approved 22-storey tower at 550 Pacific Street, by adding a typical floor for a total of 23 storeys as initially intended.
As described earlier, a floor area shortfall was the only reason that a 22-storey building was previously approved on this site rather than a 23-storey building. The 23-storey building proposed in the 2002 application was fully assessed by staff in terms of the approved overall form of development for Beach Neighbourhood, approved neighbourhood guidelines, and the usual urban design, livability, servicing and related considerations. This assessment included detailed review of view and shadowing impacts. Save for the overall floor area shortfall, the application was fully supported by staff and at Urban Design Panel review.
As a result of the transfer of density to Beach Neighbourhood from Area 6A approved in May, 2003, it is now possible for the Development Permit Board to consider the proposed tower floor area and height which was not possible to do in June, 2002. Staff have done an initial preliminary assessment of the urban design and livability implications of a 23-storey building as compared to a building of 22 storeys, and they are satisfied it reflects the overall form of development which was initially approved and in a way that responds to the neighbourhood guidelines and to City objectives for new development in False Creek North.Pending City Council advice on the application, staff have not undertaken the more comprehensive analysis regarding Parking By-law requirements, servicing implications, and related matters as would normally be completed prior to preparing a recommendation for the Development Permit Board.
NEIGHBOURHOOD NOTIFICATION
On March 8, 2004, Staff mailed a notice of the application to 427 property owners in the area, and Pacific Place Developments Corp. mailed 491 copies of the same notice to pre-purchasers in the Beach Neighbourhood.
A public information meeting was held by City staff on April 29, 2004 to describe the application and the policy background. The applicant and eleven neighbours, many of whom were pre-purchasers in adjacent buildings, attended.
A total of twelve people responded in writing to the application, 9 opposed and 3 in support. In summary, neighbours and pre-purchasers are concerned about increased building height and density, and the impact of these on private views.
In summary, neighbours were concerned that:
· This sub-area in Beach Neighbourhood is already very dense, with one building (583 Beach Crescent) receiving a permit for additional height a few years ago. An additional storey would contribute to the "canyon" effect caused by tall towers in close proximity. Most felt the developer should accept a smaller building at this site in recognition of the bigger building permitted earlier.
· Pre-purchasers in the adjacent building to the east, particularly those who bought in the higher storeys, were sold "view units" by the developer, and views would be lost or reduced with the addition of one storey at this site.
· Neighbours believe that when Council approved a transfer of additional density to Beach Neighbourhood in May 2003, it was with the understanding that the density would not be used for increases in building heights.
Regarding these concerns, staff note that a representative of Pacific Place Developments Corp. at the April public information meeting advised that it always intended to seek floor area to complete this project at 23 storeys, as envisioned in the zoning and guidelines.
Detailed comments and staff response are attached in Appendix D.
NEXT STEPS
If Council approves that the proposed additional storey be considered (RECOMMENDATION A), staff will complete their assessment of the application, and then prepare a recommendation to the Development Permit Board. If the Board approves the application, it will be reported to Council for approval of the revised form of development, prior to permit issuance.
If Council approves CONSIDERATION B, which is offered as an alternative to A, to not support consideration of the extra height which is proposed, it is anticipated the development application would be withdrawn, failing which it would be refused by the Director of Planning.
APPLICANT COMMENTS
The applicant has been given a copy of this report for review and comments as follows:
"Beach Neighbourhood West was rezoned in 1999 at which time the approved form of development for 550 Pacific Street was set at 23-stories and 68 m. With this application we are only seeking approval to build the form of development for 550 Pacific Street as originally intended. Regarding concerns expressed by some neighbours and pre-purchasers, we have always disclosed 550 Pacific Street as being a 23-storey (68m) building in height, and have included such information in our marketing and presentation materials and on our site display models. We have reviewed a copy of this report and agree with the contents and specifically the report's recommendations."
CONCLUSION
There is Council policy in Beach Neighbourhood that staff bring forward for Council advice any development application that seeks more height than previously approved. That is the case with development application DE408264 for 550 Pacific which proposes to add one storey to a previously-approved 22-storey building. This is within the zoning allowance and guideline specifications and a preliminary review suggests it will have little impact.
* * * * *
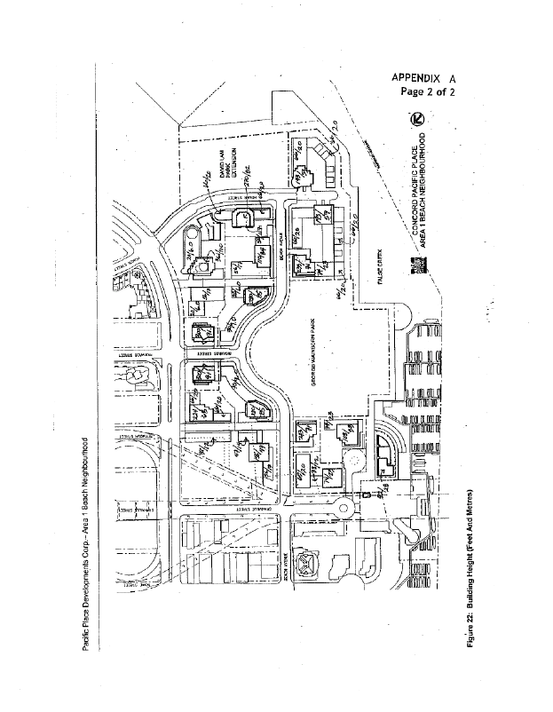
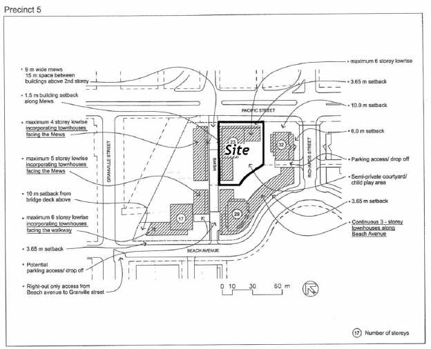
Illustrative Form of Development for Beach Neighbourhood
Excerpt 3-D illustration from plans posted at Public hearing of April 29, 1999 and approved
![]()
Illustrative Form of Development for Beach Neighbourhood
Excerpt Figure 22 showing "Building Height (Feet and Metres)"
Beach Neighbourhood CD-1 Guidelines (Adopted by Council October 21 1999 and amended May 28 2002)
Shown is the site at 550 Pacific Street in Precinct 5.
Figure 1
Site and significant adjacent development
(a) 400 Pacific Street (Tower 1A); 38-storey residential tower; nearing completion
(b) 1499 Homer Street (Tower 1B); 28-storey residential tower; DE405202 under construction
(c) 498 Pacific Street (Tower 1E); 33-storey residential tower; DP405201 issued
(d) 400 Beach Crescent (Towers 1G, H, J); 24- and 18-storey residential towers plus townhouses; DE40638 issued
(e) 501 Pacific Street (The >501=); 32 storey residential tower; occupied
(f) 1323 Homer Street (Pacific Pointe); 4, 17, and 28 storey residential towers; occupied
(g) 388 Drake Street (Governors Towers); 7 to 30 storey residential towers; occupied
(h) David Lam Park Extension
(i) 500 Pacific (Tower 1L); a 33-storey tower plus four townhouses; DP405861 issued
(j) 455 Beach Avenue (Tower 1D); DE405455, issued(k) 583 Beach Avenue (Tower 1M); DE 406178, issued
(l) 600 Beach Crescent (Tower N and O); DE 407194 issued
(m) building 1T (future non-market housing)
(n) 628 Kinghorne Mews (building P); DE 408001 approvedDETAILED SUMMARY OF NEIGHBOURHOOD NOTIFICATION AND STAFF RESPONSE
On March 8, 2004, Staff mailed a notice of the application to 427 property owners in the area, and Pacific Place Developments Corp. mailed 491 copies of the same notice to pre-purchasers in the Beach Neighbourhood. Staff hosted a public information meeting on April 29, 2004 to describe the new application and the policy background. The applicant and eleven neighbours, many of whom were pre-purchasers in adjacent buildings, attended.
A total of twelve people responded in writing to the application, 9 opposed and 3 in support.
Neighbours' written and verbal comments, and the staff response to these comments, are summarized below:1. Neighbours' Comment
Several respondents were present at the May 28, 2003 Public Hearing, at which the 80,000 sq. ft. of additional density (among other things) was approved. They felt they were assured at that Hearing that the additional density would not be used to add height to any buildings.
Staff Response
The Council resolution passed at the May 28, 2003 Public Hearing specifies the process by which staff are to consider applications proposing additional height beyond that which has already been approved, and that process is being followed.
Pacific Place Developments Corp. advised neighbours who attended the recent public information meeting on this application that it always intended to seek floor area to complete this project at 23 storeys, as envisioned in the zoning and guidelines.
2. Neighbours' Comment
The sub-area where this project is located is already among the densest in the Beach Neighbourhood, with one adjacent building already attaining 2 extra storeys in height. The applicant "used up" its density on that building, and should accept a lower building at this site. The 80,000 sq. ft. of extra density should be used in other parts of the site.Staff Comment
Building 1M (583 Beach) adjacent to this site did attain extra height and storeys following approval by the Director of Planning and by Council for the final form of development, without any condition that other buildings in the area be reduced in size.
This application seeks to use approximately 6,000 of the 80,000 sq. ft. of additional density. The remainder will be applied, where appropriate, to the remaining, yet to be permitted, non-market and market sites.
3. Neighbours' Comment
The close proximity of towers already produces a "canyon" effect, which an additional storey would only intensify.Staff Response
The distance between the two closest towers in this sub-area is approximately 76 ft., whereas an 80 ft. or greater separation is more typically sought. The DPB found the 76 ft. separation acceptable when it approved the earlier application for this site (22 storeys).
4. Neighbours' Comment
Will the applicant be seeking higher buildings on its remaining market sites?
Staff Comment
There are 2 market sites in the Beach Neighbourhood that do not yet have development permits. Site 1P has received Board approval and a permit is expected to be issued shortly. The plans for this building are consistent with the zoning and guidelines. No application has been received for Site 1K, but one is expected shortly. Should the height of this project exceed that anticipated in the CD-1 zoning, staff will, prior to its review of the application, seek Council's consideration as is the case with this current application.The Pacific Place Developments Corp. representative at the public information meeting advised that the preliminary plans for the 1K site are in conformance to the zoning and guidelines. (Staff note that preliminary discussions with the applicant indicate that the application will be within the CD-1 height of 53 meters, but will increase the number of storeys described in the Guidelines, from 16 to 18.).
5. Neighbours' Comment
It seems like the developer continues to push for more and more density and height. What is the public benefit?Staff Response
Any request for additional density and height beyond that specified in the CD-1 zoning must be approved by Council at Public Hearing. At such time, Council may seek a community amenity contribution or related public benefit, such as seawall construction, park space, non-market housing contributions, or daycare centre. In the present case, the additional height and density are available within existing zoning provisions, with no rezoning required.
6. Neighbours' Comment
The visual aspects of this project, at 23 storeys, are less appealing than at 22 storeys, and the City should require more "stepping" at the upper floors of the building. This would also improve views. The early plans for this building, as indicated in the Official Development Plan (ODP) and Beach Neighbourhood Guidelines, show considerable stepping at the southeast corner, which does not appear to have been achieved.Staff Response
The ODP and Guidelines are a very preliminary plan to indicate general massing and location of buildings. It is only at the development application stage that a specific building design emerges. Staff have not yet reviewed this application, but would consider the suggestion of requiring additional stepping of the one-storey addition if the application continues to the Development Permit Board.
The Pacific Place Developments Corp. representative at the public meeting indicated a willingness to review whether some reduction in height at the upper floors could be achieved.
7. Neighbours' Comment
The population density of the neighbourhood is reaching saturation point and ever-higher buildings continue to block views. No more density should be added.Staff Comment
The proposal does not seek additional density beyond that already approved by Council. Adding additional density beyond that already provided in the CD-1 would require a Council-approved text amendment, which is not being sought in this case.
8. Neighbours' Comment
Several respondents commented that they had paid "view price" for their units, having understood that this project was to be built at 22 storeys. Their view would be lost with this additional storey.Staff Response
Those who purchased prior to February, 2003, might have expected a 23 storey tower at this location, as that is what was portrayed in the ODP, the Guidelines, and allowed in the CD-1 for this site. Further, the applicant initially submitted an application for a 23 storey tower, and only reduced the proposal by one storey just prior to permit issuance in February, 2003.
Those who purchased after February 2003 might have expected the building to be built according to the 22-storeys approved by permit. Staff understand that Pacific Place Developments Corp. provides information in its disclosure statements about potential changes in building heights.
9. Neighbours' Comment
Those in support of the application felt the increased storey and resulting people would add vibrancy to the neighbourhood.