POLICY REPORT
URBAN STRUCTURE
Date: March 09, 2001
Author/Local: P.MONDOR/7727
M.KEMBLE/7702
RTS No. 01846
CC File No. 5303 P&E: March 15, 2001
TO: |
Standing Committee on Planning and Environment |
FROM: |
Director of Current Planning, in consultation with the General Manager of Engineering Services and the Director of Social Planning |
SUBJECT: |
201 Burrard Street (Burrard Landing): Text Amendment for CD-1 By-law No. 7679 |
RECOMMENDATION
A. THAT the application by Baker McGarva Hart Architecture, on behalf of Marathon Developments Inc., to amend CD-1 By-law No. 7679 (# 363) for 201 Burrard Street (Burrard Landing) to allow in Sub-Area 1, (a) increases in the height of two buildings, and (b) Hotel and Live/Work uses, be referred to Public Hearing together with:
(i) revised plans received February 15, 2001;
(ii) draft amendments to CD-1 By-law No. 7679 generally as presented in Appendix A;
(iii) the recommendation of the Director of Current Planning to approve the application, including a reduction in requested maximum building height for the proposed hotel on development parcel 2A, and subject to approval of Recommendation B; and
(iv) draft amendments to the CD-1 Guidelines (Burrard Landing) generally as presented in Appendix C.
AND FURTHER THAT the Director of Legal Services be instructed to prepare the necessary By-law for consideration at the Public Hearing.
B. THAT, the Director of Current Planning be instructed to make application to amend the Coal Harbour Official Development Plan, By-law No. 6754, and that the application be referred to Public Hearing together with draft amendments generally as presented in Appendix D.
GENERAL MANAGER'S COMMENTS
The General Manager of Community Services RECOMMENDS approval of the foregoing.
COUNCIL POLICY
Relevant Council Policies for the site are:
· Coal Harbour Policy Statement approved in June 1990
· Coal Harbour Official Development Plan (CH ODP) approved in November 1990
· Burrard Landing CD-1 (363) By-law No. 7679, Guidelines and Form of Development approved in November 1996
· Central Area Plan approved on December 3, 1991
· General Policy for Higher Buildings approved in May 1997
· View Protection Guidelines, approved in December 1989 and last amended in 1990
· Recommendations of the Bus Impact Task Force approved on July 11, 2000
PURPOSE AND SUMMARY
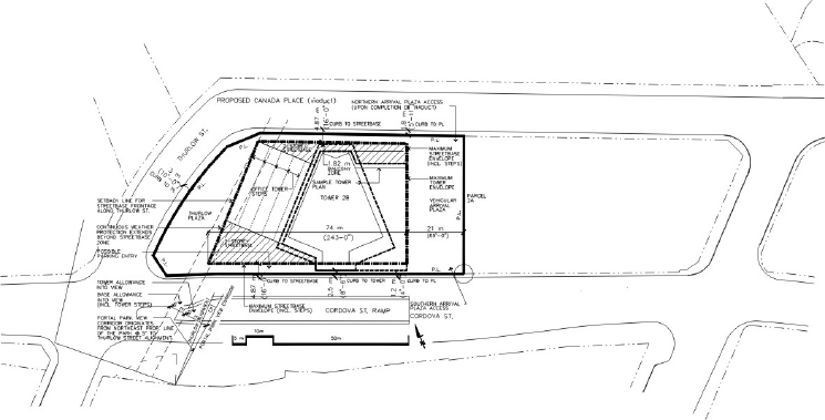
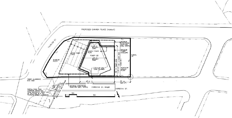
This report assesses an application for amendments to CD-1 By-law No. 7679 (# 363) as it applies to Sub-Area 1 of Burrard Landing (see Figures 1 and 2 on page 4, and also page 1 of Appendix E). Related changes to the Coal Harbour Official Development Plan and the Burrard Landing CD-1 Guidelines would be required as a consequence. The application requests the following principal changes:
- adjusting the boundaries of the development parcels by shifting the north property line of Parcels 2A and 2B to follow the south side of a future extension of the Canada Place viaduct from Burrard Street to Thurlow Street; ( Note: Change in this aspect of the form development will require subdivision -- the existing Lots 29 and 30 would become narrower Lots 1 and 2, and existing Lot 28 would become a larger Lot 3.)
- allowing Hotel use on Parcel 2A and Live/Work on Parcel 2B, in addition to the Office use now permitted, within the overall maximum floor area permitted; and
- increasing the maximum height - from 115 m (375 feet) to 136.5 m (446 feet) for a proposed Hotel tower on Parcel 2A, and 92 m (302 feet) to 137 m (450 feet) for a proposed Office and Live/Work tower on Parcel 2B.
The applicant intends to phase the development, with the Office and Live/Work tower proceeding immediately, and the proposed Hotel tower ( and also a future Canada Place viaduct extension ) proceeding only when a Trade and Convention Centre (TCC) is funded and approved in Sub-Area 2 and the balance of Sub-Area 1 (Parcel 2C). (Note: Further text amendments to the CD-1 By-law would be required to permit this use, change the configuration of sub-area boundaries, and possibly the maximum floor area.)
Staff support the proposed amendments and recommend that the application be referred to a Public Hearing, but with a recommendation that the height of the Hotel tower on Parcel 2B be approved with a somewhat lower height than requested. This would allow the Hotel tower to increase in height from 115 m (377 feet) to 123 m (403 feet) (excluding rooftop mechanical elements) without the building and its mechanical penthouse encroaching into the Cambie/12th and Cambie/10th view cones.
BACKGROUND
Burrard Landing, which was rezoned in 1996, is a 17-ha (42-acre) site containing four sub-areas, a street and shoreline walkway system, an Arts Complex site and facility, a waterfront park and two major public open spaces. ( See Figures on the following pages. )
- Sub-Area 1, the largest development precinct, was approved for office use, with associated retail/service uses to animate street edges and provide pedestrian interest at grade (143 165 m2 or 1.54 million sq. ft. total floor area). This precinct contains three development parcels, with a commercial plaza as a central focus.
- Sub-Area 2, the development precinct to the north, is intended for hotel use and a waterfront walkway lined with restaurants, shops and marine-oriented retail (41 905 m2 or 0.45 million sq. ft. total floor area).
- Sub-Area 3 includes the eastern and largest portion of Harbour Green Park, an Arts Complex and civic plaza.
- Sub-Area 4 includes a charter boat marina, boat moorage, a public ferry dock, seaplane terminal, ancillary offices and some floating commercial uses.
No development permits have been approved to date in Burrard Landing. The shoreline works are now under construction and completion of Harbour Park Green is expected in 2002. Discussions and planning have been underway for over a year regarding a site for an expansion of the Vancouver Convention and Exhibition Centre on Sub-Area 2 and the northerly part of Sub-Area 1 (Parcel 2C).
Figure 1.
Approved
Sub-Area 1
Development
Parcels
(CD-1 # 363)
Figure 2.
Proposed
Change to
Sub-Area 1
Parcel
Boundaries
Figure 3.
Approved
Burrard Landing
Form of
Development
(CD-1 # 363)
Note: Shoreline configuration of approved form of development is not exactly as shown.
Figure 4.
Proposed
Burrard Landing
Form of
Development
Note: Illustration shows Trade and Convention Centre proposal still under discussion for Sub-Area 2 and balance of Sub-Area 1.
On November 21, 2000, Council considered a report (dated November 3, 2000) on this proposed rezoning, "Burrard Landing - Major Planning Issues", and unanimously approved the following:
A. THAT Council is prepared to consider the substitution of hotel and new live/work uses for commercial office use in Burrard Landing sub-area 1, within the overall maximum density now permitted, subject to submission of an office supply impacts study and support by Downtown business interest groups, for report back as part of the rezoning referral report.
B. THAT Council is prepared to consider an increase in the maximum building height for Burrard Landing sub-area 1, up to 137 m ( 450 ft. ), subject to submission of a comprehensive view study and other urban design analysis, for report back as part of the rezoning referral report.
C. THAT Council is prepared to consider changes in the form of development for the portion of the adjusted sub-area 1 in Burrard Landing between Cordova and the extension of Canada Place Way, Burrard to Thurlow Streets, for report back as part of the rezoning referral report, based on the following objectives related to the lower level building massing:
- preserving northerly views from Portal Park consistent with currently approved guidelines;
- providing generous sidewalk widths and routings comprising both public and private property that allow for ample street trees planting space and spacious pedestrian passage; and
- maximizing pedestrian interest and active uses along all public streets and approach routes to the waterfront.
DISCUSSION
Overview of Proposal: The application requests many specific changes to the CD-1 By-law and Guidelines for two of three development parcels in Sub-Area 1 of Burrard Landing. In summary:
- pursuant to subdivision, development parcels 2A and 2B would be made narrower in anticipation of a future Canada Place viaduct extension westward from Burrard Street to Thurlow Street across the southern portion of Parcel 2C;
- Hotel use is proposed to replace Office use on Parcel 2A and the amount of floor area on this development parcel increased by about fifty percent through a corresponding reduction in allowed floor area on Parcel 2C to the north;
- Live/Work use is proposed to replace about half of the Office use allowed on Parcel 2B; and
- the floor plates of the towers would be reduced and the maximum building heights increased by 21 m (69 feet) for the tower on Parcel 2A, and 45 m (148 feet) for the tower on Parcel 2B.
These changes would alter the form of development generally as shown in Figures 3 and 4 on page 5. (See Appendix G for detailed plans and Appendix H for development statistics.)
Overview of Staff Assessment: With two exceptions discussed in the following pages, the application meets all criteria considered in the assessment of this application. The proposed changes in land use, from Office to Hotel and Live/Work, are consistent with the Central Area Plan and its concern to reduce commuting to downtown jobs. Staff further observe that, given the low office demand in the downtown which does not suggest there will be proposals for major office towers, an early start on a mixed-use office/hotel development on this site would benefit public access to the waterfront walkway and Harbour Green Park.
The proposed changes to the form of development, including reduced floorplates and slimmer and taller towers, are generally consistent with the Coal Harbour ODP, the CD-1 Guidelines and Urban Design Panel advice, and they will have considerable public benefits, including:
- more usable public open space close to the water's edge;
- improved private views;
- reduced massing and shadowing close to the waterfront;
- an improved built form relationship with existing buildings in the downtown; and
- improvements to the downtown skyline.
However, the application raises an issue with respect to the View Protection Guidelines which seek to preserve longer range city and mountain views from the south. An important objective of the 1996 development proposal approved for Burrard Landing was to maximize views to the mountains and waterfront from the adjacent downtown. The changes to the form of development proposed in this application generally achieve this but the proposed height of the hotel tower does not meet the View Protection Guidelines. View encroachments, in the Queen Elizabeth Park view shed and the Cambie/12th and Cambie/10th view cones, had not yet been identified and thus not discussed at the Issues Report stage in November 2000.
A second issue which has emerged during the assessment of this application is the accommodation of tour buses for the proposed 800-room hotel on Parcel 2A for loading and unloading passengers and luggage.
Building Height and Views: Several detailed views issues emerged in the assessment of this application which were not specifically identified in the Issues Report. Except for the consistency with the Queen Elizabeth Park view shed and the Cambie/12th and Cambie/10th view cones, these have since been satisfactorily resolved. (These are described in Appendix E.)
The Queen Elizabeth Park view cone is considered more of a view shed where on rare occasions some taller buildings have been seen to enhance the downtown profile. Council has recently approved both the Wall Centre Tower at 137 m (450 feet) and the previous hotel tower proposed on the Port Lands waterfront site east of Canada Place at 115 m (377 feet). In the case of the proposed towers on the Burrard Landing site, because the additional height will not intrude above the mountain skyline, but will enhance the overall shape of the downtown skyline from this location, this view cone intrusion is supported by staff.
However, the height of the proposed Hotel tower on Parcel 2A and its encroachment into the Cambie Street view cones is an outstanding issue. The current maximum building height in Sub-Area 1 is 92 m (302 feet) but with relaxation being possible to 115 m (377 feet) for the tower on Parcel 2A. (Relaxation of maximum building height, to 101 m (331 feet), is also possible for the tower on Parcel 2C.)
The application proposes an increase in the maximum building height ( measured to the top of roof slab ) for Tower 2A to 135 m (444 feet) and Tower 2B to 137 m (450 feet). Staff support the proposed height for the Office-Live/Work tower on Parcel 2B, but support only a limited height increase, from 115 m (377 ft.) to 130.5 m (428 ft.), for the Hotel tower.
The Hotel tower, which is proposed to be 143.9 m (472 feet) to the top of the rooftop mechanical elements to which view intrusion is measured, will encroach above the maximum height specified for buildings in the Cambie/12th and Cambie/10th view cones in the amount of 13.4 m (44 feet) and 10.1 m (33 feet) respectively. (See photo illustrations on pages 13 and 14 of Appendix E) [Note: The maximum building height calculated for view protection includes all appurtenances such as mechanical/elevator penthouses, decorative roofs and aerials. Building height for by-law purposes is otherwise calculated to the roof parapet of the uppermost occupied space, which in this case is 136.4 m (447.5 feet).] The intruding portion of the tower would be situated in the westerly portion of the view in front of Mount Capilano, which is framed by a visually compelling lower valley in the North Shore mountain backdrop. The intrusion would not obscure the mountain peak or intrude into the main easterly Crown/ Grouse Mountain part of the view corridor. Staff are also concerned that approval of its height may set a precedent for other potential development sites in the view cones.
The applicant claims that the proposed 800-room size of the Hotel must be maintained to ensure a viable major five-star hotel serving the convention centre, and further, that it requires a tower form of development generally as proposed. The applicant maintains that to comply with a lower height would be a hardship and could threaten the viability of the proposal because of increased costs and programming inefficiencies. Staff are also concerned that if massing is redistributed to lower the proposed 46-storey tower by bulking up lower levels, view benefits of the proposed slim tower both to and from the Marine Building would be reduced. Potential massing changes could also result in a bulkier tower with less stepping and articulation than is presently proposed at the top of the tower. However, staff feel that there are viable alternatives balancing a variety of factors to achieve density and unit count without intruding into the view cones.
Three options for maximum tower heights for the Hotel on Parcel 2A ( assuming the 800-room programme is maintained), are outlined for consideration at the public hearing, as follows:
1. Full compliance with view height limits (to top of rooftop mechanical/elevator appurtenances) by lowering the tower by 4 storeys or 13.4 m ( 44 feet ) to 42 storeys - this will likely include the filling in of the tower's proposed stepped top massing and adding a small addition to the tower base above the podium level, or generally increasing the floorplate size, recognising that this will increase the bulkiness of the tower; or
2. Partial compliance with height limits from both viewpoints (to rooftop parapet, excluding rooftop appurtenances from height limit) by lowering the tower by 2 storeys or 4.9 m ( 16 feet ) to 44 storeys - this will likely include partial filling in of the tower's stepped shoulders, thus partially increasing the sense of bulkiness of the tower; or
3. Full relaxation of tower height to 46 storeys, with the stepped massing articulation and slimness of the upper portion of the tower maximized, as proposed by the applicant.
It is long-standing policy that staff do not recommend intrusions into the major view corridors (except for the Queen Elizabeth Park perspective). Moreover, staff cannot discern a public purpose to be served by encroaching on the view corridors as compliance is technically possible. Accordingly, staff recommend that the Hotel tower be brought into full compliance with the view cone. The relaxation options are presented for Council consideration without staff support.
Should Council be prepared to approve the height as proposed, staff recommend that it be on the basis of the proposed Hotel tower's role as a landmark building for the waterfront area, and not be seen as a precedent for height increases on other sites within this view cone.
Lower Level Building Massing and Public Realm Treatment: The desire to enhance the pedestrian street environment over that provided in recent developments to the east of Burrard Street, where narrow sidewalks, blank frontages, and treeless public realm areas have produced an unattractive streetscape, has resulted in improvements to this application. Further design development is recommended to the treatment of the Thurlow Street Plaza, mid-block arrival plaza and other areas to ensure a handsome public realm. These are addressed in the attached Appendix B approval conditions.
Vehicular Access: Changes to the road network which were approved in the initial rezoning of Burrard Landing are not proposed in this application. If a TCC does proceed on Sub-Area 2 and balance of Sub-Area 1 (Parcel 2C) it is contemplated that the Canada Place viaduct would be extended westward along the north property line of Parcels 2A and 2B, with corresponding changes to the service road below viaduct level.
The Office and Live/Work tower on Parcel 2B is proposed to have at-grade access from Cordova Street, and underground parking access from the Cordova Ramp below Thurlow Street and also from the existing Waterfront Road. The Hotel tower on Parcel 2A is proposed to have at-grade access from both Cordova Street and the future Canada Place viaduct extension, and underground parking access from the existing Waterfront Road which would remain below the future viaduct above.
According to the servicing agreements in place, when development proceeds on Parcel 2B, Cordova Street would be extended westward to Thurlow Street and a ramp provided from Cordova Street to Waterfront Road. (Note: West of Howe Street this service road is owned by the property owner of Burrard Landing.) Waterfront Road would generally remain as is, except for alterations to adjust access to and from the existing Canada Place ramp west of Burrard Street.
Based on the foregoing, vehicular access can be provided now for the Office and Live/Work tower on Parcel 2B but not for the Hotel tower on Parcel 2A and not for any development on Parcel 2C. A `no development covenant' is currently registered against Parcels 2A and 2C and development permits on these sites will not be issued until proper vehicular access arrangements are in place. (Note: As a condition of the initial rezoning, development permits will not be issued until the applicant registers an agreement with the city which obligates the owner to provide parking for the Arts Complex on these sites. This agreement, like the other agreements on title, will remain on title after this rezoning.)
Bus Parking and Loading: The revised plans submitted by the applicant show that bus loading, unloading and storage for the proposed Hotel on Parcel 2A will take place in lay-bys on both Cordova Street and the lower service road. (Appendix E provides a detailed discussion of this issue) This solution does not meet the requirements for hotels as specified by the Parking By-law because loading and unloading of buses is required to cross public realm. Furthermore, it does not agree with the Council-approved recommendations of the Bus Impact Task Force which instruct staff to ensure that hotels have adequate parking, stopping, loading and unloading provisions for buses.
Various options have been developed and these have pros and cons for the applicant's operational considerations and for the City's public concerns. Prior to Public Hearing staff will continue discussions with the applicant to resolve this issue. To this end, staff recommend a rezoning approval condition that bus parking be provided to the satisfaction of the General Manager of Engineering Services and the Director of Current Planning.
Office to Live/Work and Hotel: The application seeks to substitute hotel and new live/work space for some of the office commercial space currently permitted in sub-area 1 (see details in Appendix E). Staff are supportive of this as conversions from office use to hotel have been seen as reinforcing of the tourism and business function of the Central Business District (CBD). Conversion to live/work use, while admittedly intruding residential into the CBD, would not actually foreclose commercial office opportunities but could likely spur absorption of other office space nearby. A consultant's office supply impact study submitted by the applicant, as called for in the Central Area Plan and in the Issues Report, concludes that the conversion would have minor impact on office supply capacity in the CBD.
Residual Density and Resolution of the Remainder of Burrard Landing: If the application is approved, the maximum amount of Office floor area allowed on Parcel 2C would be reduced to 22 688 m² (244,228 sq. ft.). In the Issues Report, several options were identified to deal with this residual density should a TCC be developed on Parcel 2C (the balance of Sub-Area 1) and Sub-Area 2, and it was proposed that one of these options be selected and tied down before approval of this application.
It is long-standing practice in Coal Harbour rezonings that a new building grade should be established between the escarpment and the shoreline and that floorspace developed below this new grade be excluded from FSR calculations. Such space which has been developed so far has been for parking and other typically FSR-excluded space. In the case of the previous TCC proposals, in order to have as much of a TCC's considerable bulk below grade as possible, and to support a project whose considerable economic benefit is in the public interest, staff have indicated to the property owner and TCC proponents that we would be prepared to recommend to City Council that all below-grade floor area be excluded from FSR calculation or floor area maximums. Because approval, or not, of such a recommendation would have a significant bearingon the maximum floor area provisions of CD-1 zoning for a TCC, it will also have a direct impact on the amount of residual floor area which will actually remain on Parcel 2C.
Until a decision is made by development proponents to proceed with one or the other of the two quite different and complex futures for Sub-Area 2 and the balance of Sub-Area 1 (Parcel 2C), staff are unable to identify the most suitable option for handling residual density and believe that it will be more easily identified when the details of the TCC are confirmed through a rezoning. Accordingly, because there may be more or less density which could be used on that site, risk rests with the developer about how that residual will be addressed when the matter is dealt with in a rezoning for the TCC. Staff will continue to work with the property owner and TCC proponents to ensure an appropriate resolution of this and related issues.
Impacts on City Tax Revenues and Development Value from Rezoning Proposal: When Council considered the Issues Report, questions were raised about the property tax implications of the proposed rezoning. Staff do not normally review the tax impacts of rezoning as it is the urban design, land use, transportation and related matters which take precedence. However, staff can report that the Live/Work component of the proposed development could be classed by the BC Assessment Authority (BCAA) as Commercial, Residential or a blend of both, but BCAA won't come to a definitive conclusion for some time until this use is before them, because this is a new use. It is notable that artist live/work studios were classed as Residential and this may or may not be a precedent for how commercial live/work will be classed.
When Council considered the Issues Report, questions also were raised about the potential change in land value from the proposed changes to use and maximum height on Parcels 2A and 2B. Staff do review the change in development value which might result from rezonings, and recommend to Council a Community Amenity Contribution (CAC) from the property owner commensurate with the findings of pro forma analysis, according to the Interim City-Wide Community Amenity Contribution Policy adopted in January, 1999. There is a Public Benefit Strategy in place for this purpose for several areas and precincts in the Central Area, including the Coal Harbour ODP where a CAC was obtained for Burrard Landing in its initial rezoning. Real Estate Services staff have reviewed an appraiser's analysis and concluded that supernormal profits are unlikely and that if Council wished to know the actual financial gain then a quantitative analysis to measure the marginal revenue gains and costs is needed.
Form of Development Approval: The applicant intends to phase the development, with the Office and Live/Work tower proceeding immediately, and the 800-room Hotel tower proposed in this application proceeding only if and when a TCC will be developed in Sub-Area 2 and the balance of Sub-Area 1 (Parcel 2C). Accordingly the applicant has requested that approval in principle at Public Hearing of the proposed form of development be limited to the Office and Live/Work tower on Parcel 2B and that development on Parcel 2A proceed on the basis of the revised Burrard Landing CD-1 design guidelines.
Staff acknowledge the uncertainty surrounding proposed hotel development. Consistent with the initial rezoning of Burrard Landing, staff recommend that Council approve an illustrative form of development for the proposed Hotel tower on Parcel 2A.
COAL HARBOUR ODP AMENDMENTS: Staff recommend a number of amendments to the Coal Harbour ODP to reflect the proposed revisions in land use, subdivision pattern, and maximum building height on Sub-Area 1. As set out in Appendix D and Recommendation B, it is recommended that the Director of Current Planning be instructed to make application for this purpose and that the application be referred to the same Public Hearing as the rezoning application for Lots 29 and 30.
CONCLUSION
Staff support most of the applicant's proposed amendments to the CD-1 By-law and the associated changes to the Guidelines and form of development because:
- the uses are compatible with the Central Area Plan and are supportive of a major tourism role for this portion of the Burrard waterfront;
- the proposed development would improve the public open space, reduce massing impacts on private views, and achieve a better form relationship with the adjacent downtown; and
- the higher, slimmer towers would improve the downtown skyline.
Staff do not support the extent of tower height for the proposed Hotel on Parcel 2A, and are continuing to look at alternatives for Hotel bus parking.
Staff recommend that the application be referred to a Public Hearing, together with the draft CD-1 By-law amendments generally as shown in Appendix A, the draft CD-1 Guideline amendments generally as shown in Appendix C, and with a recommendation from the Director of Current Planning that it be approved, subject to the proposed conditions of approval listed in Appendix B.
* * * * *
DRAFT CD-1 BY-LAW AMENDMENTS
Amend By-law No. 7232, generally in accordance with the amendments noted below. Note: all additions are in bold and italics and deletions are in (brackets and strikeout):
2 Intent
The intent of this By-law is permit the development of the district with office, live/work and hotel uses, some retail, service and marina uses and a major cultural and recreational facility in a form which complements, and is compatible with, the character of adjacent areas.
3 Definitions
In this By-law, definitions contained in the Zoning and Development By-law shall apply except that:
Base Surface shall be calculated from the building grades on the upper level roads; for the development on sub-area 1, Base Surface shall be a plane which extends outward to the harbour headline from building grades on West Cordova Street at the inland corners; on sub-area 2, Base Surface shall be a horizontal plane which extends outward to the harbour headline from building grades on the upper level road at the inland corners; and for the marina development, Base Surface shall be calculated from the adjacent grade of the floating access docks; and Live/Work Unit means a self-contained residential unit and an office which is associated with and forms an integral part of the residential unit.
4 Uses
The area shown included within the heavy black outline on Schedule "A" shall be more particularly described as CD-1 (363), and the only uses permitted within the outlined areas, subject to such conditions as Council may by resolution prescribe, and the only uses for which development permits will be issued are
(a) Cultural and Recreational Uses, including a Marina having a maximum of 100 berths.
(b) Dwelling Uses in conjunction with Office Use,
(c) Institutional Uses, but not including a Detoxification Centre ( and ) or Special Needs Residential Facility.
(d) Marine Terminal or Berth,
(e) Office Uses, but not including Financial Institution, Health Care Office, or Health Enhancement Centre,
(f) Parking Uses
(g) Public Utility
(h) Retail Uses, but not including Gasoline Station - Full Serve, Gasoline Station - Split Island, and Vehicle Dealer,
(i) Service Uses, but not including Animal Clinic, Auction Hall, Bed and Breakfast Accommodation, Body-rub Parlour, Drive-through Service, Funeral Home, Laboratory, Laundry or Dry Cleaning Plant, Motor Vehicle Repair Shop, Motor Vehicle Wash, Photofinishing or Photography Laboratory, Repair Shop - Class A, and Sign Painting Shop,
(j) Accessory Uses Customarily Ancillary to the above uses,
(k) Interim Uses not listed above and Accessory Uses customarily ancillary thereto, provided that
(i) the Development Permit Board considers that the use will be compatible with and not adversely affect adjacent development that either exists or is permitted by this By-law,
(ii) the Development Permit Board is satisfied that the use can be easily removed and is of low intensity or low in capital investment,
(iii) the Development Permit Board is satisfied that there is no risk to the public from contaminated soils either on or adjacent to the subject site, and
(iv) development permits are limited in time to periods not exceeding three years.
5 Sub-Areas
The district shall comprise four sub-areas approximately illustrated in Diagram 1, and Sub-Area 1 shall comprise three development parcels also as illustrated.
Diagram 1

6. Floor Area and Density
6.1 The total floor area for the uses listed in Table 1 shall not exceed the totals set opposite for such uses, and any use permitted by section 4 but not listed in Table 1 is not limited by this subsection 6.1.
Table 1
Use |
Maximum Floor Area |
Office |
( |
Dwelling and Office (Live/Work) |
21 500 m2 |
Retail and Service, excluding Hotel |
9 500 m2 |
Hotel |
37 000 m2 |
Hotel or Office |
75 000 m2 |
Cultural and Recreational |
10 000 m2 |
Total |
196 000 m2 |
6.2 The following shall be included in the computation of floor space ratio:
(a) all floors having a minimum ceiling height of 1.2 m, both above and below ground level, to be measured to the extreme outer limits of the building.
6.3 The following shall be excluded in the computation of floor space ratio:
(a) cultural and recreational uses, including theatre, and accessory uses customarily ancillary thereto, including restaurant and gift shop, up to a maximum exclusion of 10 000 m² located on sub-area 3;
(b) cultural and recreational uses, including fitness centre, swimming pool and library, which provide opportunities for physical fitness, general recreation and a service to the public, and which are not operated for profit, up to a maximum exclusion of 2 790 m² for sub-area 1 and 930 m² for sub-area 2; or
(c) child day care facilities to a maximum floor area of 10 percent of the permitted floor area, provided that the Director of Planning, on the advice of the Director of Social Planning, is satisfied that there is a need for a day care facility in the immediate neighbourhood;
(d) where floors are used for off-street parking and loading, the taking on or discharging of passengers, bicycle storage, heating and mechanical equipment, or uses which in the opinion of the Director of Planning are similar to the foregoing, those floors or portions thereof so used which are at or below the base surface;
(e) amenity areas accessory to the principal uses for the social and recreational enjoyment of residents and employees located on sub-area 1, including facilities for general fitness and general recreation, provided that the total area being excluded in any development shall not exceed the lesser of 20 percent of the permitted floor area or 1 000 m2;
(f) open balconies and any other appurtenances which, in the opinion of the Director of Planning, are similar to the foregoing, provided that the total area of all exclusions does not exceed eight percent of the floor area being provided;
(g) roof decks, including open deck areas under building overhangs, provided that the Director of Planning first approves the design of deck areas and walls;
(h) residential storage space provided that where such space is located at or above the base surface, the maximum exclusion shall be 3.7 m2 per dwelling unit;
(i) where exterior walls greater than 152 mm in thickness have been recommended by a Building Envelope Professional as defined in the Building By-law, the area of the walls exceeding 152 mm, but to a maximum exclusion of 152 mm thickness (, except that this clause shall not apply to walls in existence prior to March 14, 2000 ).
6.4 The Director of Planning may permit ( interior public space, including atria and other similar spaces, ) the following to be excluded from the in the computation of floor space ratio: , provided that
(a) interior public space, including atria and other similar spaces, subject to the following:
(i) the excluded area shall not exceed the lesser of 10 percent of the permitted floor area or 600 m² for each major office or hotel development application located on sub-areas 1 and 2,
b (ii) the excluded area shall be secured by covenant and right-of-way in favour of the City of Vancouver which set out public access and use, and
c (iii) the Director of Planning first considers all applicable policies and guidelines adopted by Council;
(b) for dwelling use located in sub-area 1 enclosed balconies, provided that the Director of Planning first considers all applicable policies and guidelines adopted by Council and approves the design of any balcony enclosure, subject to the following:
(i) no more than fifty percent of the excluded balcony floor area may be enclosed; and
(ii) the total area of all open and enclosed balcony exclusions does not exceed eight percent of the residential floor area being provided.
6.5 The total floor area in each sub-area for the uses listed in Table 2 shall not exceed the applicable totals set opposite such uses, and any use permitted by section 4 but not listed in Table 2 is not limited by this subsection 6.5).
Table 2 - Maximum Floor Area (in square metres)
|
Use |
Sub-Areas (from Diagram 1) | |||
1 |
2 |
3 |
4 | |
Office |
( |
N/A |
N/A |
N/A |
Dwelling and Office (Live/work) |
21 500 |
N/A |
N/A |
N/A |
Retail and Service, excluding Hotel |
3 665 |
4 905 |
N/A |
930 |
Hotel |
37 000 |
N/A |
N/A | |
Hotel and Office |
75 000 |
|||
Cultural and Recreational |
10 000 |
|||
Total |
143 165 |
41 905 |
10 000 |
930 |
6.5 Notwithstanding sub-section 6.1 and 6.5, the Development Permit Board may permit the substitution of up to 5 percent of Dwelling and Office (Live/Work) floor area for Office floor area.
7. Height
7.1 The maximum building height measured above the base surface, but excluding the roof and mechanical penthouse ( and roof ), shall be as set out in Table 3.
Table 3 - Maximum Height (in metres)
Sub-Areas (from Diagram 1) | ||||
1 |
2 |
3 |
4 | |
Maximum Height |
92 |
65 |
33 |
8 |
7.2 The Development Permit Board, provided it first considers the applicable policies and guidelines adopted by Council ( by a Special Council Meeting held on September 15, 1994 ), relax the maximum height shown for Sub-Area 1 in section 7.1 to 137 m for the tower on development parcel 2B at the Thurlow/Cordova portion of the site, ( 115.0 ) 130 m for the tower on development parcel 2A at the Burrard/Cordova portion of the site, and 101.0 m for the tower on development parcel 2C at the Burrard/Thurlow portion of the site.
[Note: The applicant requests a maximum building height of 135.4 m for the tower on development parcel 2A. The amount shown here, 130 m, is the amount recommended by staff, corresponding to the maximum permitted on the basis of the View Protection Guidelines.]
8. Parking
Off-street parking shall be provided, developed and maintained in accordance with the applicable provisions of the Parking By-law, including Section 7 - Off-Street Passenger Space Regulations, except that:
(a) offices uses shall provide a minimum of 1 space for each 100 m2 of gross floor area and a maximum of 1 space for each 80 m2 of gross floor area ,
(b) dwelling uses shall provide 1 space for each live/work unit less than 100 m2 in floor area and 2 spaces for each live/work unit greater than 100 m2 in floor area,
(c) hotel uses shall provide parking in accordance with Section 4.3.2 of the Parking By-law, and
(d) Class A bicycle storage spaces shall be provided at 1 space for every 750 m2 of gross floor area of Office use and 1 space for every 750 m2 of gross floor area of Office and Dwelliing (Live/Work) use.
9. Acoustics
All development permit applications shall require evidence in the form of a report and recommendations prepared by a person trained in acoustics and current techniques of noise measurement, demonstrating that noise levels in hotel sleeping rooms, bedrooms of live/work units and any child day care facility shall not exceed 35 decibels, measured as the A-weighted 24-hour equivalent (Leq) sound level.
APPENDIX B
201 BURRARD STREET
PROPOSED CONDITIONS OF APPROVAL
NOTE: These are draft conditions which are subject to change and refinement by staff prior to the finalization of the agenda for the public hearing.
FORM OF
DEVELOP-
MENT (a) THAT the illustrative form of development for Parcel 2A prepared by Baker McGarva Hart Architecture and the proposed form of development for Parcel 2B prepared by James KM Cheng Architects, and stamped "Received, City Planning Department, February 15, 2001", be approved by Council in principle, provided that the Director of Planning, or Development Permit Board, may allow alterations to the form of development when approving the detailed scheme of development as outlined in (b) below. [Note: The form of development for the proposed hotel on Parcel 2A will be presented to Council for approval when the program requirements for the hotel are finalized by a property owner and submitted in a development applicaition.]
(b) THAT, prior to approval by Council of the form of development, the applicant shall obtain approval of a development application by the Director of Planning, or Development Permit Board, who shall have particular regard to the following:
DESIGN
DEVELOPMENT For development on Parcels 2Aand 2B:
(i) design development to the lower level massing of both towers, to better relate to one another and to break down the scale of high podium elements;
(ii) design development to the lower level facade treatments on both sites, to provide continuous weather protection for pedestrians, either by projecting canopies over the adjacent City sidewalks or by building overhangs, and to clarify the details of these amenity features;
(iii) design development to the massing and articulation of both towers, to refine and clarify the architectural treatments, and to maximize their sense of slimness particularly for the upper portions of the towers above the 90 m height level;
For Phase 1 development - Parcel 2B ( Office and Live/Work )
(iv) design development to the public open space area adjacent to Thurlow Street on Parcel 2B, to provide a high quality treatment with special paving, seating, lighting, trees and landscaping appropriate to its use and function;
(v) design development to the shared vehicular arrival plaza on Parcel 2B, to provide a high quality treatment appropriate to its use and function, and to provide an attractive overlook from neighbouring towers;
(vi) design development to the northerly interface of the building on Parcel 2B with the future Canada Place viaduct extension, to ensure that a comfortable and positive relationship with the street can exist should street grade levels be substantially lowered if the TCC proposal for Sub-Area 2 does not proceed in future;
For Phase 2 development - Parcel 2A ( Hotel )
(vii) design development to the architectural treatment of the Burrard Street facade of the proposed tower on Parcel 2A, to relate more strongly to the Marine Building character and scale, and its existing role as a landmark icon for the area;
(viii) design development to the architectural treatment and massing of the tower, to relocate massing removed from the top of the tower to an extension above the podium level along Cordova Street, in order to maximize the slimness of the tower top and reduce its bulkiness, and to meet view cone height restrictions;
(ix) design development to the ground level setbacks;
CPTED (x) design development to take into consideration the principles of CPTED (Crime Prevention Through Environmental Design) having particular regard to:
- keeping the under deck parking visibly open to Waterfront Road and the rail line to maximize surveillance while keeping the parking area secure with decorative grillwork and security measures such as overhead gating, separation of user groups, shuttle elevators for the parking,
- locating perimeter exit stairs within the building structure and ensure that alcoves will not be created on the street, and
- reducing opportunities for skateboarding and mischief in the public plazas;
TRANSPORTATION
(xi) Provide a complete Bus Management Plan, to the satisfaction of the General Manager of Engineering Services, to regulate operation, circulation, loading/unloading, parking and storage of tour buses serving Lot 1, as called for by the Vancouver City Council in its approval of the recommendations of the Bus Impact Task Force; and
PARKING (xii) Parking, loading, bicycle parking and off-street passenger spaces are to be provided according to the provisions of the Parking By-law, to the satisfaction of the Director of Planning.
DESIGN GUIDELINES
(c) THAT the proposed revised designed guidelines entitled "Burrard Landing (201 Burrard Street) CD-1 Guidelines" be adopted by resolution of Council at the time of enactment of the CD-1 By-law.
AGREEMENTS
(d) THAT, prior to enactment of the CD-1 By-law, the registered owner shall, at no cost to the City:
CHARGE
SUMMARY (i) Make suitable arrangements to the satisfaction of the General Manager of Engineering Services and the Director of Legal Services for clarification of charges shown on title (a charge summary should be provided) and, if necessary, for the modification, release, extension or replacement of such charges, on terms acceptable to the Director of Legal Services.
SUBDIVISION
PLAN (ii) Subdivide existing Lots 28, 29 and 30 to create Lots 1, 2 and 3 consistent with the reconfiguration of development parcels 2A, 2B and 2C. (NOTE: THIS SUBDIVISION WILL OCCUR BEFORE REZONING IS ENACTED, SO THE AGREEMENTS WILL APPLY TO THE NEW LOTS.)
NO-DEVELOPMENT
COVENANT FOR PARCELS
2A AND 2C (iii) Execute an agreement, on terms acceptable to the Director of Legal Services, that prohibits the development of Parcel 2A (proposed Lot 1) and Parcel 2C (proposed Lot 3) until such time as (1) access to both parcels has been resolved to the satisfaction of the General Manager of Engineering Services, and (2) any rights of way that may be required, to the satisfaction of the General Manager of Engineering Services, are secured on terms acceptable to the Director of Legal Services.
ACCESS TO
PARCEL 2B (iv) Execute an agreement, on terms acceptable to the Director of Legal Services, to secure access to the service level parking and loading facilities located on Parcel 2B (proposed Lot 2) to the satisfaction of the General Manager of Engineering Services.
SERVICES
AGREEMENT (v) Execute a modification to the existing Services agreement, on terms acceptable to the Director of Legal Services, to secure a temporary walkway adjacent to Parcel 2A and Parcel 2B, on the north side of the 1000 block of Cordova Street between Thurlow Street and Burrard Street, until these parcels are developed and a permanent sidewalk can be provided along the north side of the 1000 block of Cordova Street between Thurlow Street and Burrard Street to the satisfaction of the General Manager of Engineering Services.
RIGHT OF WAY
FOR SIDEWALKS (vi) Execute an agreement, on terms acceptable to the Director of Legal Services, to secure a sidewalk right of way through the lands including the obligations for support and maintenance, to the satisfaction of the General Manager of Engineering Services.
STREET
LANDSCAPING (vii) Execute an agreement, on terms acceptable to the Director of Legal Services, to secure installation, maintenance and irrigation of all street trees and landscaping features to be located in the road dedication adjacent to Lots 1 and 2, to the satisfaction of the General Manager of Engineering Services.
FIRE ACCESS FOR
LOTS 1 AND 2 (viii) Execute an agreement, on terms acceptable to the Director of Legal Services, to secure access and specific construction details for fire and emergency access to Lots 1 and 2, via the arrival plaza, off Cordova Street, to the satisfaction of the General Manager of Engineering Services.
RIGHT OF WAY FOR THE
ARRIVAL PLAZA (ix) Execute an agreement, on terms acceptable to the Director of Legal Services, to secure mutual access rights for Parcels 2A and 2B for the shared use of the arrival plaza, including provision for bus parking use, to the satisfaction of the General Manager of Engineering Services.
PUBLIC OPEN
SPACE (x) Execute an agreement, on terms acceptable to the Director of Legal Services, to secure public access rights to, and maintenance of , the Thurlow Street plaza on Parcel 2B, to the satisfaction of the Director of Planning and the General Manager of Engineering Services.
DAY CARE
AGREEMENT (xi) Noting that the existing agreement to construct, finish and fit-up a 37-space licensed childcare facility on Parcel 2B will remain in full force and effect, amend the existing agreement respecting the payment-in-lieu contribution, on terms acceptable to the Director of Legal Services, to reflect any changes to the payment-in-lieu amount resulting from the rezonings of Parcels 2A and 2B to the satisfaction of the Director of Social Planning.
PUBLIC ART
AGREEMENT (xii) Note: The existing agreement calls for Option C under the City's Public Art for Private Development Program, the owner may, prior to issuance of the Development Permit, amend the existing agreement, to the satisfaction of the Director of Social Planning and on terms acceptable to the Director of Legal Services, to elect Option A, B, or C.
Where the Director of Legal Services deems appropriate, the preceding agreements are to be drawn, not only as personal covenants of the property owner, but also as Covenants pursuant to Section 219 of the Land Title Act.
Such agreements are to be registered in the appropriate Land Title Office, with priority over such other liens, charges and encumbrances effecting the subject site as is considered advisable by the Director of Legal Services; and otherwise, to the satisfaction of the Director of Legal Services, prior to enactment of the by-law; provided, however, the Director of Legal Services may, in her sole discretion and on terms she considers advisable, accept tendering of the preceding agreements for registration in the appropriate Land Title Office, to the satisfaction of the Director of Legal Services, prior to enactment of the by-law.
The preceding agreements shall provide security to the City including indemnities, warranties, equitable charges, letters of credit and withholding of permits, as deemed necessary by and in a form satisfactory to the Director of Legal Services.
The timing of all required payments shall be determined by the appropriate City official having responsibility for each particular agreement, who may consult other City officials and City Council.
APPENDIX C
DRAFT AMENDMENTS TO
"Burrard Landing (201 Burrard Street) CD-1 Guidelines"
Amend the Burrard Landing (201 Burrard Street) CD-1 Guidelines, generally in accordance with the amendments noted below.
Note: all additions are in bold italics and deletions are in (brackets and strikeout). These are draft amendments which are subject to change and refinement by staff prior to the finalization of the agenda for the public hearing.
Cover Illustration to be amended to show revised form of development.
Contents to be revised to replace "Office/Commercial Plaza" by Mixed Use Commercial (Precinct).
1 Application and Intent
Amend Figure 1. Burrard Landing Boundary to show reconfiguration and labelling of the three development parcels in Sub-Area 1.
3.2 Building Orientation
Street grids and patterns which should be considered includ (e) ing the Burrard Street alignment (e.g. the Marine Building street base), the Hastings/Cordova Street alignment (e.g. the Guinness Building) and the Canada Harbour Place alignment. In general:
(a) ( Office and hotel towers should be oriented to the Thurlow Street extension alignment ) The Hotel or Office tower on Parcel 2A should be generally oriented to the Burrard Street alignment and the Live/work and Office tower on Parcel 2B should be generally oriented to the Hastings/Cordova Street alignment.
(b) Lower building elements should be oriented to adjacent streets and the shoreline; and
(c) The Arts Complex should respond to the radial orientation proposed for buildings lining the waterfront park.
3.3 Views
Figures 2 and 3 illustrate the principal public and private views across the site. Building siting should preserve the street-end view corridors identified in the ODP for Burrard and Thurlow Streets, noting the following::
(a) The massing of the Arts Complex should ensure that the fly tower is outside the Thurlow Street-end view corridor and that intrusions of lower building elements into the view corridor are minimized;
(b) ( To maximize the view to and from the Marine Building, the tower zone of Parcel 2B may be shifted into the Portal Park view corridor up to 9.0 m. Along Thurlow Street, up to 2 storeys ofthe Parcel 2B street base zone may project a further 6.0 into the view corridor ) The tower zone of Parcel 2B should be sited to maximize the views to and from the Marine Building and to preserve the Thurlow Street End View Corridor and the Portal Park View Corridor; and
(c) The lower "shoulder" portions of the hotel and office towers may penetrate the views to and from the Marine and Guinness Buildings and Canada Harbour Place up to a maximum of 6 storeys.
Figure 2 to be amended to show revised parcelization and proposed building outlines on Parcel 2A and Parcel 2B, and show nothing on Parcel 2C.
Figure 3 to be amended to show revised parcelization and proposed building outlines on Parcel 2A and Parcel 2B, and show nothing on Parcel 2C.
3.4 Massing Controls
3.4.1 Height
Maximum building heights have been established in response to several factors, including street-end views, the provision of sunlight to public places at grade level and the overall configuration of the Burrard Landing skyline as seen against the downtown background.
Maximum building heights as measured above the base surface, excluding sloping, nonhabitable roofs, mechanical services and architectural appurtenances, should not exceed those outlined in Figure 4.
Figure 4 to be amended to show revised parcelization and proposed building outlines on Parcel 2A and Parcel 2B, and show nothing on Parcel 2C and to amend maximum building heights.
3.4.2 Vertical Massing Zones
Office towers should be generally divided into three massing zones:
(a) A street base zone comprising the lower 2-6 storeys should generally define the streets and plazas, with particular regard to the following:
(i) To provide street definition the street base should have a strong, legible frame;
(ii) Periodic openings and articulation of the building face should be provided to break down the scale and provide public views and access through to plazas;
(iii) These building elements will from part of the streetscape and are important to the public realm and pedestrian character of the streets. Changes in material and fenestration, scale and cornice lines should be used to achieve a comfortable pedestrian scale consistent with a commercial environment. High quality, decorative detailing and lighting should be used to enhance the "close up" view for the pedestrian;
(iv) Commercial uses should generally be at grade and have direct pedestrian access. Display windows, signage and individualized tenancy design should be used to enhance pedestrian interest and diversity; and
(v) A strong horizontal line such as a parapet or cornice should be expressed at the roofline of the street base. Where building stepping is called for, the first step shouldoccur at the cornice line ( and should be a minimum of 2.0 m ), except where more significant steps are referenced in the precinct guidelines. This step back should be used to create a strong horizontal edge with terraces or landscaped roof areas. The street base on Parcel 2B along Cordova Street shall be set back 4.87 m from street curb.
(b) A tower zone comprising most of the building mass should read as a coherent structure while accommodating shaping and material refinements as follows:
(i) ( While the towers should have similar massing at the street base, t ) The individual expression of each tower should incorporate distinctive architectural elements and treatment to achieve diversity and interest;
(ii) Towers should be compatible with the street base elements;
(iii) The upper portions of the towers should be sculpted and stepped to reduce building bulk as height increases;
(iv) Tower 2A should have a maximum floorplate of ( 1 600 ) 1 470 m2. Above ( 90.0 ) 105 m in height, its floorplate should not exceed ( 1 500 ) 1 270 m2 and above 118 m its floorplate shown not exceed 980 m2;
(v) Tower 2B should have a maximum floorplate of ( 1 850 ) 1 440 m2 for the Office floors, excluding the lower stepped floors, and 906 m2 for the Live/Work floors; and
(vi) Above 35.0 m, tower 2C should have a maximum floorplate of 2 050 m2. Below 35.0 m the floorplate would be increased incrementally to permit legible steps down to the street base on Thurlow Street.
The floorplate maximums should include all interior floor space. The actual building dimensions will need to be resolved through the development application process on the basis of detailed analysis by the applicant pertaining to such matters as the impact of massing on siting, views, shadowing, etc.
(c) The tower top zone should be stepped and articulated to express the building's individual identity, with particular regard to the following:
(i) Changes in massing, fenestration and/or shape and materials may all be used to emphasize the top of each tower. Generally, the top should step back, however portions could remain flush with the massing below, provided that different materials or architectural detailing emphasize the tower top as a special zone;
(ii) Tower tops should complement rather than dominate the architecture and be integrated with the architecture rather than appear as applied caps; and
(iii) Mechanical elements above habitable levels should be integrated into the tower top.
The hotel massing in sub-area 2 should express a more residential character, reflecting its function. The building should be terraced and should step up from the water in minimum 3-storey increments to minimize impacts on views of the Canada Place sails from the west. As well, the hotel should be massed to minimize shadowing of the waterfront walkway and views from adjacent buildings.
Where the hotel in sub-area 2 expresses itself as a tower, the floorplate should not exceed 900 m2 including all interior floor space.
3.5 Architectural Expression, Details, Colours and Materials
3.5.2 Materials
At the lower levels, strong brick, stone, masonry or concrete frames should be expressed. At street level, a more detailed architectural treatment should be provided. Metal and glass should be used as infill materials ( in association with the strong frames ).
A consistent palette of materials should be used in each development. Tower and tower top materials may differ from street base materials, however there should be a compatible transition between them. The upper levels of towers may have a lighter frame expression with increased glazing.
Commercial frontages at the waterfront should express a more nautical character in their selection of materials, details and colours.
3.5.5 Balconies
Where provided, balconies should be designed as integral parts of the buildings, not "tacked on". ( Balconies should be partially recessed into the building face ).
3.5.6 Awnings, Canopies, Entries and Facades
In conformance with the Council-adopted "Weather Protection Guidelines", continuous weather protection ( in the form of awnings, canopies or arcades ) is required along all building frontages including Burrard, Cordova and Thurlow Streets, and surrounding the Commercial Plaza. These should have a minimum depth of 1.5 m to permit outdoor displays, as well as to protect the walking space. In addition, weather protection features are encouraged in non-landscaped areas where the public might congregate, including around the hotel, along the commercial area on the waterfront walkway, and around the Arts Complex between the Civic Plaza and the Thurlow Street drop-off.
3.6 Public Realm Treatment
3.6.3 Streets, Sidewalks and Walkways
The character of streets in Burrard Landing will emphasize the special character of this development at the water's edge of downtown. Service agreements between the City and the developer will specify the details, types and locations of sidewalk and crosswalk treatments, street trees, furniture and lighting. Development on private parcels should respond to approved street designs.
Special treatments should be considered for ( the ) Thurlow Street ( crossing to link the Commercial and Civic Plazas and for and Burrard Street between the street-end and the promontory, to create a distinctive public realm character for these two important public spaces. Special treatment should also be given to Canada Place (Viaduct) between Thurlow and Burrard Streets to acknowledge its significance as the last city street before the waterfront. The detailed design will be finalized by the City and the developer prior to enactment of the Burrard Landing zoning.
3.9 Public Art
The public art contribution for Burrard Landing should comply with the City's Public Art Program policy requirements. While not limited to the following, preferred sites for public art could include the Burrard Street-end, the ( Commercial ) Thurlow Plaza and Civic Plaza(s), and the Burrard Promontory. Possible street locations will be determined in consultation with the City Engineer.
4 Precinct Guidelines
The following guidelines apply to specific development precincts in Burrard Landing, as illustrated in Figure 5. The form of development will be finalized through the development application process, with reference to the schematic development attached to these guidelines.
Figure 5 to be amended to show revised parcelization.
4.1 The ( Office/ ) Mixed Use Commercial Plaza Precinct
Figure 6 to be amended to show revised parcelization and form of development.
( The three towers which make up the office precinct ) The two upland towers and the tower on Parcel 2C represent the major development component in Burrard Landing. Together with Burrard and Thurlow Streets, this precinct extends the Central Business District, the escarpment edge, and public access to the water's edge. ( The towers and their lower floors focus on a large commercial plaza, which forms an important part of the sequence of public open space links between the downtown and waterfront. )
4.1.1 General Principles
(a) While the towers should have similar massing at the street base, The individual expression of each tower should incorporate distinctive architectural elements and treatment to achieve diversity and interest.
(b) ( A minimum of 3 floors and 13.5 m (street base zone) of each tower should define the edges of the Commercial Plaza. Complementary massing and detailing, materials, continuous weather protection and a strong cornice line at a consistent elevation should be used to unify the containment of the plaza. )
(c) The grade-level of each office tower the Office tower, Live/Work tower and Hotel tower should contain commercial space and lobby entrances to provide pedestrian interest along all streets and walkways. Opportunities for outdoor seating and display should be maximized, provided that due consideration is given to pedestrian circulation.
(d) Pedestrian-oriented commercial uses including restaurants, cafes, and shops should line the Commercial Plaza to provide animation and security.
(e) Along Burrard, Cordova and Thurlow Streets, and Canada Place (Viaduct) around the Commercial Plaza, the street base towers should generally be set back 4.8 m from the curb. a minimum of 2.0 m from the street base. Tower 2B should be set back 4.8 m from the curb along Cordova Street.
(f) Each office tower should have its principal parking access from the upper level street system and the entrance should be integrated into the building face. Additional parking access may be provided from the lower level street system.
4.1.2 Parcel 2A Guidelines
Development of this parcel should generally conform to the building envelopes outlined in Figures 7 and 8, with particular regard to the following:
(a) Along Burrard, the street base zone should define the street and have a minimum height of 3 storeys and 13.5 m. As shown in Figure 9, the height of the street base zone along Cordova should be a minimum of 2 storeys and 10.0 m and yet, not exceed 4 storeys to reflect the street base height on Parcel 2B. The street base zone of Burrard Street should have a minimum height of 3 storeys and 13.5m. The setback shall be 7.0 metres. Continuous weather protection should be provided with canopies or building overhangs, and street trees can occur within the property.
(b) The street base zone on Cordova Street ( should be set back a minimum of 3.0 m from the curb line, and incorporate a pedestrian arcade having a minimum clear width of 3.0 m. The street base zone on Cordova Street and Canada Place Way should generally be set back 4.8 m from the curb line. Continuous weather protection should be provided around the street base, either with canopies or building overhangs. The upper floors of the podium and tower may project beyond the set back.
(c) The street base zone on Burrard should be set back to preserve the Burrard Street-end view corridor, as defined in Figure 2.
(d) A view corridor should be provided at grade from Burrard Street to the Commercial Plaza, generally on the Commercial Plaza/Civic Plaza axis. This corridor may incorporate views through the tower lobby and should generally have a minimum height of 8.0 m and a minimum width of 5.0 m, subject to confirmation at the development application stage.
(e) The street base zone flanking the Canada Place Way axis should define the pedestrian connection to the Commercial Plaza. Pedestrian-oriented commercial space should be located at grade to animate this connection, with consistent treatment on both sides. This mews should have a minimum width of 15.0 m.
Figures 7. Parcel 2A Street Base Zone


Figures 8. Tower Base Zone
4.1.3 Parcel 2B Guidelines
Development of this parcel should generally conform to the building envelopes outlined in Figures 9 and 10, with particular regard to the following:
(a) The street base zone along Thurlow Street ( should have a minimum height of 3 storeys and 13.5 m and be set back 10.5 m from the property line. As shown in Figure 9, this setback is a "build to" line for the majority of the Thurlow Street frontage ) shall not extend more than 15 m beyond the Portal Park view corridor eastern alignment. The eastern alignment of the Portal Park view originates at the North East corner of the Portal Park property line at a 5 degree offset from the Thurlow Street alignment. This streetbase zone is generally two storeys other than the three storey height of the last tower step.
(b) ( The Thurlow Street setback should be differentiated from the adjacent city sidewalk by such means as steps, low walls, different surfaces or landscaping. A row of street trees should be planted within the setback along the property line ) The interface between the Thurlow Plaza and the city sidewalk should be defined by steps, low walls, and different surfaces. A double row of street trees should be planted within the plaza along the property line to reinforce this definition. Easy public access through the plaza should be provided.
(c) ( The interface between the Thurlow Plaza and city sidewalk should be defined by steps, low walls, landscaping, or different surfaces. A double row of street trees should be planted within the plaza along the property line to reinforce this definition. Easy public access along a variety of routes through the plaza should be provided. ) The streetbase on Cordova Street should be set back 4.87 m from the curb line. The streetbase zone on Canada Place (Viaduct) should be set back 4.8 m from the curb line. Continuous weather protection should be provided around the streetbase.
(d) ( The street base zone on Cordova Street should be set back 3.0 m from the curb line and incorporate a pedestrian arcade having a minimum clear width of 3.0 m. ) If Parcel 2B is completed before Parcel 2A, the arrival plaza, between the two parcels should be completed to provide a vehicular turnaround off Cordova Street.
(e) Along the Commercial Plaza property line, the street base zone should have a minimum frontage of 40.0 m and a minimum height of 3 storeys and 13.5 m.
(f) If Parcel 2B develops before the Commercial Plaza, a pedestrian connection having a minimum clear width of 3.0 m should be provided adjacent to the Commercial Plaza to link Cordova Street with the Thurlow Street pedestrian crossing.
(g) As shown in Figure 9, the height of the street base zone adjacent to Parcel 2A should be a minimum of 2 storeys and 10.0 m and yet not exceed 4 storeys, and the roof should be designed to accommodate outdoor play space for the childcare facility.
Figures 9. Parcel 2B Street Base Zone

Figure 10. Parcel 2B Tower Zone

Delete Section 4.1.4 Parcel 2C and Section 4.1.5 Commercial Plaza guidelines, and note that these need to replaced in the future when the form of development for the balance of Sub-Area 1 (Parcel 2C north of the future Canada Place viaduct extension) is resolved.
Rename 4.2 The Hotel Precinct as Waterfront Hotel Precinct; similarly rename Figure 15.
Revise parcel boundaries of Sub-Area in Figure 19.
5 Rezoning Design Development Conditions
In reviewing the detailed form of development, the Director of Planning shall have particular regard to the following design development conditions:
(a) further design development of the hotel promontory and walkway to extend the lower level walkway to the northeast corner of the pier, with the grade transition to the upper level to occur via stairs mainly along the eastern side of the hotel and/or a combined stair/ramp system, and a reconfiguration of the eastern walkway section to provide viewing areas and a geometry that reflects the shoreline treatment to the west;
(b) further design development of the hotel entry area along Burrard Street to provide a more generous sidewalk area with a minimum clearance of 7.6 m; and
(c) Further design development of the Arts Complex access off Thurlow, to locate the dropoff zone closer to the civic plaza main entry area, integrate shared pedestrian and bicycle paths, and provide a public elevator to the civic plaza.
Note: In considering height above 92.0 m the Director of Planning shall have particular regard to the following:
For the Burrard Cordova Tower (2A)
Up to 115.0 m, providing it can be demonstrated that there is significant slimming of the tower, height quality design and finishes, with special shaping and architectural treatment of the tower to create a memorable landmark without significantly increasing the shadow impact on public open space.
For the Burrard Thurlow Tower (2C)
Up to 101.0 m, subject to consideration of public and private views, shadowing of public and private open spaces, privacy, effects of scale on the character of open spaces, and form relationships to nearby buildings.
Revise the seven figures in the APPENDIX to show revised form of development on Lots 28 and 29 in Sub-Area 1.
APPENDIX D
DRAFT COAL HARBOUR
OFFICIAL DEVELOPMENT PLAN AMENDMENTS
Amend the Burrard Landing (201 Burrard Street) CD-1 Guidelines, generally in accordance with the amendments noted below.
Note: all additions are in bold italics and deletions are in (brackets and strikeout). These are draft amendments which are subject to change and refinement by staff prior to the finalization of the agenda for the public hearing.
Section 1 Background
1.4 Definitions
Live/work uses means the use ofpremises for both a residential unit and a non-residential use which is associated with and forms an integral part of the residential unit [This is here for reference.]
3.2 Uses
3.2.2 Office and Live/Work
Offices should be limited to sites which meet the following criteria:
(a) enhance the success, livability, ease of face-to-face contacts, and attractiveness of the central business district;
(b) facilitate access to the water's edge and to views for those working downtown;
(c) have good transit access;
(d) be contiguous to a desirable office area; and
(e) except for locally-oriented offices and offices located in a building containing units in live/work use, not be in an area with a high desirability for future housing.
These sites are located between Thurlow Street and Burrard Street, and to a limited extent adjacent to Cardero Street, and along Pender Street from Cardero to Nicola Street. In the office area between Burrard and Thurlow Streets, cultural and institutional uses , Live/Work, Hotel and limited retail and service uses shall be permitted. Also, subject to livability analysis at the sub-area zoning stage and within the overall floor area and dwelling unit count limitations contained in Section 3.2.1, and within the total net FSR limitations noted below, residential uses may be permitted.
Giving consideration to the densities permitted in nearby commercial areas, the following amounts of office use may be permitted, generally distributed as shown on Figure 5. Overall development densities, between Burrard and Thurlow Streets, shall not exceed 4.0 FSR net on sites adjacent to the water's edge ( and 6.6 FSR net on sites located adjacent to the Downtown District ).
The amount of locally-oriented office use at the westerly end of the site west of Jervis Street shallnot exceed 2 570 square metres. At the easterly end of the site between Thurlow and Burrard Streets, the amount of office use shall not exceed 139 500 square metres.
In addition, offices may be permitted in mixed-use and retail/service areas. Offices existing as of November 6, 1990 along the 1500 block of the north side of Pender Street are permitted.
3.2.3 Hotel
Hotels ( may ) shall be permitted in the commercial precinct between Burrard and Thurlow Streets as illustrated on Figure 3. The size and configuration of hotels shall be determined at the sub-area zoning stage.
Where the amount of hotel development exceeds 37 000 square metres, any increase shall only be permitted if the office amount limit stated in Section 3.2.2 for the block between Burrard and Thurlow Streets is correspondingly decreased. In no case, however, shall the total amount of hotel and office development within the commercial precinct between Burrard and Thurlow Streets exceed a total of 176 500 square metres.
3.5 Views
The development of Coal Harbour shall preserve views and maximize potential views of the city's natural setting and unique features contributing to its special identity, as follows:
Public Street End Views:
All northerly corridor views along existing Downtown north-south streets to the water and mountains shall be maintained. Minor intrusions into the Burrard and Thurlow Street-end view corridors shall be permitted for floating marine vessel berths, and for the lower portions of the Arts Complex building.
A minimum 5 degree view angle from each side of the extension of existing downtown streets shall be taken from the following positions, which vary according to the street location along the waterfront:
· Burrard Street: from the south side of Cordova Street extension at the intersection with the Parcel 2A property line extension;
· Burrard, Thurlow and Bute Streets; from the south side of the Cordova Street extension;
· Jervis Street - for buildings above 10.7 m in height; from the north side of the Hastings Street extension at the corner cut-off junction points; for buildings up to 10.7 m in height, from the south side of the Cordova Street extension;
· Broughton and Nicola Streets; from the south side of the Hastings Street extension;
· Cardero Street; from a point midway between the north side of Georgia Street and the north side of the waterfront loop road alignment east of Cardero Street.
The new base surface and street grades should be contoured to maximize preservation of views downward to the water from north-south streets.
Public Open Space Views:
New opportunities should be provided in new development to view waterfront activities, Stanley Park and/or the North Shore mountains wherever possible. In particular, views from existing public places such as Portal Park should be protected. Some panoramic views should be maintained to at least 45 degrees.
The development should preserve major view corridors towards Stanley Park ( and the water from the new Cordova Street level of the Marine Building ). The development should preserve reasonable northerly and Stanley Park views from all existing buildings and publicly accessible plazas.
Landmark Views:
New development should respect views to important landmarks, such as the Marine Building and Canada Place 'sails'.
Private Views:
The new private views created for the on-site development should also allow for preservation of some private views from existing and likely future development south of the site.
The minimum extent of public views to be protected and created is illustrated on Figure 10A. Other public open space and landmark views that will be confirmed at the sub-area zoning stage are illustrated on Figure 10B. Additional public and private views may be required as a result of sub-area zoning analysis to meet the above intents.
3.6 Building Height
No building shall exceed 100 metres in height, except as noted below, and except roof projections may be permitted above this height, provided that they do not contain habitable space and are designed as capping elements complementary to the design of the building. Heights shall be varied and sculpted to respond to public open spaces and to enhance the sense of the water basin. Generally, buildings shall step back from the shoreline, with the higher buildings located at the easterly end of the area, and lower buildings at the westerly edge. In the Harbour Green residential precinct (area 2) the maximum building height may be relaxed by up to 10 percent and in the Burrard Landing mixed use hotel/commercial precinct (area 3) the maximum building height may be relaxed by up to ( 15 percent ) 137 m if, in both cases, improvements to the criteria noted below can be demonstrated.
Building heights shall be measured from new adjacent street grades, if specified in the CD-1 By-law, or the new base surface, such surface configured to ensure gradual transitions from the downtown grade to the waterfront edge.
The heights for lower level commercial office buildings between Thurlow and Burrard Streets should relate to the heights and cornice lines of adjacent older buildings, and shall in no case exceed a maximum height of 25 metres or 6 storeys, whichever is less.
Building heights for specific locations will be determined in each sub-area zoning, having regard to the Illustrative Plans described in Section 6 and:
(a) public and private views, including views created by the development form;
(b) shadowing of public and private open spaces and streets;
(c) privacy;
(d) effects on the scale and character of open spaces; and
(e) form relationships to nearby buildings.
3.7 Building Orientation
Buildings with heights greater than 35 metres shall be oriented in regard to adjacent street grids and water's edge configuration, as follows:
(a) Cardero to Jervis - buildings to have same orientation as established street grid extending into the site from the downtown;
(b) Jervis to Thurlow - buildings to respond to the curvilinear configuration of the shoreline and park; and
(c) Thurlow to Burrard - buildings to generally respond to the ( historic pier orientation and Canada Harbour Place ) adjacent or downtown street grids.
The form of residential towers shall be point towers, not slabs, configured in such a way as to emphasize their sense of slenderness. The maximum floorplate of residential towers above any base element should be about 570 square metres. The form of office towers may be more sculptural with larger floorplates, but their sense of bulkiness shall be reduced as height increases, and their tops given special configuration by shaping or terracing.
3.10 Public Realm Design Concepts
In addition to park designs and the normally required streets designs, special public realm designs shall be prepared for the following areas concurrently with the related sub-area zonings:
(a) the waterfront walkway and seawall;
(b) the major gathering space on the waterfront at the foot of Thurlow Street;
(c) the public plazas associated with the commercial hotel and Live/Work precinct east of Thurlow Street;
(d) the major mixed-use pier structure and public amenity space at the foot of Burrard/Thurlow Streets; and
(e) the downtown escarpment edge and interface with existing downtown development along Cordova, Hastings and Pender Streets.
Additional designs may be required as determined at the sub-area zoning stage.
Section 5 Sub-areas
As outlined in Section 1.3 , the long term development of Coal Harbour shall be implemented by sub-areas zonings, legal agreements and related development controls.
The sub-areas are illustrated in Figure 11. Following are general descriptions of each sub-area.
5.3 Area 3 - The Burrard Landing Precinct
This mixed use hotel, commercial and public use precinct shall focus on an active, pedestrian-oriented waterfront providing a marine terminal for charter boats, visitor moorage and other water-based transportation services including seaplanes and passenger ferries. A major waterfront public open space approximately 0.16 hectares (0.4 acres) in size shall be developed adjacent to the Civic Arts Complex and commercial development on the waterfront that is connected by the waterfront walkway to the neighbourhood park to the west.
Commercial uses shall include office, Live/Work, hotel, and retail/service uses. Office uses shall be located between Burrard and Thurlow Streets generally towards the southern edge of the area adjacent to the Downtown District. Office development will respect landmark views of the Marine Building, and include ( major ) public open space within the development. Street-oriented lobby and retail uses shall be associated with the street frontage of the office , hotel, mixed use precinct. Hotel and retail uses are preferred uses at the water's edge, and should be terraced back from the water. Water uses shall include a charter boat centre, a seaplane terminal, and possible historic ship berthing. A major public cultural facility, pedestrian links to downtown, and community facilities such as day care for office workers, shall also be included in this area.
Section 6 Illustrative Plans
The Illustrative Plans shown on Figures 12A, 12B, and 12C show one design for the site which generally meets the intent and requirements of the ODP. The Illustrative Plans are included here for illustrative purposes and are to used in ( conjunctin ) conjunction with this ODP as a general guide to the preparation of sub-area zonings and related development control instruments. The actual permitted configuration and development rights will be settled by sub-area zoning by-laws. It is expected that the permitted configuration and development rights will differ from those shown on the Illustrative Plans.
The following Figures need to be revised:
Figure 3 Land Use
Figure 4A Residential Units
Figure 4B Residential Densities
Figure 5 Commercial Development
Figure 10A Public Street End Views
Figure 10B Public Open Space and Landmark Views
Figure 12A Illustrative Plan
Figure 12C Maximum Tower Heights
APPENDIX E
ADDITIONAL INFORMATION
Site and Surrounding Development: Burrard Landing, which was rezoned in 1996, is a 17-ha (42-acre) site containing four sub-areas, a street and shoreline walkway system, an Arts Complex site and facility, a waterfront park and two major public open spaces. Sub-Area 1, the largest development precinct, was approved for office use, with associated retail/service uses to animate street edges and provide pedestrian interest at grade (143 165 m2 or 1.54 million sq. ft. total floor area).

Proposed Development: The application proposes the following changes to the CD-1 zoning for the site:
- allowing hotel use on Parcel 2A and live/work on Parcel 2B, as part of mixed-use commercial development on both sites, within the overall maximum density permitted;
- eliminating one of the three towers currently permitted in sub-area 1, noting that it may happen in sub-area 2 if expansion of trade and convention facilities is not pursued;
- increasing maximum building heights for the remaining two towers from 115 m (375 feet) for the tower on Parcel 2A and 92 m (302 feet) for Tower on Parcel 2B to 137 m (450 feet);
- decreasing the two remaining tower floorplates from 1 600 m2 (17,223 sq. ft.) to approximately 1 450 m2 (15,608 sq. ft.) for the tower on Parcel 2A, and from 1 850 m2 (19,914 sq. ft.) to approximately 906 m2 (9,750 sq. ft.) for the Live/Work floors and approximately 1 440 m2 (15,500 sq. ft.) for the Office floors for the Tower on Parcel 2B;
- adjusting the development parcels by extending a line from the south side of Canada Place to the west to connect to Thurlow Street, thus creating Lots 29 and 30 between Cordova Street and a future Canada Place (to be constructed as part of the future sub-area 2 development ), and an expanded sub-area 2 to the north (potential future site for offices, hotel or the proposed trade and convention centre expansion, as well as a commercial marina and seaplane terminal) with a major public open space and Arts Complex site adjacent to the waterfront; (Note: Subdivision would create two narrower, smaller Lots 1 and 2 in place of Lots 29 and 30, and a larger Lot 3 in place of Lot 28.)
Change of Use -- From Office to Hotel and Live/ Work Use: Currently the maximum density permitted in Burrard Landing is 196 000 m² (2,109,795 sq. ft.) allocated as follows among the various Sub-Areas and land uses as follows:
Table 1: Maximum Floor Area in Burrard Landing Sub-Areas
Land Use |
Sub-Areas /Precincts | ||||
1
|
2
|
3
|
4
|
Total
| |
Office |
139 500 m2
|
139 500 m2
71.2 % | |||
Hotel |
37 000 m2
|
37 000 m2
18.9 % | |||
Cultural/Rec. |
10 000 m2
|
10 000 m2
5.1 % | |||
Retail/Service |
3 665 m2
|
4 905 m2
|
930 m2
|
9 500 m2
4.8 % | |
Total
|
143 165 m2
73.0 % |
41 905 m2
21.4 % |
10 000 m2
5.1 % |
930 m2
0.5 % |
196 000 m2
100.0 % |
About 73 percent of the Burrard Landing floor area, or 143,165 m2 (1,541,066 sq. ft.), is allowed in Sub-Area 1, more or less evenly divided among the three development parcels. Only commercial office and retail/service uses are allowed within Sub-Area 1. Hotel use is allowed only in Sub-Area 2, adjacent to the waterfront. Residential use is not permitted in Burrard Landing, being considered incompatible with major office development and limited to other Coal Harbour development areas west of Thurlow Street. The original intent was to concentrate commercial office uses in one large precinct close to transit services and the downtown.
The applicant wishes to substitute hotel and new live/work space for some of the office commercial space currently permitted in Sub-Area 1. Staff are supportive of this conversion and the downtown business community is also generally supportive. Generally in downtown office locations, conversions from office use to hotel have been seen as reinforcing of the tourism and business function of the CBD.
Regarding live/work, the supposition is that live/work use, while admittedly intruding residential into the CBD, would not actually foreclose commercial office opportunities. Indeed, by fostering high tech uses (which tend to be supported by live/work arrangements), the proposal may foster the one kind of commercial office activity that is fast growing in the region to select a downtown rather than suburban location. This will likely spur absorption of other office space nearby. Thistheory is supported by a consultant's office supply impact study submitted by the applicant, as called for in the Central Area Plan.
The Central Area Plan (page 5) states that "Having accepted some new office zoning at Coal Harbour East and False Creek North Apex, in accordance with criteria in this report, no other new major office zoning is likely to be needed in the central area in the foreseeable future." and also "There is excess office zoned capacity within the central area relative to housing and transportation capacity."
There is "19 million sq. ft. of undeveloped capacity in CBD for 25-45 years (at 750,000 per year)" (page 12). The Central Area Plan proposes "new residential neighbourhoods, close to waterfronts, to add people and activity and to reduce the need to commute from outside the Central Area" (page 18).
Residual Density and Resolution of the Remainder of Burrard Landing: If the applicant's proposal for Lots 29 and 30 in Sub-Area 1 is approved, the floor area for the Hotel tower on Parcel 2A would be increased to 75 000 m2 (807,320 sq. ft.) and the amount of available floor area which would be left on the remainder of Sub-Area 1 is 22 688 m² (244,228 sq. ft.), as shown in this table:
Table 2: Maximum Floor Area in Sub-Area 1 and its Development Parcels
Land Use |
Proposed Rezoning |
Balance of Sub-Area 1
|
Sub-Area 1
| ||
Parcel 2A |
Parcel 2B |
Sub-Total | |||
Office |
23 600 m2
|
23 600 m2
|
19,400 m2
|
43 000 m2
30.0 % | |
Live/Work |
21 500 m2
|
21 500 m2
|
21 500 m2
15.0 % | ||
Hotel |
75 000 m2
|
75 000 m2
|
75 000 m2
52.4 % | ||
Cultural/Rec. |
n/a |
n/a |
n/a |
n/a |
n/a |
Retail/Service |
377 m2
|
377 m2
|
3 288 m2
|
3 665 m2
2.6 % | |
Total
|
75 000 m2
52.4 % |
45 477 m2
31.8 % |
120 477 m2
84.2 % |
22 688 m2
15.8 % |
143 165 m2
100.0 % |
Built Form: Currently, the approved form of development for Burrard Landing consists of four towers, three of which are intended for office use and located on sub-area 1, and the other intended for hotel use located on sub-area 2 adjacent to the waterfront The three towers on sub-area 1 are arranged around a central public open space, and step up in height from the lowest at the Cordova/Thurlow corner (Parcel 2B) to the highest at the Cordova/Burrard corner (Parcel 2A). The three towers are relatively bulky with floorplates ranging from about 1 579 m2 (17,000 sq. ft.) to 1 858 m2 (20,000 sq. ft.). The street system consists of a loop extension of Thurlow and Burrard Streets, and the Cordova Street extension to the west from Burrard Street.
The applicant wants to change the approved street system and site parcelization, so that the Canada Place viaduct is extended directly through to Thurlow Street and smaller mixed-use and hotel development sites on Parcels 2A and 2B are created to the south between Canada Place viaduct extension and Cordova Street, Burrard to Thurlow. The street system pattern would not be changed with Phase 1 of this application on Parcel 2B, but would only happen in Phase 2 on Parcel 2A which is dependent on the Trade & Convention Centre proposal for sub-area 2 proceeding. This would likely pull the entire development site inland for either less overall water coverage, or in order to create a larger development site for expanded Trade and Convention Centre facilities to the north of the Canada Place extension adjacent to the waterfront. The third northerly Tower 2C in sub-area 1 would be eliminated, although this tower might still be built in sub-area 2. Public open space lost in the adjusted sub-area 1 would be replaced by a larger, more usable open space amenity at the foot of Thurlow Street in sub-area 2 adjacent to the waterfront and closely linked to Harbour Green Park.
In summary, the applicant's revised development application consists of:
- on Parcel 2A adjacent to Burrard Street, a 46-storey hotel ( with retail at grade ) on a 5-storey podium base set back 9 m from the Burrard Street property line, but built to the property line for levels 2 to 5 on the southerly Cordova and northerly Canada Place viaduct extension sides of the site;
- on Parcel 2B adjacent to Thurlow Street, a 40-storey mixed-use tower on a 2-storey plus mezanine podium base, with retail at grade, child daycare facility on the 3rd floor, office use up to the 14th storey, and 26 levels of live/work use above;
- access to Parcel 2B from Cordova Street (and from Waterfront Road below grade), access to Parcel 2A from future Canada Place viaduct extension (and from Waterfront Road below grade), and a shared Arrival Plaza (drop-off/arrival vehicular court) which would be located on Parcel 2B but which would serve both developments.
Staff feel there are considerable public benefits from these proposed overall changes to the form of development, including:
- more usable public open space close to the water's edge;
- improved private views;
- reduced massing and shadowing close to the waterfront;
- an improved form relationship with existing buildings in the downtown; and
- improvements to the downtown skyline.
Subject to further design development to be undertaken at the base of the buildings, and other design development conditions as noted in Appendix B, staff support in principle the general changes proposed to the form of development.
Building Height: Currently, the maximum height permitted by the CD-1 zoning for sub-area 1 is 92 m (302 feet). This can be relaxed by the Director of Planning to 101 m (331 feet) for the tower on Parcel 2C , and to 115 m (377 feet) for the tower on Parcel 2A, "providing it can be demonstrated that there is significant slimming of the tower, and quality design and finishes, with special shaping and architectural treatment of the tower to create a memorable landmark without significantly increasing the shadow impact on public open space." ( Height relaxation policy for this site approved by Council on September 15, 1994 ).
The applicant wishes to increase the maximum height limits for the two remaining towers in the adjusted sub-area 1 precinct between Cordova Street and Canada Place Way as follows:
Table 2. Tower Heights
Current
|
Proposed
|
Proposed
| |
Tower on Parcel 2A |
115 m (377 feet) |
135 m (444 feet) |
20.4 m (67 feet) |
Tower on Parcel 2B |
92 m (302 feet) |
137 m (450 feet) |
45 m (148 feet) |
Combined with and as a partial justification for these proposed height increases, the applicant proposes to delete one tower and to also reduce the size of the tower floorplates as follows:
Table 3. Tower Floorplates
Current
|
Proposed
|
Proposed
| |
Tower on Parcel 2A |
1 600 m²
|
1 450 m²
|
150 m²
|
Tower on Parcel 2B |
1 850 m²
|
906 m² (Live/Work)
|
1 000 m²
|
In summary, staff conclude that the proposed height and floorplate changes would :
- benefit most private views including the heritage designated Marine Building from the slimming of tower floorplates while a few existing downtown buildings higher than 300 ft. would experience some view intrusion;
- reduce shadowing of public open space due to the slimming of the two remaining towers (if the third tower that is a component of the existing form of development does not reappear in sub-area 2 because this site is used for trade and convention facilities expansion, then this benefit will be further enhanced);
- have impacts on public views from Queen Elizabeth Park, 10th & Cambie Street, and from 12th & Cambie Street, particularly from the additional height proposed for the easterly hotel tower;
- complement the downtown skyline emphasis of the CBD, as seen from Stanley Park, by the cresting in height of these two proposed towers at the eastern end of the Coal Harbour waterfront; and
- weaken the principle for a transition in building heights down to the west towards the park by the extent of the height increase proposed for the Tower on Parcel 2A.
Public Views: An important objective of the 1996 development proposal approved for Burrard Landing was to maximize views to the mountains and waterfront from the adjacent downtown.
The application raises two issues with public views, both of these related to longer range city views from the south. These longer range Council-adopted views were not discussed at the issues report stage in November 2000, and include those from Queen Elizabeth Park, and Cambie Street between 12th and 10th Avenues. See the photo illustrations on the following pages for existing required street-end and public open space views, as well as public view corridors identified in the CD-1 Guidelines.
1. CD-1 Guideline Views ( Portal Park ): Protection of the Portal Park view is given particular emphasis by the ODP and approved CD-1 guidelines. At the issues report stage in November 2000, Council approved the following with respect to views objectives:
preserving northerly views from Portal Park consistent with currently approved guidelines
The guidelines allow the lower level massing on Parcel 2B to encroach up to16 m (52 feet) into the view corridor, provided that the view to and from the Marine Building is maximized. The rezoning proposal appears to satisfy this requirement, as it widens significantly the gap between the two towers which frame the views to and from the Marine Building.
The applicant's rezoning proposal for Parcel 2B is very similar to the initial concept discussed at the issues report stage. The main change is with the lower level massing at the westerly end of Parcel 2B adjacent to the Thurlow Plaza, where the stepped portion of the building has been pulled back slightly to lessen its impacts on the Portal Park view and to create a larger public open space. The applicant proposes an overall encroachment into the view corridor of 15 m (49 feet), as shown in the photo below. Staff support this minor extension of the street base massing towards Thurlow Street, which will still allow for a reasonable public view out from Portal Park consistent with current guidelines.
View From Portal Park

2. ODP Street-end Views: The Coal Harbour ODP mandates 5 degree street-end views at all north-south streets looking north to the waterfront, taken from the south side of Cordova Street. The application complies with these setbacks on Thurlow and Burrard Streets which are incorporated into the approved design guidelines for both sites. (See photo illustration of Burrard Street street-end view on the following page.)

3. Other City Views: The site is affected by three other public view corridors from more distant viewpoints to the south, one taken from the public lookout area at Queen Elizabeth Park, and the other two from Cambie Street between 12th and 10th Avenues. These were approved in 1989 as part of the Downtown Views Study. The proposed Parcel 2B tower is at the extreme westerly edge of both view cones from Cambie Street and already partially shielded by existing or approved taller downtown towers in the foreground. Staff consider it to be not affected by these views. (See photo illustrations on pages 13 and 14.) The proposed Parcel 2A hotel tower is further to the east and more visually prominent in the view corridors. Maximum building heights for the Parcel 2A tower to comply with these corridors, which for view protection purposes are calculated to the top of rooftop mechanical penthouses, are as follows:
Viewpoint Locations and Maximum Heights
Cambie St./10th Ave. |
Cambie St./12th Ave. |
Queen Elizabeth Park | |
Parcel 2A ( hotel ) |
134 m ( 439 feet ) |
130 m ( 428 feet ) |
113 m ( 370 ft. ) |
From the above table and assuming a rooftop mechanical penthouse height of about 7.62 m (25 feet) as proposed by the applicant, if required to fully comply with these approved view corridor height limits, the maximum tower height on Parcel 2A would have to be reduced by approximately 29 m (95 feet). If only the Cambie Street view corridors were to be met, maximum tower height including mechanical penthouse would have to be reduced by approximately 14 m (47 feet).
The Queen Elizabeth Park view cone is considered more of a viewshed where on rare occasions some taller buildings have been seen to enhance the downtown profile. Council has recently approved both the Wall Centre Tower at 137 m (450 feet) and the previous hotel tower proposed on the Port Lands waterfront site east of Canada Place at 115 m (377 feet). Staff recommend a similar relaxation from this view cone height be approved for this rezoning proposal, noting the marginal impact.
With regard to the Cambie Street views, the Parcel 2A hotel tower proposed to be 144.8 m (475 feet) to top of rooftop mechanical elements, will appear higher than the other buildings in this view corridor. It is located in front of Mount Capilano, framed by a lower valley in the North Shore mountain backdrop, but does not intrude into the main easterly Crown/Grouse Mountain view. Staff are also concerned that its approval may set a precedent for other potential development sites in the view corridor. The applicant claims that the proposed 800-room size of the hotel on Parcel 2A must be maintained to remain a viable major hotel serving the convention centre, and further, it requires a tower form of development generally as proposed. He maintains that to comply with a lower height would be a hardship and could threaten the viability of the proposal because of increased costs and programming inefficiencies. As well, if additional massing is required to be added at the lower levels to compensate for lost massing at the top of the tower, view benefits from the Marine Building would be reduced. Staff are also concerned with potential massing changes that would result in a bulkier tower with less top stepping and articulation, but feel that there are several viable options balancing a variety of factors to achieve density and unit count without intruding into the view cones.
Should Council be prepared to approve the height as proposed, staff recommend that it be on the basis of its role as a landmark building for the waterfront area, and not be seen as a precedent for allowing height increases on other sites within this view corridor. Three options for maximum tower heights for the proposed Parcel 2A hotel are suggested for Council's consideration at the Public Hearing, as follows:
1. full compliance with view corridor height limits ( to top of rooftop penthouse ); or
2. partial compliance, with rooftop mechanical penthouses excluded from height limit; or
3. full height relaxation of tower height as proposed by applicant.
Private Views: With respect to private views, the applicant's proposal would generally benefit most neighbouring towers, mainly through the slimming of the floorplates of the towers, and through the removal of the third northerly tower on Parcel 2C should the TCC proceed. (Note: Any future Tower 2C on the balance of Sub-Area 1 should be located close to Burrard Street so as not to block views from the south between Towers 2A and 2B.)
However, the taller towers would have some minor negative impacts on upper floor views from a few higher downtown towers further to the south and east ( See view analysis in applicant's submission - on file with City Clerk ). The additional height proposed for the hotel podium(approximately 70 feet high ) on Parcel 2A would have some negative impacts on lower level views from the Marine Building and the Guinness Tower. Both property owners, however, feel that benefits to their upper level views outweigh losses at the lower level.
In conclusion, staff feel that private views from nearby downtown towers overall derive a net benefit from the rezoning proposal.
Lower Level Building Massing and Public Realm Treatment: At the issues report stage in November 2000, Council approved the following with respect to lower level building massing objectives:
- providing generous sidewalk widths and routings comprising both public and private property that allow for ample street trees planting space and spacious pedestrian passage; and
- maximizing pedestrian interest and active uses along all public streets and approach routes to the waterfront.
The desire to enhance the pedestrian street environment over that provided in recent developments at the east of Burrard Street, where narrow sidewalks, blank frontages, and treeless public realm areas have produced an unattractive streetscape, has resulted in improvements to this revised application. Further design development is recommended to the treatment of the Thurlow Street Plaza, mid-block arrival plaza and other areas to ensure a handsome public realm.. These are covered under the approval conditions attached in Appendix B.
Vehicular Access and Bus Loading: To this date, staff and the applicant have yet to come to a satisfactory solution to the bus parking issue as it relates to the hotel proposed for Lot 1. In a number of meetings with Planning and Engineering Staff the applicant has indicated that two separate entrances for an 800 room hotel will be required. One entrance will be for guests arriving or departing by car or taxi (small party arrivals) and the other entrance will be for large groups arriving or departing by bus (large party arrivals). The applicant has shown that the car/taxi activity will take place in the central arrival plaza and the bus activity will take place in a lay-by off of Cordova Street. While staff agree that two separate entrances are desirable for the hotel, the scheme proposed by the Applicant cannot be supported.
The lay-by shown by the applicant is unacceptable for a number of reasons:
· The requirements of the Parking By-law are not met such that even basic loading needs are not satisfied within the private realm.
· Unloading and loading of the buses takes place across the public realm; therefore, pedestrians are forced to avoid and weave their way around luggage and tour groups gathered on City sidewalk and sidewalk right of way.
· The City loses its rights to the curb space along the length of the lay-by. Public space is taken over by private activity, displacing flexibility for the City to address current and future curb needs, including excess loading requirements for the hotel during special eventsor other periods of unusually high activity.
· The streetscape along Cordova Street is compromised by the presence of the lay-by and elimination of street trees.
Staff recognize that there are a number of constraints on such a small site; however, there are a number of options left unexplored by the applicant and that more work is required to achieve a solution that can meet the needs of both the hotel and the City. To this end, well-designed off-street bus passenger loading spaces, operated in accordance with a Bus Management Plan and enforced by a Legal Operating Agreement, which will be developed, is a necessity.
Child-care Facility: Existing zoning agreements require the provision of a 37 space daycare facility on Parcel 2B. Staff, including the City's Child-care Coordinator, endorse the applicant's proposal to locate the facility and the associated open space and play areas on the third floor level with access to a south-facing lower level roof of the proposed office/live-work building. Due to space contraints, a 25 percent relaxation of the size of the outdoor play area is required, and is supported by staff. A condition of rezoning is recommended to amend the legal agreement to reflect the required provision of the proposed facility.
CPTED: The most important aspect of this application from the CPTED perspective is the resolution of the underdeck areas. Admittedly, much of this is not on private land or deck. As discussed, there must be a staff team that addresses the design of the underdeck areas just as if it were a street or any other public place. On the private land, there is much that can be done to enhance Waterfront Road and even the adjoining rail ROW.
For staff resolution of the public underdeck areas: All of the left over areas must be designed to reduce opportunities for mischief. Right now there is a cardboard city underneath the existing ramp from the street. Although the security people are keeping a close watch on any mischief that develops in this area, the design will make a big difference for future maintenance. The pathways and loitering areas must be reviewed as they exist now then a design to close off unwanted access and maintain legitimate access must be considered. The edges at the new deck are of key importance also. Right now, there are some awkward areas on the 900 block Cordova where the new deck met the existing buildings and embankment. Strange exit stairs, nooks and alcoves attract their share of mischief.
For rezoning approval: Design development to take into consideration the principles of CPTED (Crime Prevention Through Environmental Design) having particular regard to: - keeping the under deck parking visibly open to Waterfront Road and the rail line to maximize surveillance while keeping the parking area secure with decorative grillwork and security measures such as overhead gating, separation of user groups, shuttle elevators for the parking,
- locating perimeter exit stairs within the building structure and ensure that alcoves will not be created on the street,
- reducing opportunities for skateboarding and mischief in the public plazas.





COMMENTS FROM THE PUBLIC, REVIEWING AGENCIES AND THE APPLICANT
Public Input: Rezoning information signs were erected on the site on August 25, 2001. Planning Department staff sent a notification letter on August 25, 2001 to 352 nearby property owners. The notification area was bounded by Howe Street on the east, Dunsmuir and Melville Streets on the south, Jervis Street to the west, and Burrard Inlet to the north.
Open Houses on September 11 and 13, 2000 to review the initial rezoning submission were held at the Vancouver Convention and Exhibition Centre and Vancouver Public Library respectively and were attended by approximately 50 people, with 16 comment forms submitted. Of these,15 expressed strong support, and one expressed strong opposition. A final Open House was held on February 7, 2001 at the Harbour Centre Concourse of SFU to display and receive public comment on the applicant's final submission. This public meeting was attended by approximately 30 people, with 16 comment forms received, of which 13 expressed support, 2 expressed qualified support subject to minor changes being made to the scheme, and one expressed strong opposition. On these comment forms, five comments were made by separate individuals expressing some concern about the height and bulkiness of the hotel building, and the impact on views.
General Manager of Engineering Services: Overall, the General Manager of Engineering Services has no objections to the proposed rezoning provided the following issues are addressed prior to By-law enactment.
· A no-development covenant is registered on the newly created Lots 1 and 3 to ensure resolution of the access issues surrounding both lots as they relate to the Hotel proposed for Lot 1 and future development(s) proposed for Lot 3.
· Appropriate rights of way and access agreements to accommodate the proposed central arrival plaza and service level access to the Live/Work building located on Lot 2.
· Appropriate modifications to the existing Services agreement to ensure that an adequate sidewalk area is provided at all times along the Cordova Viaduct in 1000 block of West Cordova Street.
· An agreement is executed to secure installation, maintenance and irrigation of all street trees and landscaping features located in the dedicated City street adjacent to Lots 1 and 2.
One major issue that has yet to be resolved is the issue of off-street bus loading, unloading and parking. The General Manager of Engineering Services does not support the proposed bus lay-by servicing the hotel for the following reasons:
· The requirements of the Parking By-law are not met such that even basic loading needs are not satisfied within the private realm..
· Unloading and loading of the buses takes place across the public realm; therefore,pedestrians are forced to avoid and weave their way around luggage and tour groups gathered on City sidewalk and sidewalk right of way.
· The City loses its rights to the curb space along the length of the lay-by. Public space is taken over by private activity, displacing flexibility for the City to address current and future curb needs, including excess loading requirements for the hotel during special events or other periods of unusually high activity.
· The streetscape along Cordova Street is compromised by the presence of the lay-by and elimination of street trees.
This is the first hotel to be rezoned in the City of Vancouver following Council's approval of the Bus Impact Task Force and Council approved changes to the Parking By-law. While the applicant has taken advantage of the benefit of a reduced parking requirement under the amended by-law, he has failed to adequately satisfy the minimum requirements for bus loading, unloading and storage. This issue may be addressed during the design permit stage provided that the applicant is aware that he will be required to find a solution to the bus issue that meets the requirements of the Parking By-law and Council Policy.
Social Planning and Cultural Affairs: "Staff have reviewed the application as it relates to the existing Burrard Landing childcare and public art legal agreements. The conditions contained in Appendix B provide for amendments to these existing agreements to reflect the proposed rezonings of parcels 2A and 2B as follows:
1. Public Art: In the existing agreements, the developer had elected Option C under the City's Public Art for Private Development Program. The proposed condition provides for the opportunity for the owners, prior to issuance of the Development Permit, to amend the existing agreement, satisfactory to the Directors of Legal Services and the Office of Cultural Affairs, to elect Option A, B, or C. This provides the maximum flexibility for the owners and leaves open opportunities to realise a comprehensive public art plan for the precinct.
2. Childcare: There are two agreements related to the earlier rezoning of Burrard Landing - one for the construction of a 37-space childcare facility and the other, a pay-in-lieu contribution equivalent to a 49-space childcare facility. The condition proposed in Appendix B seeks to maintain the 37-space facility on Parcel 2B and to reflect any changes resulting from the rezonings of Parcels 2A and 2B in an amendment to the payment-in-lieu agreement, to the satisfaction of the Directors of Social Planning and Legal Services. Any childcare requirements generated by a rezoning on the balance of Burrard Landing will be subject to a future rezoning and childcare agreement and would not be considered part of the 2A and 2B agreements referenced above.
Finally, the Director, Office of Cultural Affairs notes that there are existing agreements with respect to the provision of parking associated with the Arts Complex which remain unaltered by this rezoning application.
Urban Design Panel Comments: On January 10, 2001, the Urban Design Panel gave unanimoussupport for the proposed text amendment.
Introduction: Phil Mondor, Rezoning Planner, introduced this application, last seen by the Panel in a workshop in August 2000. The application seeks the following:- a change in the permitted land use on two of the lots at Burrard Landing, to replace office use by hotel use and some live/work use;
- an increase in the height of the towers, from 375 ft. to 430 ft. and from 300 ft. to 450 ft.;
- a decrease in the permitted floor plates for the two towers;
- an adjustment to the development parcels established in the original 1996 rezoning;
- retention of the residual density from Sub Area 1 of the Burrard Landing CD-1 on the balance of the sub area.
The hotel tower is now proposed to be somewhat taller (445 ft.) since the Panel last saw this project. In addition, the vehicular access has been altered, the sidewalks and setbacks have been increased, the ground floor animation has been improved through fewer blank walls surrounding the ground plane, and the street base corner of the westerly tower has been pulled back from Thurlow Street. Vehicular access to the hotel is now proposed to be from Canada Place Way and access for the office tower is now proposed to be from Cordova Street.
The CD-1 permits a total of two million square feet, of which 1.5 million square feet is permitted in this sub area, all commercial use. The application proposes to change about a million square feet of office space to hotel and live/work uses. In an issues report to City Council last Fall, the loss of this office space was raised as a potential issue. The applicant has subsequently submitted an impact analysis which concludes there will be no negative impact on the supply of office space in the downtown.
The project is proposed to be phased, with the office/live-work tower to be built first on the westerly part of the site. The hotel tower would proceed in Phase 2, but would depend on whether the trade and convention centre goes ahead on the site to the north. Active planning for a trade and convention centre on this site has been underway for some months but no firm commitment has been made to date. Uncertainty about the trade and convention centre also affects the elevations surrounding the site and needs to be taken into account, especially for achieving a pedestrian-oriented street base.
The Development Planner, Mike Kemble, briefly reviewed the concerns raised by the Panel in the workshop. The Panel generally supported the notion of two higher towers in this block and strongly supported the street reflecting the original alignment of the escarpment and the railway. The main concerns focussed on the lower levels of the development, particularly the streetscape and public realm areas to ensure it becomes a very attractive and public area leading to the waterfront.
The proposed hotel contains 800 rooms in a 47-storey tower, stepped at the 35th and 40th levels. The floorplate has been reduced to about 15,000 sq. ft. at the lower level, further reducing to 13,000 sq. ft. and 10,000 sq. ft. at the higher levels. The width of the facades is 135 ft., with a total diagonal distance of 190 ft. The Panel's comments are sought in the following areas:·· tower massing, orientation, height, hotel floorplate, width and location;·· intrusion into two view corridors (from Queen Elizabeth Park and 10th/Cambie) and into the view from Portal Park;·· lower level massing and treatments;·· public realm treatment including the sidewalks around the site and the Thurlow plaza to the west.
Mr. Segal stressed that staff believe the view cone from Portal Park remains valid and the convention centre also will be required to respond to it.
Applicant's Opening Comments: Graham McGarva, Architect, briefly described the design rationale for the hotel site. He advised they are now considering bringing the hotel tower closer to Burrard Street, which would provide greater flexibility with respect to the ballroom. He explained their rationale for the intrusion into the view corridor, noting the hotel will now provide a marker for where the downtown edge meets the waterfront.
James Cheng, Architect, spoke to the office tower site. He noted it is hoped that by the time a development application is made a decision will have been made with respect to the trade and convention centre and there will be some certainty with respect to grade levels. A major issue they would like the Panel to consider relates to views from Portal Park, originally established as a look-out at the escarpment. They believe that, from a city-wide urban design perspective, the priority should be to preserve the street-end views, and the view cone from Portal Park should be rotated. With the higher elevations of the trade and convention centre plaza, the view from Portal Park will be sky and mountains, with the water no longer visible. With respect to Cordova Street, Mr. Cheng noted their proposal is for the sidewalk treatment to reflect the rest of Cordova Street rather than introducing a double row of trees in this location.
The applicant confirmed there is no possibility of a tower on the convention centre.
Panel's Comments: After reviewing the model and posted materials, the Panel commented as follows:
The Panel unanimously supported this application for rezoning amendment.
The proposed use was fully supported and a comment was made that, in terms of sustainable development, there should be more of this kind of use in the downtown core.
While some Panel members commented on the difficulty of assessing this application with the uncertainty that exists with regard to the convention centre, the Panel was able to support it regardless of whether or not the convention centre proceeds on the site to the north. In particular, there was concern about the possibility of a tower on that site and it was suggested it might be worthwhile to look at the alternatives. It was recommended that the Planning Department consider the precinct in its entirety, even at a very schematic level, to determine the options that might be acceptable for distributing the residual density remaining in the area.
Normalizing the grid was thought to be an excellent strategy in order to keep the options open, with or without the convention centre. One Panel member commented there is now a great opportunity to design the entire Canada Place Way extension and encouraged staff and the applicant to take it as far as possible in terms of this being the last street in the entire grid.
The Panel found the proposed tower heights acceptable and had no problem with the minimal intrusions into the view corridors. The extra height was considered a fair trade off for the slimness of the towers, although one Panel member thought the hotel tower was too high at 450 ft. Another thought it could be lowered a bit and still be a marker at the end of Burrard Street, and another encouraged the applicant to make more of an architectural statement because the hotel tower seems quite reticent for what was described as a landmark icon.
The Panel supported the massing for the office/live-work tower, although one Panel member commented that it makes the hotel look a bit clunky and simplistic. It was felt the lower massing of both towers needs the most attention because it will define the Canada Place Way extension and Cordova streetscape. The Panel looks forward to seeing how the massing of each building, especially at the lower levels, relate to each other.
The Panel unanimously supported the applicant's rationale for re-orienting the view from Portal Park. It was agreed that things are changing in this area and this park will become onecomponent of a series of spaces which may twist and turn more than originally envisaged. There were also comments that Portal Park is a leftover from another era and this proposal will be an improvement. The view down Thurlow Street was thought to be more important. One Panel member suggested there is a design opportunity to look down to the convention centre and view a tilted plaza, in plan, noting it is not necessary to be able to see water at the end of every street. The creation of plaza space at the end of Thurlow was seen to be a much more important connection than the view from Portal Park.
The Panel was split on whether the hotel should be moved closer to Burrard Street. Panel members certainly felt there needed to be a lot more fine-tuning and architectural treatment of the Burrard Street facade, relating to the Marine Building. Podium heights and organization of the architecture and building mass along Burrard should relate more strongly to the Marine Building which needs to be treated as an icon, both from within the city and from the water.
There was support for the treatment of Cordova as an extension of what already exists. A double row of trees is less important than blending it in with the rest of the city. The single row of trees and widened sidewalks will benefit the whole Cordova/Canada Place Way corridor.
Crime Prevention through Environmental Design Comments: CPTED Review comments were provided as follows:
"The most important aspect of this application from the CPTED perspective is the resolution of the underdeck areas. Admittedly, much of this is not on private land or deck. As discussed, there must be a staff team that addresses the design of the underdeck areas just as if it were a street or any other public place. On the private land, there is much that can be done to enhance Waterfront Road and even the adjoining rail ROW.
"Recommend approval conditions:
Design development to take into consideration the principles of CPTED (Crime Prevention Through Environmental Design) having particular regard to:
- keeping the under deck parking visibly open to Waterfront Road and the rail line to maximize surveillance while keeping the parking area secure with decorative grillwork and security measures such as overhead gating, separation of user groups, shuttle elevators for the parking,
- locating perimeter exit stairs within the building structure and ensure that alcoves will not be created on the street, and
- reducing opportunities for skateboarding and mischief in the public plazas.
For staff resolution of the public underdeck areas:
All of the left over areas must be designed to reduce opportunities for mischief. Right now there is a cardboard city underneath the existing ramp from the street. Although the security people are keeping a close watch on any mischief that develops in this area, the design will make a big difference for future maintenance. The pathways and loitering areas must be reviewed as they exist now then a design to close off unwanted access and maintain legitimate access must be considered. The edges at the new deck are of key importance also. Right now, there are some awkward areas on the 900 block Cordova where the new deck met the existing buildings andembankment. Strange exit stairs, nooks and alcoves attract their share of mischief."
Real Estate Services Comments: In a memo dated January 29, 2001, Real Estate Services staff advised as follows:
"This memo responds to your request, and comments on the letter dated January 10, 2001 by Burgess Austin Cawley to Marathon Developments, and the summary of a study of office and hotel capacity analysis of downtown Vancouver by Colliers.
"The Burgess letter concluded that height relaxation is not expected to radically change the project economics based on two reasons: (i) the original building-siting already provides views from the third or fourth level up, and (ii) No additional value is generated from height alone for hotel operation. He missed two points. Being one of the tallest building in the City will improve visibility and add kudos. However, these factors are difficult to quantify. The other point is that it costs more to build a taller building. Given a fixed shear core, a reduced floor plate will reduce floor area efficiency, i.e. the net to gross floor area ratio, and may adversely affect revenue. Overall, on the point about height relaxation from a site economics point of view only, the Burgess conclusion is considered reasonable.
"On the proposed change of use (office to hotel and live/work), the Burgess letter postulates the challenges in downtown development projects and concludes that the proposed change in use does not add land value, but in fact it is necessary to make the project viable. The inherently implied message is that under current market condition, the single office use (currently zoned) on the site is not viable, but the proposed change in use will make the mixed use project viable. Another implicit message contained in the conclusion is that there is an economic gain, moving from non-viable to viable. To have an idea about this gain, it is necessary to measure the marginal increase in revenues and costs that would result from the mixed use proposal. But the quantitative analysis has apparently not been done, and therefore, the magnitude of any economic gain is unknown.
"The Burgess proposition that the mixed use proposal is necessary to make the project viable from a non-viable position, appears likely from a qualitative analysis point of view. Last year, office vacancy has been declining and pressure of rent increase mounting. But the hotel property market since 1998 has been suffering from a glut of empty rooms and decline in occupancy rate, after the hotel development boom in 1996 and 1997. Anecdotal forecast of hotel demand by the hotel industry says a flat market for three more years. The proposal of replacing office space with hotel space may seem contrary to market demand indicators, but the agglomeration economy effect, i.e. office and hotel uses benefit from the synergy of having access to each other, may explain the proposal.
"Whether a quantitative analysis should be required depends on the intent of the question, when Council asked for the economic information. Was Council interested to seeeconomic development and the question meant to discover any supernormal profit? If so, the Burgess recommendation and the present state of the hotel and office real estate markets may provide the educated guess that it is not likely. If Council was actually concerned about the financial gain in site economics, then a quantitative analysis to measure the marginal revenue gains and costs is needed.
"The Colliers summary is a long run forecast, which concludes that zoning capacity is more than adequate to provide for demand of new offices and hotels in the next twenty years in downtown Vancouver. The projections are apparently based on a linear equation, and inherent in it is the important assumption that the future twenty years will copy the past. Accuracy is obviously questionable, but the primary use of long run forecast is to flush out potential major problems rather than the accuracy of its numbers. As the summary does not state the methods used in its forecast, I have not reviewed the technical aspect of the forecast, i.e. theoretical correctness and statistical significance.
Applicant Comments: Due to limited time, applicant comment is provided in a separate letter.
APPENDIX H
APPLICANT, PROPERTY AND DEVELOPMENT PROPOSAL INFORMATION
Applicant and Property Information
Street Address |
201 Burrard Street (299 Burrard St. and 298 Thurlow St.) | ||||
Legal Description |
Lots 29 and 30, of the Public Harbour of Burrard Inlet,
| ||||
Applicant |
Baker McGarva Hart Architecture | ||||
Architect |
Baker McGarva Hart Architecture (Ron Lea) for Parcel 2A
| ||||
Property Owner/Developer |
Marathon Developments Inc. | ||||
Development Parcels |
Existing Site Area |
Proposed Site Area | |||
2 A
|
Lot 29
|
6 610 m2 (71,152 sq. ft.)
|
Lot 1
|
5 226 m2 (56,254 sq. ft.)
| |
Development Statistics
Development Permitted Under Existing Zoning |
Proposed Development |
Recommended | |
Uses |
Commercial (Office, Service and Retail) |
Office, Live/Work, Hotel,
|
as proposed |
Max. Floor Space Office & some Retail/Service Live/Work Sub-Total
|
23 980 m2 (258,125 sq. ft.) 21 495 m2 (231,386 sq. ft.)
|
as proposed | |
Floor Space Ratio |
Parcel 2A 15.32
|
n/a | |
Floorplate Parcel 2A
Parcel 2C |
1 600 m2 (17,223 sq. ft.)
to be determined |
906 m2 ( 9,750 sq. ft.) L/W
|
as proposed |
Maximum Height Parcel 2A
|
115 m (377.3 feet)
|
135.4 m (444 feet)
|
130.5 m (428 feet)
|
Parking, Loading and Bicycle Spaces |
as per
|
generally as per
|
ATTACHMENTS THAT DO NOT HAVE ELECTRONIC COPY ARE AVAILABLE ON FILE IN THE CITY CLERK'S OFFICE
* * * * *